ΠΡΠ΄Π²ΠΈΠΆΠ½ΡΠ΅ ΡΡΠΈΠΊΠΈ Π½Π° ΡΠΎΠ»ΠΈΠΊΠΎΠ²ΡΡ Π½Π°ΠΏΡΠ°Π²Π»ΡΡΡΠΈΡ Π΄Π΅Π»Π°Π΅ΠΌ ΡΠ²ΠΎΠΈΠΌΠΈ ΡΡΠΊΠ°ΠΌΠΈ
ΠΠ΅Ρ Π°Π½ΠΈΠ·ΠΌ ΡΠΎΠ»ΠΈΠΊΠΎΠ²ΡΡ Π½Π°ΠΏΡΠ°Π²Π»ΡΡΡΠΈΡ ΠΏΡΠ΅Π΄ΡΡΠ°Π²Π»ΡΠ΅Ρ ΡΠΎΠ±ΠΎΠΉ ΠΏΠ°ΡΡ ΡΠ°ΠΊ Π½Π°Π·ΡΠ²Π°Π΅ΠΌΡΡ ΡΠ΅Π»ΡΡ, ΠΌΠ΅ΠΆΠ΄Ρ ΠΊΠΎΡΠΎΡΡΠΌΠΈ ΡΡΡΠ°Π½Π°Π²Π»ΠΈΠ²Π°Π΅ΡΡΡ Π½Π΅ΡΠΊΠΎΠ»ΡΠΊΠΎ (2 ΠΈ Π±ΠΎΠ»Π΅Π΅) ΠΌΠ°Π»Π΅Π½ΡΠΊΠΈΡ ΠΊΠΎΠ»Π΅ΡΠΈΠΊΠΎΠ².
Π ΠΎΠ»ΠΈΠΊΠΎΠ²ΡΠ΅ Π½Π°ΠΏΡΠ°Π²Π»ΡΡΡΠΈΠ΅ β ΡΠ°ΠΌΡΠ΅ ΠΏΡΠΎΡΡΡΠ΅ Π² ΠΏΠ»Π°Π½Π΅ ΡΡΡΡΠΎΠΉΡΡΠ²Π° ΠΈ ΠΌΠΎΠ½ΡΠ°ΠΆΠ° Π½Π°ΠΏΡΠ°Π²Π»ΡΡΡΠΈΠ΅.
ΠΠΎΡΠ»Π΅Π΄Π½ΠΈΠ΅ ΠΎΠ±Π΅ΡΠΏΠ΅ΡΠΈΠ²Π°ΡΡ Π΄Π²ΠΈΠΆΠ΅Π½ΠΈΠ΅ ΠΎΠ±Π΅ΠΈΡ ΡΠ°ΡΡΠ΅ΠΉ ΡΡΡΡΠΎΠΉΡΡΠ²Π° Π² Π΄Π²ΡΡ ΠΏΡΠΎΡΠΈΠ²ΠΎΠΏΠΎΠ»ΠΎΠΆΠ½ΡΡ Π½Π°ΠΏΡΠ°Π²Π»Π΅Π½ΠΈΡΡ , ΡΠΎ Π΅ΡΡΡ ΠΏΠΎΠ·Π²ΠΎΠ»ΡΡΡ ΠΊΠ°ΠΊ ΡΠ²Π΅Π»ΠΈΡΠΈΠ²Π°ΡΡ Π΄Π»ΠΈΠ½Ρ ΠΊΠΎΠ½ΡΡΡΡΠΊΡΠΈΠΈ, ΡΠ°ΠΊ ΠΈ Π²ΠΎΠ·Π²ΡΠ°ΡΠ°ΡΡ Π΅Π΅ Π² ΠΈΡΡ ΠΎΠ΄Π½ΠΎΠ΅ ΡΠΎΡΡΠΎΡΠ½ΠΈΠ΅.
ΠΠ΅ΡΠ΅ΠΌΠ΅ΡΠ΅Π½ΠΈΠ΅ ΠΏΡΠΎΠΈΡΡ ΠΎΠ΄ΠΈΡ Π² ΠΎΠ΄Π½ΠΎΠΉ ΠΏΠ»ΠΎΡΠΊΠΎΡΡΠΈ (ΠΎΠ±ΡΡΠ½ΠΎ Π³ΠΎΡΠΈΠ·ΠΎΠ½ΡΠ°Π»ΡΠ½ΠΎΠΉ) ΠΈ ΠΎΠ³ΡΠ°Π½ΠΈΡΠ΅Π½ΠΎ ΡΠ°Π·ΠΌΠ΅ΡΠ°ΠΌΠΈ ΠΏΠΎΠ»ΠΎΠ·ΡΠ΅Π².
ΠΠ°ΡΠ΅ΡΠΈΠ°Π» ΠΊΠ°ΠΆΠ΄ΠΎΠΉ ΡΠΎΡΡΠ°Π²Π»ΡΡΡΠ΅ΠΉ ΠΎΠΊΠ°Π·ΡΠ²Π°Π΅Ρ Π·Π½Π°ΡΠΈΡΠ΅Π»ΡΠ½ΠΎΠ΅ Π²Π»ΠΈΡΠ½ΠΈΠ΅ Π½Π΅ ΡΠΎΠ»ΡΠΊΠΎ Π½Π° ΡΡΠ΅ΠΏΠ΅Π½Ρ ΠΏΠΎΠ΄Π²ΠΈΠΆΠ½ΠΎΡΡΠΈ Π½Π°ΠΏΡΠ°Π²Π»ΡΡΡΠΈΡ , Π½ΠΎ ΠΈ Π½Π° Π΄ΠΎΠ»Π³ΠΎΠ²Π΅ΡΠ½ΠΎΡΡΡ Π²ΡΠ΅Π³ΠΎ ΠΌΠ΅Ρ Π°Π½ΠΈΠ·ΠΌΠ°. Π§ΡΠΎΠ±Ρ ΠΌΠ°ΠΊΡΠΈΠΌΠ°Π»ΡΠ½ΠΎ ΠΏΡΠΎΠ΄Π»ΠΈΡΡ ΡΡΠΎΠΊ ΡΠ»ΡΠΆΠ±Ρ ΡΡΡΡΠΎΠΉΡΡΠ²Π°, ΡΠ΅Π»ΡΡΡ ΠΈΠ·Π³ΠΎΡΠ°Π²Π»ΠΈΠ²Π°ΡΡΡΡ ΠΈΠ· ΠΌΠ΅ΡΠ°Π»Π»Π°, Π° Π΄Π»Ρ ΠΎΠ±Π΅ΡΠΏΠ΅ΡΠ΅Π½ΠΈΡ Π½Π΅ΠΎΠ±Ρ ΠΎΠ΄ΠΈΠΌΠΎΠ³ΠΎ Ρ ΠΎΠ΄Π° ΠΏΠΎΠ»ΠΎΠ·ΡΡΠΌ ΡΠΎΠ»ΠΈΠΊΠΈ ΠΏΡΠΎΠΈΠ·Π²ΠΎΠ΄ΡΡΡΡ ΠΈΠ· ΠΏΠ»Π°ΡΡΠΈΠΊΠ°.
Π ΠΎΠ»ΠΈΠΊΠΎΠ²ΡΠ΅ Π½Π°ΠΏΡΠ°Π²Π»ΡΡΡΠΈΠ΅ Π΄Π»Ρ ΡΡΠΈΠΊΠΎΠ².
ΠΠ»Π°Π²Π½ΠΎΠΉ ΠΏΡΠΈΡΠΈΠ½ΠΎΠΉ ΠΈΡΠΏΠΎΠ»ΡΠ·ΠΎΠ²Π°Π½ΠΈΡ ΡΠΎΠ»ΠΈΠΊΠΎΠ²ΡΡ
Π½Π°ΠΏΡΠ°Π²Π»ΡΡΡΠΈΡ
ΡΠ²Π»ΡΠ΅ΡΡΡ ΠΏΡΠ°ΠΊΡΠΈΡΠ΅ΡΠΊΠΈ ΠΏΠΎΠ»Π½ΠΎΠ΅ ΠΎΡΡΡΡΡΡΠ²ΠΈΠ΅ ΡΡΠ΅Π½ΠΈΡ ΠΌΠ΅ΠΆΠ΄Ρ Π΄Π²ΠΈΠΆΡΡΠΈΠΌΠΈΡΡ ΡΠ°ΡΡΡΠΌΠΈ.
Β Π Π²Π΅Π΄Ρ ΡΡΠΎΡ ΠΏΡΠΎΡΠ΅ΡΡ Π½Π΅ΡΠΊΠΎΡΠ½ΠΈΡΠ΅Π»ΡΠ½ΠΎ ΠΏΡΠΈΠ²ΠΎΠ΄ΠΈΡ ΠΊ ΠΏΠΎΠ²ΡΠ΅ΠΆΠ΄Π΅Π½ΠΈΡ ΠΈ ΠΏΠΎΡΠ»Π΅Π΄ΡΡΡΠ΅ΠΌΡ ΡΠ°Π·ΡΡΡΠ΅Π½ΠΈΡ Π²Π·Π°ΠΈΠΌΠΎΠ΄Π΅ΠΉΡΡΠ²ΡΡΡΠΈΡ
ΠΏΠΎΠ²Π΅ΡΡ
Π½ΠΎΡΡΠ΅ΠΉ ΠΈ ΠΊΠΎΠ½ΡΡΡΡΠΊΡΠΈΠΈ Π² ΡΠ΅Π»ΠΎΠΌ.
ΠΠΎΠΆΠ½ΠΎ Π½Π°ΠΉΡΠΈ ΡΠΎΠ»ΠΈΠΊΠΎΠ²ΡΠ΅ Π½Π°ΠΏΡΠ°Π²Π»ΡΡΡΠΈΠ΅ Π΄Π»Ρ ΡΡΠΈΠΊΠΎΠ² Π³Π»ΡΠ±ΠΈΠ½ΠΎΠΉ ΠΎΡ 250 Π΄ΠΎ 800 ΠΌΠΌ, ΡΠΎ Π΅ΡΡΡ ΠΏΡΠ°ΠΊΡΠΈΡΠ΅ΡΠΊΠΈ Π½Π° Π²ΡΠ΅ ΡΠ»ΡΡΠ°ΠΈ.
ΠΠ΄ΠΎΠ±Π°Π²ΠΎΠΊ ΠΈΠ·-Π·Π° ΡΡΠ΅Π½ΠΈΡ ΡΡΠ΅Π±ΡΠ΅ΡΡΡ Π³ΠΎΡΠ°Π·Π΄ΠΎ Π±ΠΎΠ»ΡΡΠ΅ ΡΡΠΈΠ»ΠΈΠΉ Π΄Π»Ρ ΠΏΠ΅ΡΠ΅ΠΌΠ΅ΡΠ΅Π½ΠΈΡ ΠΏΠΎΠ»ΠΎΠ·ΡΠ΅Π², ΠΊΠΎΡΠΎΡΠΎΠ΅ ΠΊ ΡΠΎΠΌΡ ΠΆΠ΅ ΠΏΡΠΎΠΈΡΡ ΠΎΠ΄ΠΈΡ Ρ ΠΌΠ΅Π½ΡΡΠ΅ΠΉ ΡΠΊΠΎΡΠΎΡΡΡΡ.
ΠΠΎΠΊΡΡΡΡ ΡΠΎΠ»ΠΈΠΊΠΎΠ²ΡΠ΅ Π½Π°ΠΏΡΠ°Π²Π»ΡΡΡΠΈΠ΅ ΠΏΡΠΎΡΠ½ΠΎΠΉ ΡΠΏΠΎΠΊΡΠΈΠ΄Π½ΠΎΠΉ ΡΠΌΠ°Π»ΡΡ.
Π‘ΠΎΠ΄Π΅ΡΠΆΠ°Π½ΠΈΠ΅
ΠΡΠ»ΠΈΡΠΈΠ΅ ΡΠ°ΡΠΈΠΊΠΎΠ²ΡΡ Β Π½Π°ΠΏΡΠ°Π²Π»ΡΡΡΠΈΡ ΠΎΡ ΡΠΎΠ»ΠΈΠΊΠΎΠ²ΡΡ
ΠΠ±Π»Π°Π΄Π°Ρ ΡΠΎΠ±ΡΡΠ²Π΅Π½Π½ΡΠΌ Π½Π°Π±ΠΎΡΠΎΠΌ ΠΏΠΎΠ»Π΅Π·Π½ΡΡ ΡΠ²ΠΎΠΉΡΡΠ², ΡΠ°ΡΠΈΠΊΠΎΠ²ΡΠ΅ Π½Π°ΠΏΡΠ°Π²Π»ΡΡΡΠΈΠ΅ Π΄ΠΎΡΡΠ°ΡΠΎΡΠ½ΠΎ Π΄Π°Π²Π½ΠΎ ΠΊΠΎΠ½ΠΊΡΡΠΈΡΡΡΡ Ρ ΡΠΎΠ»ΠΈΠΊΠΎΠ²ΡΠΌΠΈ.
Π¨Π°ΡΠΈΠΊΠΎΠ²ΡΠ΅ Π½Π°ΠΏΡΠ°Π²Π»ΡΡΡΠΈΠ΅ ΡΠ°ΠΊΠΆΠ΅ ΠΊΠ°ΠΊ ΠΈ ΡΠΎΠ»ΠΈΠΊΠΎΠ²ΡΠ΅ ΡΠΎΡΡΠΎΡΡ ΠΈΡ Π΄Π²ΡΡ ΡΠ°ΡΡΠ΅ΠΉ. ΠΠ΄Π½Π° ΠΈΠ· Π½ΠΈΡ ΠΊΡΠ΅ΠΏΠΈΡΡΡ Π½Π° ΡΡΠΈΠΊ, Π΄ΡΡΠ³Π°Ρ Π½Π° Π±ΠΎΠΊΠΎΠ²ΡΡ ΡΡΠ΅Π½ΠΊΡ.
Π ΠΏΠ΅ΡΠ²ΠΎΠΌ ΡΠ»ΡΡΠ°Π΅ Π² ΡΠΎΠ»ΠΈ ΠΊΠΎΠΌΠΏΠ»Π΅ΠΊΡΡΡΡΠ΅ΠΉ, ΠΎΠ±Π΅ΡΠΏΠ΅ΡΠΈΠ²Π°ΡΡΠ΅ΠΉ ΠΏΠΎΠ΄Π²ΠΈΠΆΠ½ΠΎΡΡΡ ΠΈΠΌΠΏΡΠΎΠ²ΠΈΠ·ΠΈΡΠΎΠ²Π°Π½Π½ΡΠΌ ΡΠ΅Π»ΡΡΠ°ΠΌ, Π²ΡΡΡΡΠΏΠ°Π΅Ρ Π½Π΅Π±ΠΎΠ»ΡΡΠΎΠΉ ΡΠ°ΡΠΈΠΊ, Π° Π²ΠΎ Π²ΡΠΎΡΠΎΠΌ β ΠΌΠ°Π»Π΅Π½ΡΠΊΠΈΠΉ ΡΠΎΠ»ΠΈΠΊ.
ΠΠ΅Ρ
Π°Π½ΠΈΠ·ΠΌ ΡΠ°ΡΠΈΠΊΠΎΠ²ΡΡ
Π½Π°ΠΏΡΠ°Π²Π»ΡΡΡΠΈΡ
.
ΠΠ΅Ρ Π°Π½ΠΈΠ·ΠΌ ΡΠΎΠ»ΠΈΠΊΠΎΠ²ΡΡ Π½Π°ΠΏΡΠ°Π²Π»ΡΡΡΠΈΡ .
Π Π΄Π°ΠΆΠ΅ Π½Π΅ΡΠΌΠΎΡΡΡ Π½Π° ΡΠΎ, ΡΡΠΎ ΠΏΡΠΈ ΠΈΠ·Π³ΠΎΡΠΎΠ²Π»Π΅Π½ΠΈΠΈ ΠΏΠΎΡΠ»Π΅Π΄Π½Π΅Π³ΠΎ ΠΌΠΎΠ³ΡΡ Π±ΡΡΡ ΠΈΡΠΏΠΎΠ»ΡΠ·ΠΎΠ²Π°Π½Ρ ΠΏΠΎΠ΄ΡΠΈΠΏΠ½ΠΈΠΊΠΈ, ΡΠΎΠ΄Π΅ΡΠΆΠ°ΡΠΈΠ΅ ΡΡΠ΅ΡΠΈΡΠ΅ΡΠΊΠΈΠ΅ ΡΠ»Π΅ΠΌΠ΅Π½ΡΡ, ΠΈΠΌΠ΅Π½Π½ΠΎ ΡΡΠ° ΠΎΡΠΎΠ±Π΅Π½Π½ΠΎΡΡΡ ΠΌΠ΅Ρ Π°Π½ΠΈΠ·ΠΌΠΎΠ² ΠΏΠΎΡΠ»ΡΠΆΠΈΠ»Π° ΠΏΡΠΈΡΠΈΠ½ΠΎΠΉ ΠΈΡ Π½Π°Π·Π²Π°Π½ΠΈΡ.
Π ΠΎΠ»ΠΈΠΊΠΎΠ²ΡΠ΅ Π½Π°ΠΏΡΠ°Π²Π»ΡΡΡΠΈΠ΅ Π²ΡΠ΄Π΅ΡΠΆΠΈΠ²Π°ΡΡ Π΄ΠΈΠ½Π°ΠΌΠΈΡΠ΅ΡΠΊΡΡ Π½Π°Π³ΡΡΠ·ΠΊΡ Π΄ΠΎ 25 ΠΊΠ³.
ΠΡΠ»ΠΈ Π³ΠΎΠ²ΠΎΡΠΈΡΡ ΠΎ ΠΏΠΎΠΏΡΠ»ΡΡΠ½ΠΎΡΡΠΈ ΡΠΊΠ°Π·Π°Π½Π½ΡΡ ΡΡΡΡΠΎΠΉΡΡΠ², ΡΠΎ Π½Π°ΠΈΠ±ΠΎΠ»Π΅Π΅ ΡΠ°ΡΠΏΡΠΎΡΡΡΠ°Π½Π΅Π½Π½ΡΠΌΠΈ ΡΡΠΈΡΠ°ΡΡΡΡ Π²ΡΠ΅ ΠΆΠ΅ ΡΠΎΠ»ΠΈΠΊΠΎΠ²ΡΠ΅ ΠΈΠ·Π΄Π΅Π»ΠΈΡ.
ΠΠΈΠ½ΡΡΡ ΡΠΎΠ»ΠΈΠΊΠΎΠ²ΡΡ Π½Π°ΠΏΡΠ°Π²Π»ΡΡΡΠΈΡ ΡΡΠΎ ΡΡΠΌ Ρ ΠΊΠΎΡΠΎΡΡΠΌ ΠΎΠ½ΠΈ Π²ΡΠ΄Π²ΠΈΠ³Π°ΡΡΡΡ ΠΈ Π·Π°ΠΊΡΡΠ²Π°ΡΡΡΡ.
ΠΠ° ΠΈΡ Π²ΠΎΡΡΡΠ΅Π±ΠΎΠ²Π°Π½Π½ΠΎΡΡΡ ΠΏΠΎΠ²Π»ΠΈΡΠ» ΡΠΎΡ ΡΠ°ΠΊΡ, ΡΡΠΎ ΡΠ°ΡΠΈΠΊΠΎΠ²ΡΠ΅ Π½Π°ΠΏΡΠ°Π²Π»ΡΡΡΠΈΠ΅ Π³ΠΎΡΠ°Π·Π΄ΠΎ ΡΠ°ΡΠ΅ Π²ΡΡΡΠ΅ΡΠ°ΡΡΡΡ Π² Π½Π΅ΡΠ°Π·Π±ΠΎΡΠ½ΠΎΠΌ Π²Π°ΡΠΈΠ°Π½ΡΠ΅. ΠΡΠΎ Π½Π΅ ΡΡΠΎΠ»ΡΠΊΠΎ ΠΏΡΠ΅ΠΏΡΡΡΡΠ²ΡΠ΅Ρ ΠΌΠΎΠ½ΡΠ°ΠΆΡ ΠΈΠ»ΠΈ Π·Π°ΡΡΡΠ΄Π½ΡΠ΅Ρ ΡΡΡΠ°Π½ΠΎΠ²ΠΊΡ, ΡΠΊΠΎΠ»ΡΠΊΠΎ ΡΠ΅ΡΡΠ΅Π·Π½ΠΎ ΠΎΠ³ΡΠ°Π½ΠΈΡΠΈΠ²Π°Π΅Ρ ΡΡΠ΅ΡΡ ΠΏΡΠΈΠΌΠ΅Π½Π΅Π½ΠΈΡ ΠΌΠ΅Ρ Π°Π½ΠΈΠ·ΠΌΠ°.
Π Π°Π·Π½ΠΎΠ²ΠΈΠ΄Π½ΠΎΡΡΠ΅ΠΉ ΡΠ°ΡΠΈΠΊΠΎΠ²ΡΡ Π½Π°ΠΏΡΠ°Π²Π»ΡΡΡΠΈΡ ΠΌΠ½ΠΎΠ³ΠΎ, ΡΠ°Π·Π»ΠΈΡΠ°ΡΡΡΡ ΠΎΠ½ΠΈ Π² ΠΎΡΠ½ΠΎΠ²Π½ΠΎΠΌ ΠΏΠΎ Π²ΡΡΠΎΡΠ΅, Π° ΡΠ°ΠΊΠΆΠ΅ ΠΏΠΎ ΡΡΠ΅ΠΏΠ΅Π½ΠΈ Π²ΡΠ΄Π²ΠΈΠΆΠ΅Π½ΠΈΡ ΠΈ Π½Π°Π»ΠΈΡΠΈΡ Π΄ΠΎΠ²ΠΎΠ΄ΡΠΈΠΊΠ°.
ΠΡΠΏΠΎΠ»ΡΠ·ΠΎΠ²Π°Π½ΠΈΠ΅ ΡΠΎΠ»ΠΈΠΊΠΎΠ²ΡΡ Π½Π°ΠΏΡΠ°Π²Π»ΡΡΡΠΈΡ Π² ΠΊΠΎΠ½ΡΡΡΡΠΊΡΠΈΠΈ Π²ΡΠ΄Π²ΠΈΠΆΠ½ΠΎΠ³ΠΎ ΡΡΠΈΠΊΠ°
Π‘ Π½Π΅ΠΊΠΎΡΠΎΡΡΡ
ΠΏΠΎΡ ΠΎΠ±Π»Π°ΡΡΡ ΠΏΡΠΈΠΌΠ΅Π½Π΅Π½ΠΈΡ ΡΠΎΠ»ΠΈΠΊΠΎΠ²ΡΡ
Π½Π°ΠΏΡΠ°Π²Π»ΡΡΡΠΈΡ
Π½Π΅ΡΠ°Π·ΡΡΠ²Π½ΠΎ ΡΠ²ΡΠ·Π°Π½Π° Ρ ΠΌΠ΅Π±Π΅Π»ΡΠ½ΡΠΌ ΠΏΡΠΎΠΈΠ·Π²ΠΎΠ΄ΡΡΠ²ΠΎΠΌ.
ΠΠΌΠ΅Π½Π½ΠΎ Π² ΡΡΠΎΠΉ ΡΡΠ΅ΡΠ΅ ΡΠ°ΡΠ΅ Π²ΡΠ΅Π³ΠΎ Π·Π°Π΄Π΅ΠΉΡΡΠ²ΠΎΠ²Π°Π½Ρ ΡΠ°ΠΊΠΈΠ΅ ΠΏΡΠ΅Π΄ΠΌΠ΅ΡΡ.
Π£ΡΡΡΠΎΠΉΡΡΠ²ΠΎ ΠΎΠ±ΡΡΠ½ΠΎ ΠΈΡΠΏΠΎΠ»ΡΠ·ΡΠ΅ΡΡΡ Π΄Π»Ρ ΠΈΠ·Π³ΠΎΡΠΎΠ²Π»Π΅Π½ΠΈΡ Π³Π°ΡΠ΄Π΅ΡΠΎΠ±ΠΎΠ² ΡΠΎ ΡΠΊΠ»Π°Π΄Π½ΡΠΌΠΈ ΡΡΠ°Π½Π³Π°ΠΌΠΈ, ΠΎΠ±ΡΠ²Π½ΡΡ ΡΡΠΌΠ± ΡΠΎ ΡΠΊΡΡΡΡΠΌΠΈ Π½ΠΈΡΠ°ΠΌΠΈ ΠΈ ΡΠΊΠ°ΡΠΎΠ² Ρ Π²ΡΠ΄Π²ΠΈΠΆΠ½ΡΠΌΠΈ ΡΡΠΈΠΊΠ°ΠΌΠΈ. Π’Π°ΠΊ ΠΊΠ°ΠΊ ΠΏΠΎΡΠ»Π΅Π΄Π½ΠΈΠ΅ ΡΠ°ΡΠΏΡΠΎΡΡΡΠ°Π½Π΅Π½Ρ Π² Π±ΠΎΠ»ΡΡΠ΅ΠΉ ΡΡΠ΅ΠΏΠ΅Π½ΠΈ, ΠΎ Π½ΠΈΡ ΠΈ ΠΏΠΎΠΉΠ΄Π΅Ρ ΡΠ΅ΡΡ Π² Π΄Π°Π»ΡΠ½Π΅ΠΉΡΠ΅ΠΌ.
ΠΡΠΈΠΌΠ΅Ρ ΠΈΡΠΏΠΎΠ»ΡΠ·ΠΎΠ²Π°Π½ΠΈΡ ΡΠΎΠ»ΠΈΠΊΠΎΠ²ΡΡ Π½Π°ΠΏΡΠ°Π²Π»ΡΡΡΠΈΡ Π΄Π»Ρ Π²ΡΠ΄Π²ΠΈΠΆΠ΅Π½ΠΈΡ ΡΡΠΈΠΊΠΎΠ² Π² ΡΡΠΌΠ±Π΅.
ΠΡΠ΅ΠΏΠ»Π΅Π½ΠΈΠ΅ ΠΌΠ΅Ρ Π°Π½ΠΈΠ·ΠΌΠ° ΠΎΡΡΡΠ΅ΡΡΠ²Π»ΡΠ΅ΡΡΡ Π½Π° Π±ΠΎΠΊΠΎΠ²ΡΠ΅ ΡΡΠ΅Π½ΠΊΠΈ ΠΊΠΎΡΠΎΠ±Π° Ρ Π²Π½Π΅ΡΠ½Π΅ΠΉ ΡΡΠΎΡΠΎΠ½Ρ, ΡΡΠΎ Π½Π΅ ΡΠΏΠΎΡΠΎΠ±ΡΡΠ²ΡΠ΅Ρ ΡΠΌΠ΅Π½ΡΡΠ΅Π½ΠΈΡ ΠΏΠΎΠ»Π΅Π·Π½ΠΎΠ³ΠΎ ΠΏΡΠΎΡΡΡΠ°Π½ΡΡΠ²Π° ΡΠ°ΠΌΠΎΠ³ΠΎ ΡΡΠΈΠΊΠ°.
Π ΠΎΠ»ΠΈΠΊΠΎΠ²ΡΠ΅ Π½Π°ΠΏΡΠ°Π²Π»ΡΡΡΠΈΠ΅ β ΡΡΠΎ Π½Π°ΠΏΡΠ°Π²Π»ΡΡΡΠΈΠ΅ ΡΠ°ΡΡΠΈΡΠ½ΠΎΠ³ΠΎ Π²ΡΠ΄Π²ΠΈΠΆΠ΅Π½ΠΈΡ.
ΠΡΠΎ Π·Π½Π°ΡΠΈΡ, ΡΡΠΎ ΠΏΠΎΠ»Π½ΠΎΡΡΡΡ ΡΡΠΈΠΊ Π²ΡΠ΄Π²ΠΈΠ½ΡΡΡ Π²Ρ Π½Π΅ ΡΠΌΠΎΠΆΠ΅ΡΠ΅.
ΠΠ»Ρ ΡΠΎΠ³ΠΎ, ΡΡΠΎΠ±Ρ Π½Π΅ ΠΏΠΎΠ²ΡΠ΅Π΄ΠΈΡΡ Π·Π°Π΄Π½ΡΡ ΡΡΠ΅Π½ΠΊΡ ΡΠΊΠ°ΡΠ° ΠΈ Π½Π΅ ΠΎΡΡΠΎΠ΅Π΄ΠΈΠ½ΠΈΡΡ ΠΎΡ Π½Π΅Π³ΠΎ ΡΡΠΈΠΊ, ΠΏΠΎΠ»ΠΎΠ·ΡΡ ΡΠΎΠ΄Π΅ΡΠΆΠ°Ρ ΡΠΏΠ΅ΡΠΈΠ°Π»ΡΠ½ΡΠ΅ ΠΎΠ³ΡΠ°Π½ΠΈΡΠΈΡΠ΅Π»ΠΈ, ΠΏΡΠΈΠ½ΠΈΠΌΠ°ΡΡΠΈΠ΅ Π²ΠΈΠ΄ ΠΈΡΠΊΡΡΡΡΠ²Π΅Π½Π½ΡΡ Π½Π΅ΡΠΎΠ²Π½ΠΎΡΡΠ΅ΠΉ Π½Π° ΠΏΠΎΠ²Π΅ΡΡ Π½ΠΎΡΡΠΈ ΡΠ΅Π»ΡΡΡ.
ΠΡΠ°Π²ΠΈΠ»ΡΠ½ΡΠΉ ΡΠ°ΡΡΠ΅Ρ ΠΈ ΠΌΠΎΠ½ΡΠ°ΠΆ β ΡΡΠΎ ΠΎΡΠ½ΠΎΠ²Π° ΡΡΠΏΠ΅ΡΠ½ΠΎΠ³ΠΎ ΠΏΡΠΈΠΌΠ΅Π½Π΅Π½ΠΈΡ ΡΠΎΠ»ΠΈΠΊΠΎΠ²ΡΡ Π½Π°ΠΏΡΠ°Π²Π»ΡΡΡΠΈΡ .
Π Π² ΡΠ΅Π»ΡΡ
ΠΏΡΠ΅Π΄ΠΎΡΡΠ°Π²Π»Π΅Π½ΠΈΡ Π΄ΠΎΠΏΠΎΠ»Π½ΠΈΡΠ΅Π»ΡΠ½ΡΡ
Π²ΠΎΠ·ΠΌΠΎΠΆΠ½ΠΎΡΡΠ΅ΠΉ, ΠΊΠ°ΡΠ°ΡΡΠΈΡ
ΡΡ ΡΠ½ΡΡΠΈΡ ΠΈ ΡΡΡΠ°Π½ΠΎΠ²ΠΊΠΈ ΡΡΠΈΠΊΠ°, ΠΎΡΠ½ΠΎΠ²Π½ΡΠ΅ ΠΊΠΎΠΌΠΏΠ»Π΅ΠΊΡΡΡΡΠΈΠ΅ ΠΈΠΌΠ΅ΡΡ ΡΠ΅Ρ
Π½ΠΎΠ»ΠΎΠ³ΠΈΡΠ΅ΡΠΊΠΈΠ΅ ΠΎΡΠ²Π΅ΡΡΡΠΈΡ.
Β
Π¨Π°ΡΠΈΠΊΠΎΠ²ΡΠ΅ Π½Π°ΠΏΡΠ°Π²Π»ΡΡΡΠΈΠ΅ Π½Π΅ ΠΏΠΎΠ·Π²ΠΎΠ»ΠΈΠ»ΠΈ Π±Ρ Π²ΡΡΠ°ΡΠΊΠΈΠ²Π°ΡΡ ΠΈ Π²ΡΡΠ°Π²Π»ΡΡΡ ΡΡΠΈΠΊ ΠΏΠΎΡΠ»Π΅ ΡΠ±ΠΎΡΠΊΠΈ ΠΌΠ΅Π±Π΅Π»ΠΈ Π±Π΅Π· Π½Π°ΡΡΡΠ΅Π½ΠΈΡ Π΅Π΅ ΡΠ°ΡΠ°Π΄ΠΎΠ².
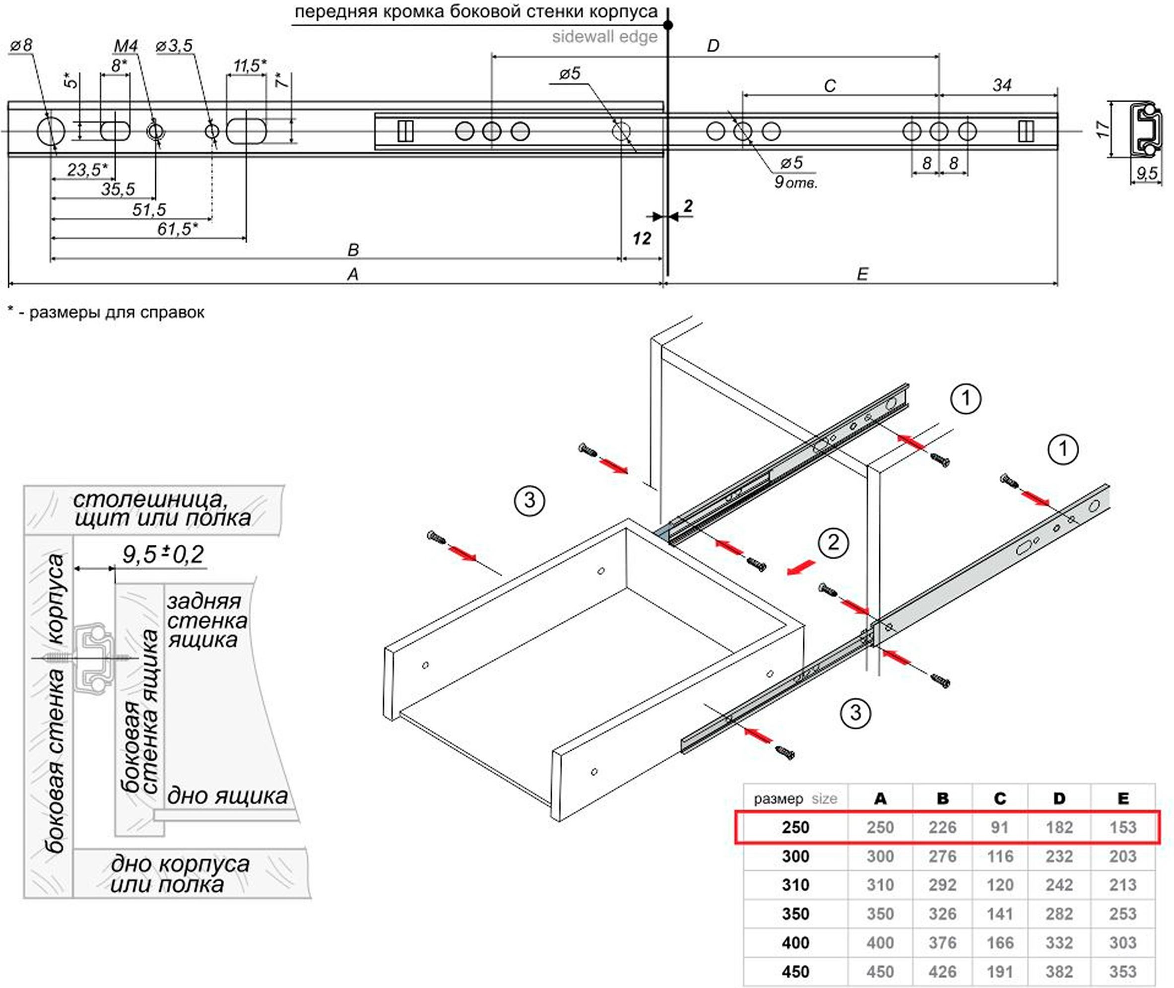
ΠΠΎΠ½ΡΠ°ΠΆ ΡΠΎΠ»ΠΈΠΊΠΎΠ²ΡΡ Π½Π°ΠΏΡΠ°Π²Π»ΡΡΡΠΈΡ Π΄Π»Ρ Π²ΡΠ΄Π²ΠΈΠΆΠ½ΡΡ ΡΡΠΈΠΊΠΎΠ²
- ΠΠ΅ΡΠ΅Π΄ ΡΡΡΠ°Π½ΠΎΠ²ΠΊΠΎΠΉ ΡΡΡΡΠΎΠΉΡΡΠ²Π° ΠΆΠ΅Π»Π°ΡΠ΅Π»ΡΠ½ΠΎ ΠΏΡΠΎΠΈΠ·Π²Π΅ΡΡΠΈ ΡΡΠ°ΡΠ΅Π»ΡΠ½ΡΠΉ ΡΠ°ΡΡΠ΅Ρ β ΡΡΠΎ ΠΎΠ΄Π½ΠΎΠ·Π½Π°ΡΠ½ΠΎ ΡΠ±Π΅ΡΠ΅ΠΆΠ΅Ρ Π±ΠΎΠΊΠΎΠ²ΡΠ΅ ΡΡΠ΅Π½ΠΊΠΈ ΡΠΊΠ°ΡΠ° ΠΎΡ Π»ΠΈΡΠ½ΠΈΡ
ΠΎΡΠ²Π΅ΡΡΡΠΈΠΉ.
Π―ΡΠΈΠΊΠΈ, Π½Π° ΠΊΠΎΡΠΎΡΡΠ΅ Π±ΡΠ΄ΡΡ ΡΡΡΠ°Π½Π°Π²Π»ΠΈΠ²Π°ΡΡΡΡ Π½Π°ΠΏΡΠ°Π²Π»ΡΡΡΠΈΠ΅.
ΠΡΠ΅ΠΏΠ»Π΅Π½ΠΈΠ΅ Π½Π°ΠΏΡΠ°Π²Π»ΡΡΡΠ΅ΠΉ ΠΊ Π±ΠΎΠΊΠΎΠ²ΠΎΠΉ ΠΏΠΎΠ²Π΅ΡΡ Π½ΠΎΡΡΠΈ ΡΡΠΈΠΊΠ°.
- ΠΡΠΎΠΌΠ΅ ΡΠΊΠ°Π·Π°Π½ΠΈΡ Π²ΡΠ΅Ρ
Π½Π΅ΠΎΠ±Ρ
ΠΎΠ΄ΠΈΠΌΡΡ
ΡΠ°Π·ΠΌΠ΅ΡΠΎΠ² Π½ΡΠΆΠ½ΠΎ ΡΡΠ΅ΡΡΡ ΡΡΠΎΠ²Π΅Π½Ρ Π±ΡΠ΄ΡΡΠ΅ΠΉ ΠΊΠΎΠ½ΡΡΡΡΠΊΡΠΈΠΈ: ΠΈΠΌΠΏΡΠΎΠ²ΠΈΠ·ΠΈΡΠΎΠ²Π°Π½Π½Π°Ρ Π»ΠΈΠ½ΠΈΡ, ΠΊΠΎΡΠΎΡΡΡ ΠΎΠ±ΡΠ°Π·ΡΡΡ ΠΏΠΎΠ»ΠΎΠ·ΡΡ, Π΄ΠΎΠ»ΠΆΠ½Π° ΠΏΠΎ ΠΌΠ°ΠΊΡΠΈΠΌΡΠΌΡ ΡΠΎΠ²ΠΏΠ°Π΄Π°ΡΡ Ρ ΡΠ°Π±ΠΎΡΠ΅ΠΉ Π³ΠΎΡΠΈΠ·ΠΎΠ½ΡΠ°Π»ΡΡ. ΠΡΠΈΡΠ΅ΠΌ Π½Π°ΠΏΡΠ°Π²Π»ΡΡΡΠΈΠ΅ ΠΌΠΎΠ³ΡΡ Π±ΡΡΡ ΡΡΡΡ Π΄Π»ΠΈΠ½Π½Π΅Π΅, ΡΠ΅ΠΌ ΡΡΠ΅Π±ΡΠ΅ΡΡΡ, ΠΈ, Π΅ΡΠ»ΠΈ ΠΏΠΎΠ·Π²ΠΎΠ»ΡΠ΅Ρ Π³Π»ΡΠ±ΠΈΠ½Π° ΠΌΠ΅Π±Π΅Π»ΠΈ, Π½Π΅ΠΌΠ½ΠΎΠ³ΠΎ Π²ΡΡ
ΠΎΠ΄ΠΈΡΡ Π·Π° Π·Π°Π΄Π½ΡΡ ΡΡΠ΅Π½ΠΊΡ ΡΡΠΈΠΊΠ°.
Π―ΡΠΈΠΊ Ρ ΡΡΡΠ°Π½ΠΎΠ²Π»Π΅Π½Π½ΡΠΌΠΈ Π½Π°ΠΏΡΠ°Π²Π»ΡΡΡΠΈΠΌΠΈ.
Π Π°Π·ΠΌΠ΅ΡΠΊΠ° Π½Π°ΠΏΡΠ°Π²Π»ΡΡΡΠΈΡ Π½Π° ΡΡΠ΅Π½ΠΊΠ°Ρ ΡΠ°ΡΠ°Π΄Π°.
- ΠΠΎΡΠ»Π΅ ΡΠΎΠ³ΠΎ, ΠΊΠ°ΠΊ Π²ΡΠ΅ ΡΠ°Π·ΠΌΠ΅ΡΡ Π½Π°Π½Π΅ΡΠ΅Π½Ρ ΠΈ Π½Π΅ΠΎΠ΄Π½ΠΎΠΊΡΠ°ΡΠ½ΠΎ ΠΏΠ΅ΡΠ΅ΠΏΡΠΎΠ²Π΅ΡΠ΅Π½Ρ, ΡΠ»Π΅Π΄ΡΠ΅Ρ ΠΏΡΠΈΡΡΡΠΏΠ°ΡΡ ΠΊ ΠΌΠΎΠ½ΡΠ°ΠΆΡ. ΠΠ°ΠΆΠ½ΠΎ ΠΏΠΎΠ½ΠΈΠΌΠ°ΡΡ, ΡΡΠΎ Π±ΠΎΠΊΠΎΠ²ΡΠ΅ ΡΡΠ΅Π½ΠΊΠΈ ΡΡΠΈΠΊΠ° ΠΌΠΎΠ³ΡΡ Π±ΡΡΡ Π²ΡΠΏΠΎΠ»Π½Π΅Π½Ρ ΠΈΠ· ΡΠ°ΠΌΡΡ
ΡΠ°Π·Π»ΠΈΡΠ½ΡΡ
ΠΌΠ°ΡΠ΅ΡΠΈΠ°Π»ΠΎΠ².
ΠΠΎΡΡΠΎΠΌΡ Π²ΠΎ ΠΈΠ·Π±Π΅ΠΆΠ°Π½ΠΈΠ΅ ΡΠ°Π·ΡΡΡΠ΅Π½ΠΈΡ ΠΈΡ
ΠΏΠΎΠ²Π΅ΡΡ
Π½ΠΎΡΡΠ΅ΠΉ ΡΡΠΎΠΈΡ ΠΏΡΠΎΡΠ²Π΅ΡΠ»ΠΈΡΡ ΠΎΡΠ²Π΅ΡΡΡΠΈΡ Π΄ΡΠ΅Π»ΡΡ.ΠΠ°Π½Π½ΡΡ ΠΌΠ°Π½ΠΈΠΏΡΠ»ΡΡΠΈΡ ΠΏΠΎΠ²ΡΠΎΡΡΠ΅ΠΌ Π΄Π»Ρ Π²ΡΠ΅Ρ ΡΡΠ΅Ρ ΠΏΠ°Ρ Π½Π°ΠΏΡΠ°Π²Π»ΡΡΡΠΈΡ .
Π‘Π±ΠΎΡΠΊΠ° ΠΊΠΎΡΠΎΠ±Π° Ρ ΡΡΡΠ°Π½ΠΎΠ²Π»Π΅Π½Π½ΡΠΌΠΈ Π½Π°ΠΏΡΠ°Π²Π»ΡΡΡΠΈΠΌΠΈ.
ΠΡΠΏΠΎΠ»ΡΠ·ΠΎΠ²Π°Π½ΠΈΠ΅ ΠΌΠ΅Ρ Π°Π½ΠΈΠ·ΠΌΠ° Ρ Π½Π°ΠΆΠΈΠΌΠ½ΡΠΌΠΈ ΡΠΎΠ»ΠΊΠ°ΡΠ΅Π»ΡΠΌΠΈ, Π²ΡΠΏΠΎΠ»Π½ΡΡΡΠΈΠΌΠΈ ΡΠ°ΠΊΠΆΠ΅ ΡΠΎΠ»Ρ ΠΎΠ³ΡΠ°Π½ΠΈΡΠΈΡΠ΅Π»Π΅ΠΉ, ΠΏΠΎΠ·Π²ΠΎΠ»ΡΠ΅Ρ Π±Π΅Π· ΠΏΠΎΡΠ΅ΡΠΈ ΡΡΠ½ΠΊΡΠΈΠΎΠ½Π°Π»ΡΠ½ΠΎΡΡΠΈ ΡΠΎΡ ΡΠ°Π½ΠΈΡΡ Π²Π½Π΅ΡΠ½ΠΈΠΉ Π²ΠΈΠ΄ ΡΠ°ΡΠ°Π΄ΠΎΠ² ΠΌΠ΅Π±Π΅Π»ΠΈ ΠΈ Π΅Π΅ Π·Π°Π΄Π½ΡΡ ΡΡΠ΅Π½ΠΊΡ.
Π’ΡΠΌΠ±Π° Ρ ΡΡΡΠ°Π½ΠΎΠ²Π»Π΅Π½Π½ΡΠΌΠΈ ΡΠΎΠ»ΠΈΠΊΠΎΠ²ΡΠΌΠΈ Π½Π°ΠΏΡΠ°Π²Π»ΡΡΡΠΈΠΌΠΈ.
Π£ΡΡΠ°Π½Π°Π²Π»ΠΈΠ²Π°Π΅ΠΌ ΡΠ°ΠΌΠΈ ΡΡΠΈΠΊΠΈ Π²Π½ΡΡΡΡ ΠΊΠΎΡΠΎΠ±Π° ΠΈ ΠΏΠΎΠ»ΡΡΠ°Π΅ΠΌ Π³ΠΎΡΠΎΠ²ΡΠΉ ΠΏΡΠ΅Π΄ΠΌΠ΅Ρ ΠΌΠ΅Π±Π΅Π»ΠΈ.
ΠΠΠΠΠ:Β Π£ΡΡΠ°Π½ΠΎΠ²ΠΊΠ° ΡΠΎΠ»ΠΈΠΊΠΎΠ²ΡΡ Π½Π°ΠΏΡΠ°Π²Π»ΡΡΡΠΈΡ .
50 ΡΠΎΡΠΎ-ΠΈΠ΄Π΅ΠΉ Π²ΡΠ΄Π²ΠΈΠΆΠ½ΡΡ ΡΡΠΈΠΊΠΎΠ² Ρ ΡΠ°Π·Π»ΠΈΡΠ½ΡΠΌΠΈ ΠΌΠ΅Ρ Π°Π½ΠΈΠ·ΠΌΠ°ΠΌΠΈ:
ΠΡΠ΅Π΄ΡΠ΄ΡΡΠ°Ρ
ΠΡΡΠ³ΠΎΠ΅Π¨ΠΈΡΠΌΠ° ΠΈΠ· ΠΏΠ»Π°ΡΡΠΈΠΊΠΎΠ²ΡΡ ΡΡΡΠ± Π΄Π»Ρ Π΄Π΅ΡΡΠΊΠΎΠ³ΠΎ ΡΠ°Π΄Π° ΡΠ²ΠΎΠΈΠΌΠΈ ΡΡΠΊΠ°ΠΌΠΈ.
Π‘Π»Π΅Π΄ΡΡΡΠ°Ρ
ΠΡΡΠ³ΠΎΠ΅ΠΠΊΠΎΠΊΠΎΠΆΠ° Π΄Π»Ρ ΠΌΠ΅Π±Π΅Π»ΠΈ. Π§ΡΠΎ ΡΡΠΎ ΡΠ°ΠΊΠΎΠ΅?
ΠΠ°ΠΊ ΡΠ°Π±ΠΎΡΠ°ΡΡ Π·Π°ΠΌΠΊΠΈ ΠΎΡ Π΄Π΅ΡΠ΅ΠΉ Π½Π° ΡΡΠΈΠΊΠΈ ΠΈ ΡΠΊΠ°ΡΡ?
ΠΡΠ΅ Π½Π΅Π΄Π°Π²Π½ΠΎ Π²Π°ΡΠ΅ ΠΌΠ°Π»Π΅Π½ΡΠΊΠΎΠ΅ ΡΠ°Π΄ΠΎ ΠΏΠΎΡΠ²ΠΈΠ»ΠΎΡΡ Π½Π° ΡΠ²Π΅Ρ, Π° ΡΠΆΠ΅ ΡΠ΅ΠΏΠ΅ΡΡ Π°ΠΊΡΠΈΠ²Π½ΠΎ ΠΈΠ·ΡΡΠ°Π΅Ρ ΠΊΠ°ΠΆΠ΄ΡΠΉ ΡΠ³ΠΎΠ»ΠΎΠΊ ΠΊΠ²Π°ΡΡΠΈΡΡ.
ΠΠΎΡ ΡΡΡ ΠΈ ΡΡΠ°Π½ΠΎΠ²ΠΈΡΡΡ Π½Π΅ΠΎΠ±Ρ
ΠΎΠ΄ΠΈΠΌΡΠΌ ΠΏΠΎΠ΄ΡΠΌΠ°ΡΡ ΠΎ Π±Π΅Π·ΠΎΠΏΠ°ΡΠ½ΠΎΡΡΠΈ ΠΌΠ°Π»Π΅Π½ΡΠΊΠΎΠ³ΠΎ ΠΈΡΡΠ»Π΅Π΄ΠΎΠ²Π°ΡΠ΅Π»Ρ ΠΎΡ Π½Π΅ΠΆΠ΅Π»Π°ΡΠ΅Π»ΡΠ½ΡΡ
…
ΠΠ°ΠΊΡΡ ΠΊΠ°ΡΡΠΈΠ½Ρ ΠΏΠΎΠ²Π΅ΡΠΈΡΡ Π² ΡΠΏΠ°Π»ΡΠ½Π΅ Π½Π°Π΄ ΠΊΡΠΎΠ²Π°ΡΡΡ?
ΠΠ»Π΅ΠΌΠ΅Π½ΡΡ Π΄Π΅ΠΊΠΎΡΠ° ΡΠ²Π»ΡΡΡΡΡ Π½Π΅ΠΎΡΡΠ΅ΠΌΠ»Π΅ΠΌΠΎΠΉ ΡΠ°ΡΡΡΡ Π»ΡΠ±ΠΎΠ³ΠΎ ΠΈΠ½ΡΠ΅ΡΡΠ΅ΡΠ°. ΠΡΠΏΠΎΠ»ΡΠ·ΠΎΠ²Π°ΡΡ ΠΈΡ Π½ΡΠΆΠ½ΠΎ Π² ΠΊΠΎΠΌΠ½Π°ΡΠ°Ρ Π»ΡΠ±ΠΎΠ³ΠΎ ΠΏΡΠ΅Π΄Π½Π°Π·Π½Π°ΡΠ΅Π½ΠΈΡ. ΠΠ΅ΠΊΠΎΡ ΠΏΡΠΈΠ΄Π°Π΅Ρ ΠΎΠ±ΡΠ΅ΠΌΡ Π²ΠΈΠ΄Ρ ΠΊΠΎΠΌΠ½Π°ΡΡ Π·Π°Π²Π΅ΡΡΠ΅Π½Π½ΠΎΡΡΡ, ΡΠΊΡΠ°ΡΠ°Π΅Ρ Π΅Π΅, Π²Π»Π°Π΄Π΅Π»Π΅Ρ ΠΏΠΎΠ»ΡΡΠ°Π΅Ρ ΡΠ΄ΠΎΠ²ΠΎΠ»ΡΡΡΠ²ΠΈΠ΅…
ΠΠ°ΠΊ ΡΠ΄Π΅Π»Π°ΡΡ ΡΠΎΠΏΠΈΠ°ΡΠΈΠΉ ΠΈΠ· Π±ΡΠΌΠ°ΠΆΠ½ΡΡ ΡΠ°Π»ΡΠ΅ΡΠΎΠΊ ΡΠ²ΠΎΠΈΠΌΠΈ ΡΡΠΊΠ°ΠΌΠΈ?
Π’ΠΎΠΏΠΈΠ°ΡΠΈΠΉ β ΡΡΠΎ Π½Π΅Π±ΠΎΠ»ΡΡΠΎΠ΅ Π΄Π΅ΡΠ΅Π²ΠΎ Ρ ΠΏΡΡΠ½ΠΎΠΉ, Π°ΠΊΠΊΡΡΠ°ΡΠ½ΠΎΠΉ ΠΊΡΠΎΠ½ΠΎΠΉ. Π Π°Π½ΡΡΠ΅ ΡΡΠΎ Π±ΡΠ» Π²ΠΈΠ΄ ΡΠΈΠ³ΡΡΠ½ΠΎΠΉ ΡΡΡΠΈΠΆΠΊΠΈ ΡΠ°Π΄ΠΎΠ²ΡΡ ΡΠ°ΡΡΠ΅Π½ΠΈΠΉ. Π‘Π΅Π³ΠΎΠ΄Π½Ρ ΡΠΎΠΏΠΈΠ°ΡΠΈΠΉ ΠΈΠ»ΠΈ ΠΌΠ°ΠΉΡΠΊΠΎΠ΅ Π΄Π΅ΡΠ΅Π²ΠΎ β ΠΎΠ΄Π½ΠΎ ΠΈΠ· ΠΏΠΎΠΏΡΠ»ΡΡΠ½ΡΡ Π½Π°ΠΏΡΠ°Π²Π»Π΅Π½ΠΈΠΉ ΡΡΠΊΠΎΠ΄Π΅Π»ΠΈΡ. ΠΡΠΏΠΎΠ»ΡΠ·ΡΠ΅ΡΡΡ…
Π‘Π²Π΅ΡΠ»ΠΎ Π΄Π»Ρ ΠΌΠ΅Π±Π΅Π»ΡΠ½ΡΡ ΠΏΠ΅ΡΠ΅Π»Ρ: ΡΡΠΎ ΡΡΠΎ ΡΠ°ΠΊΠΎΠ΅ ΠΈ ΠΊΠ°ΠΊ ΡΡΡΡΠΎΠ΅Π½ΠΎ?
ΠΡΠΈ ΡΡΡΠ°Π½ΠΎΠ²ΠΊΠ΅ ΡΠΎΠ΅Π΄ΠΈΠ½ΠΈΡΠ΅Π»ΡΠ½ΡΡ ΡΠ»Π΅ΠΌΠ΅Π½ΡΠΎΠ² ΠΌΠ΅Π±Π΅Π»ΠΈ ΡΠ΄ΠΎΠ±Π½ΠΎ ΠΈΡΠΏΠΎΠ»ΡΠ·ΠΎΠ²Π°ΡΡ Π΄ΡΠ΅Π»Ρ, Π³Π΄Π΅ ΠΏΡΠΈΠΌΠ΅Π½ΡΠ΅ΡΡΡ ΡΠΏΠ΅ΡΠΈΠ°Π»ΡΠ½ΠΎΠ΅ ΡΠ²Π΅ΡΠ»ΠΎ, Ρ ΠΏΠΎΠΌΠΎΡΡΡ ΠΊΠΎΡΠΎΡΠΎΠ³ΠΎ ΠΌΠΎΠΆΠ½ΠΎ ΡΠ°Π²Π½ΠΎΠΌΠ΅ΡΠ½ΠΎ Π²ΡΠ±ΡΠ°ΡΡ ΠΎΡΡ ΠΎΠ΄Π½ΡΠΉ ΠΌΠ°ΡΠ΅ΡΠΈΠ°Π» ΠΈ ΠΏΡΠΎΠ΄Π΅Π»Π°ΡΡ ΠΎΡΠ²Π΅ΡΡΡΠΈΠ΅ Π½Π° Π½Π΅ΠΎΠ±Ρ ΠΎΠ΄ΠΈΠΌΡΡ…
ΠΠ°ΠΊ ΡΠ΄Π΅Π»Π°ΡΡ ΡΠ²Π΅ΡΡ ΠΈΠ· Π±ΡΠΌΠ°ΠΆΠ½ΡΡ ΡΠ°Π»ΡΠ΅ΡΠΎΠΊ ΡΠ²ΠΎΠΈΠΌΠΈ ΡΡΠΊΠ°ΠΌΠΈ
ΠΠ΅ΠΊΠΎΡ ΠΏΠΎΠΌΠ΅ΡΠ΅Π½ΠΈΡ — ΠΎΠ±ΡΠ·Π°ΡΠ΅Π»ΡΠ½ΡΠΉ ΡΡΠ°ΠΏ ΠΏΠΎΠ΄Π³ΠΎΡΠΎΠ²ΠΊΠΈ ΠΊ ΠΏΡΠ°Π·Π΄Π½ΠΈΠΊΡ.
ΠΠ½Π°Ρ, ΠΊΠ°ΠΊ ΡΠ²ΠΎΠΈΠΌΠΈ ΡΡΠΊΠ°ΠΌΠΈ ΡΠΎΠ·Π΄Π°Π²Π°ΡΡ ΠΊΡΠ°ΡΠΈΠ²ΡΠ΅ ΠΈΠ·Π΄Π΅Π»ΠΈΡ ΠΈΠ· ΠΎΠ±ΡΡΠ½ΡΡ
ΡΠ°Π»ΡΠ΅ΡΠΎΠΊ, ΠΌΠΎΠΆΠ½ΠΎ ΠΎΡΠΎΡΠΌΠΈΡΡ Π»ΡΠ±ΠΎΠ΅ ΡΠΎΡΠΆΠ΅ΡΡΠ²ΠΎ ΠΈ ΠΎΡΠΈΠ³ΠΈΠ½Π°Π»ΡΠ½ΠΎ ΡΠΊΡΠ°ΡΠΈΡΡ Π²Π΅ΡΠ΅ΡΠΈΠ½ΠΊΡ.
Π¦Π²Π΅ΡΡ…
Π‘ΠΎΠ·Π΄Π°Π½ΠΈΠ΅ ΡΠ°Π·Π²ΠΈΠ²Π°ΡΡΠ΅Π³ΠΎ ΠΊΠΎΠ²ΡΠΈΠΊΠ° Π΄Π»Ρ ΠΏΠΎΠ»Π·Π°Π½ΠΈΡ ΡΠ²ΠΎΠΈΠΌΠΈ ΡΡΠΊΠ°ΠΌΠΈ
Π ΠΎΠ΄ΠΈΡΠ΅Π»ΠΈ Π·Π°Π΄Π°ΡΡΡΡ ΡΠ΅Π»ΡΡ Π²ΡΠ΅ΡΡΠΎΡΠΎΠ½Π½Π΅ ΡΠ°Π·Π²ΠΈΠ²Π°ΡΡ ΡΠ²ΠΎΠ΅Π³ΠΎ ΠΌΠ°Π»ΡΡΠ°, Π½Π°ΡΠΈΠ½Π°Ρ ΠΎΡ Π΅Π³ΠΎ ΡΠΎΠΆΠ΄Π΅Π½ΠΈΡ. ΠΠΎΠΌΠΎΡΡ Π² ΡΡΠΎΠΌ ΠΌΠΎΠΆΠ΅Ρ ΠΊΠΎΠ²ΡΠΈΠΊ Π΄Π»Ρ ΠΏΠΎΠ»Π·Π°Π½ΠΈΡ. ΠΡΠΈΠΎΠ±ΡΠ΅ΡΡΠΈ ΠΏΡΠΈΡΠΏΠΎΡΠΎΠ±Π»Π΅Π½ΠΈΠ΅ ΠΌΠΎΠΆΠ½ΠΎ Π² Π΄Π΅ΡΡΠΊΠΎΠΌ ΠΌΠ°Π³Π°Π·ΠΈΠ½Π΅. ΠΠΎ Π³ΠΎΡΠ°Π·Π΄ΠΎ ΠΈΠ½ΡΠ΅ΡΠ΅ΡΠ½Π΅Π΅…
Π£ΡΡΠ°Π½ΠΎΠ²ΠΊΠ° ΡΠΎΠ»ΠΈΠΊΠΎΠ²ΡΡ Π½Π°ΠΏΡΠ°Π²Π»ΡΡΡΠΈΡ
ΠΠ±Π·ΠΎΡ ΡΡΠ»Π΅ΡΠΊΠΈ Festool
Π¨ΠΊΠ°Ρ Π΄Π»Ρ ΠΎΠ±ΡΠ²ΠΈ Π² ΠΏΡΠΈΡ ΠΎΠΆΡΡ Ρ ΠΎΡΠΊΠΈΠ΄Π½ΡΠΌΠΈ ΠΏΠΎΠ»ΠΊΠ°ΠΌΠΈ
ΠΠ°Π²Π½ΠΎ ΡΠΎΠ±ΠΈΡΠ°Π»ΡΡ Π½Π°ΠΏΠΈΡΠ°ΡΡ ΡΡΠΎΠΊ ΠΏΠΎ ΡΠ°Π±ΠΎΡΠ΅ Ρ ΡΠΎΠ»ΠΈΠΊΠΎΠ²ΡΠΌΠΈ Π½Π°ΠΏΡΠ°Π²Π»ΡΡΡΠΈΠΌΠΈ. ΠΠΎΡ, Π½Π°ΠΊΠΎΠ½Π΅Ρ ΡΠΎ, ΡΠΏΠΎΠ΄ΠΎΠ±ΠΈΠ»ΡΡ. ΠΡΠΈΡΠ°Π΄ΠΎΡΠ½ΡΠ΅ ΡΡ Π΅ΠΌΡ Ρ ΡΠΆΠ΅ Π²ΡΠΊΠ»Π°Π΄ΡΠ²Π°Π» Π²ΠΎΡ Π² ΡΡΠΎΠΉ ΡΡΠ°ΡΡΠ΅. Β Π’Π΅ΠΏΠ΅ΡΡ ΡΠΎΠ»ΡΠΊΠΎ Π³ΠΎΠ»Π°Ρ ΠΏΡΠ°ΠΊΡΠΈΠΊΠ°. ΠΠ»Ρ ΠΏΡΠΈΠΌΠ΅ΡΠ° Ρ Π±ΡΠ΄Ρ ΡΠΎΠ±ΠΈΡΠ°ΡΡ ΠΏΡΠΎΡΡΠ΅Π½ΡΠΊΡΡ ΡΡΠΌΠ±ΠΎΡΠΊΡ Ρ ΡΡΠ΅ΠΌΡ Π²ΡΠ΄Π²ΠΈΠΆΠ½ΡΠΌΠΈ ΡΡΠΈΠΊΠ°ΠΌΠΈ.
ΠΠ°ΡΠ½Π΅ΠΌ Ρ ΡΡΠΈΠΊΠΎΠ². Π‘ΠΎΠ±ΠΈΡΠ°ΡΡΡΡ ΠΎΠ½ΠΈ Π»Π΅Π³ΠΊΠΎ ΠΈ ΠΏΡΠΎΡΡΠΎ Π½Π° ΠΊΠΎΠ½ΡΠΈΡΠΌΠ°ΡΠ°Ρ
(ΠΏΠΎ ΠΏΠ°ΡΠ΅ Π² ΠΊΠ°ΠΆΠ΄ΡΠΉ ΡΠ³ΠΎΠ»). ΠΠΎΠΊΠΎΠ²ΡΠ΅ ΡΡΠ΅Π½ΠΊΠΈ ΠΈΠ΄ΡΡ Π½Π°ΠΊΠ»Π°Π΄Π½ΡΠΌΠΈ, ΡΠΎ Π΅ΡΡΡ Π½Π° Π½ΠΈΡ
ΠΊΠΎΠ½ΡΠΈΡΠΌΠ°ΡΡ Π²Π²ΠΎΡΠ°ΡΠΈΠ²Π°ΡΡΡΡ Π² ΠΏΠ»Π°ΡΡΡ, Π° ΠΏΠ΅ΡΠ΅Π΄Π½ΡΡ ΠΈ Π·Π°Π΄Π½ΡΡ ΡΡΠ΅Π½ΠΊΠΈ β Π²ΠΊΠ»Π°Π΄Π½ΡΠ΅, ΡΠΎ Π΅ΡΡΡ Π² ΠΈΡ
ΡΠΎΡΠ΅Ρ.
ΠΠΎΡΠΎΠΌ Π½Π°ΠΊΠ»Π°Π΄ΡΠ²Π°Π΅ΠΌ Π½Π° ΠΌΠ΅ΡΡΠΎ Π·Π°Π΄Π½ΡΡ ΡΡΠ΅Π½ΠΊΡ, ΡΡΠ°ΡΠ΅Π»ΡΠ½ΠΎ Π²ΡΡΠ°Π²Π½ΠΈΠ²Π°Π΅ΠΌ ΠΈ ΠΏΡΠ΅Π΄Π²Π°ΡΠΈΡΠ΅Π»ΡΠ½ΠΎ ΠΊΡΠ΅ΠΏΠΈΠΌ ΡΡΠ΅ΠΌΡ Π³Π²ΠΎΠ·Π΄ΠΈΠΊΠ°ΠΌΠΈ (Π΄Π²Π° Π² ΠΎΠ΄Π½Ρ ΡΡΠ΅Π½ΠΊΡ ΠΈ ΠΎΠ΄ΠΈΠ½ Π² ΡΠΎΡΠ΅Π΄Π½ΡΡ), ΡΡΠΎΠ±Ρ Π΄Π½ΠΎ Π½Π΅ ΡΠΌΠ΅ΡΠ°Π»ΠΎΡΡ.
ΠΠΎΡΠ»Π΅ ΡΡΠΎΠ³ΠΎ ΠΏΠ΅ΡΠ΅Π²ΠΎΡΠ°ΡΠΈΠ²Π°Π΅ΠΌ ΡΡΠΈΠΊ ΠΈ Ρ ΠΏΠΎΠΌΠΎΡΡΡ ΡΡΠ»Π΅ΡΠΊΠΈ ΠΈΠ»ΠΈ Π»ΠΈΠ½Π΅ΠΉΠΊΠΈ ΠΏΡΠΎΠ²Π΅ΡΡΠ΅ΠΌ Π΅Π³ΠΎ Π΄ΠΈΠ°Π³ΠΎΠ½Π°Π»ΠΈ. ΠΠ½ΠΈ Π΄ΠΎΠ»ΠΆΠ½Ρ Π±ΡΡΡ ΡΠ°Π²Π½Ρ. ΠΡΠ»ΠΈ Π½Π΅Ρ, Π²ΡΡΡΠ²Π°Π΅ΠΌ ΠΎΠ΄ΠΈΠ½ΠΎΠΊΠΈΠΉ Π³Π²ΠΎΠ·Π΄ΠΈΠΊ , Π²ΡΠ³ΠΈΠ±Π°Π΅ΠΌ ΡΡΠΈΠΊ, ΠΊΠ°ΠΊ Π½Π°Π΄ΠΎ ΠΈ Π·Π°Π±ΠΈΠ²Π°Π΅ΠΌ Π΅Π³ΠΎ ΠΎΠ±ΡΠ°ΡΠ½ΠΎ. ΠΠ°ΠΊ ΡΠΎΠ»ΡΠΊΠΎ Π³Π΅ΠΎΠΌΠ΅ΡΡΠΈΡ ΡΡΠΈΠΊΠ° ΠΏΡΠΈΡΠ»Π° Π² ΡΠΎΠΎΡΠ²Π΅ΡΡΡΠ²ΠΈΠ΅, ΠΌΠΎΠΆΠ½ΠΎ ΠΏΡΠΈΠΊΡΡΡΠΈΠ²Π°ΡΡ Π΄Π½ΠΎ Π½Π° ΠΏΠΎΡΡΠΎΡΠ½Π½ΡΡ ΠΎΡΠ½ΠΎΠ²Ρ (ΡΠ°ΠΌΠΎΡΠ΅Π·Π°ΠΌΠΈ). ΠΡΠΈΡΠ΅ΠΌ Π² ΠΏΠ΅ΡΠ΅Π΄Π½ΡΡ ΠΈ Π·Π°Π΄Π½ΡΡ ΡΡΠ΅Π½ΠΊΠΈ ΠΏΡΠΎΡΡΠΎ ΡΠ°ΠΌΠΎΡΠ΅Π°ΠΌΠΈ, Π° Π² Π±ΠΎΠΊΠΎΠ²ΡΠ΅ ΡΡΠ°Π·Ρ ΠΊΡΠ΅ΠΏΠΈΠΌ ΠΈ Π½Π°ΠΏΡΠ°Π²Π»ΡΠΉΠΊΡ. Π‘Π½Π°ΡΠ°Π»Π° Π½Π°ΠΊΠ»Π°Π΄ΡΠ²Π°Π΅ΠΌ Π΅Π΅, Π²ΡΡΠ°Π²Π½ΠΈΠ²Π°Π΅ΠΌ ΠΈ Π·Π°ΡΠ²Π΅ΡΠ»ΠΈΠ²Π°Π΅ΠΌ ΠΎΡΠ²Π΅ΡΡΡΠΈΡ ΡΠΎΠ½ΠΊΠΈΠΌ ΡΠ²Π΅ΡΠ»ΠΎΠΌ.
ΠΠ°ΡΠ΅ΠΌ Π² ΡΡΠΈ ΠΎΡΠ²Π΅ΡΡΡΠΈΡ Π²Π²ΠΎΡΠ°ΡΠΈΠ²Π°Π΅ΠΌ ΡΠ°ΠΌΠΎΡΠ΅Π·Ρ.
Π‘ ΡΡΠΈΠΊΠ°ΠΌΠΈ ΠΏΠΎΠΊΠ° Π·Π°ΠΊΠΎΠ½ΡΠΈΠ»ΠΈ,Β ΠΏΠ΅ΡΠ΅ΠΉΠ΄Π΅ΠΌ ΠΊ ΡΠ°Π·ΠΌΠ΅ΡΠΊΠ΅ ΡΡΠΎΠ΅ΠΊ. Π― ΠΏΠΎΠ»ΡΠ·ΡΡΡΡ ΡΠ»Π΅Π΄ΡΡΡΠ΅ΠΉ ΠΌΠ΅ΡΠΎΠ΄ΠΈΠΊΠΎΠΉ (ΠΌΠΈΠ½ΠΈΠΌΡΠΌ ΠΌΠ°ΡΠ΅ΠΌΠ°ΡΠΈΠΊΠΈ). ΠΡΠ°ΠΊ, ΡΠ½Π°ΡΠ°Π»Π° ΠΎΡΠΌΠ΅ΡΠ°Π΅ΠΌ Π½Π° ΠΏΠ΅ΡΠ΅Π΄Π½Π΅ΠΌ ΠΊΡΠ°Π΅ ΡΡΠΎΠΉΠΊΠΈ Π³ΡΠ°Π½ΠΈΡΡ ΡΠ°ΡΠ°Π΄ΠΎΠ² Ρ ΠΌΠ΅ΠΆΡΠ°ΡΠ°Π΄Π½ΡΠΌΠΈ ΠΏΡΠΎΠΌΠ΅ΠΆΡΡΠΊΠ°ΠΌΠΈ. ΠΠΎΠΆΠ½ΠΎ ΡΠ°ΡΠ°Π΄Ρ Π½Π΅ ΠΏΡΠΈΠΊΠ»Π°Π΄ΡΠ²Π°ΡΡ, Π° ΠΏΡΠΎΡΡΠΎ Π²ΠΎΡΠΏΠΎΠ»ΡΠ·ΠΎΠ²Π°ΡΡΡΡ Π»ΠΈΠ½Π΅ΠΉΠΊΠΎΠΉ, Π½ΠΎ ΡΠ°ΠΊ Π½Π°Π³Π»ΡΠ΄Π½Π΅Π΅.
ΠΠ±ΡΠ°ΡΠΈΡΠ΅ Π²Π½ΠΈΠΌΠ°Π½ΠΈΠ΅, ΡΡΠΎ Π½ΠΈΠΆΠ½ΠΈΠΉ ΡΠ°ΡΠ°Π΄ Π½Π°ΠΊΠ»Π°Π΄Π½ΠΎΠΉ, ΡΠΎ Π΅ΡΡΡ, ΠΎΠ½ Π·Π°ΠΊΡΡΠ²Π°Π΅Ρ Π½ΠΈΠΆΠ½ΠΈΠΉ Π³ΠΎΡΠΈΠ·ΠΎΠ½Ρ, Π°, Π·Π½Π°ΡΠΈΡ, ΠΎΡΡΡΡΠΏΠ°ΡΡ ΠΎΡ Π½ΠΈΠΆΠ½Π΅Π³ΠΎ ΠΊΡΠ°Ρ ΡΡΠΎΠΉΠΊΠΈ Π½Π°Π΄ΠΎ Π½Π° 16 ΠΌΠΌ ΠΌΠ΅Π½ΡΡΠ΅.
Π’Π΅ΠΏΠ΅ΡΡ ΡΠ°Π·ΠΌΠ΅ΡΠ°Π΅ΠΌ ΡΠ°ΠΌΠΈ Π½Π°ΠΏΡΠ°Π²Π»ΡΠΉΠΊΠΈ. ΠΠ»Ρ ΡΡΠΎΠ³ΠΎ Π½Π°Π΄ΠΎ ΠΏΡΠΈΠΊΠΈΠ½ΡΡΡ, ΠΊΠ°ΠΊ Π±ΡΠ΄ΡΡ ΡΠ°ΡΠΏΠΎΠ»Π°Π³Π°ΡΡΡΡ Π²ΡΠ΄Π²ΠΈΠΆΠ½ΡΠ΅ ΡΡΠΈΠΊΠΈ: ΠΎΠ½ΠΈ Π΄ΠΎΠ»ΠΆΠ½Ρ Π±ΡΡΡ Π±Π»ΠΈΠΆΠ΅ ΠΊ Π½ΠΈΠΆΠ½Π΅ΠΌΡ ΠΊΡΠ°Ρ ΡΠ°ΡΠ°Π΄ΠΎΠ², Π½ΠΎ Π½Π΅ Π²ΡΡΡΡΠΏΠ°ΡΡ Π·Π° ΠΈΡ Π³Π°Π±Π°ΡΠΈΡΡ, Π½Π°ΠΏΡΠ°Π²Π»ΡΡΡΠΈΠ΅ Π½Π° ΡΠ°ΠΌΠΈΡ ΡΡΠΈΠΊΠ°Ρ Π½Π°Ρ ΠΎΠ΄ΡΡΡΡ ΡΡΡΠΎΠ³ΠΎ ΡΠ½ΠΈΠ·Ρ. ΠΠ»Ρ Π±ΠΎΠ»ΡΡΠ΅ΠΉ Π½Π°Π³Π»ΡΠ΄Π½ΠΎΡΡΠΈ ΠΌΠΎΠΆΠ½ΠΎ ΠΏΡΠΈΠ»ΠΎΠΆΠΈΡΡ Π½Π°ΠΏΡΠ°Π²Π»ΡΠΉΠΊΠΈ ΠΊ ΡΡΠΎΠΉΠΊΠ°ΠΌ ΠΈ ΠΏΠΎΡΠΌΠΎΡΡΠ΅ΡΡ, ΠΊΠ°ΠΊ ΠΎΠ½ΠΈ Π±ΡΠ΄ΡΡ ΡΠΌΠΎΡΡΠ΅ΡΡΡΡ (ΠΎΡΠΈΠ΅Π½ΡΠΈΡΡΠ΅ΠΌΡΡ Π½Π° Π½Π°ΡΠΈ ΠΎΡΠΌΠ΅ΡΠΊΠΈ ΡΠ°ΡΠ°Π΄ΠΎΠ²). Π― ΠΎΠ±ΡΡΠ½ΠΎ ΠΎΡΡΡΡΠΏΠ°Ρ ΠΎΡ ΠΊΡΠ°Ρ ΡΠ°ΡΠ°Π΄Π° Π²Π²Π΅ΡΡ ΠΏΠΎ 20 ΠΌΠΌ ΠΈ ΠΏΡΠΎΠ²ΠΎΠΆΡ ΠΏΠ΅ΡΠΏΠ΅Π½Π΄ΠΈΠΊΡΠ»ΡΡ ΠΊ ΠΏΠ΅ΡΠ΅Π΄Π½Π΅ΠΌΡ ΠΊΡΠ°Ρ.
ΠΠ° ΡΡΠΎΠΌΒ ΠΏΠ΅ΡΠΏΠ΅Π½Π΄ΠΈΠΊΡΠ»ΡΡΠ΅ ΠΎΡΠΊΠ»Π°Π΄ΡΠ²Π°Π΅ΠΌ 37 ΠΌΠΌ ΠΈ ΡΡΡ ΡΠΎΡΠΊΡ Π½Π°ΠΊΠ°Π»ΡΠ²Π°Π΅ΠΌ ΡΠΈΠ»ΠΎΠΌ (ΡΡΠΎ ΠΏΠΎΠ»ΡΡΠ°Π΅ΡΡΡ ΡΠ΅Π½ΡΡ Π²ΡΠΎΡΠΎΠ³ΠΎ ΠΎΡΠ²Π΅ΡΡΡΠΈΡ Π½Π° Π½Π°ΠΏΡΠ°Π²Π»ΡΡΡΠ΅ΠΉ.
Π£ΠΊΠ»Π°Π΄ΡΠ²Π°Π΅ΠΌ Π΅Π΅ Π½Π° ΡΠ°Π·ΠΌΠ΅ΡΠΎΡΠ½ΡΡ Π»ΠΈΠ½ΠΈΡ, ΡΡΠΎΠ±Ρ Π΅Π΅ Π±ΡΠ»ΠΎ Π²ΠΈΠ΄Π½ΠΎ Π²ΠΎ Π²ΡΠ΅Ρ ΠΎΡΠ²Π΅ΡΡΡΠΈΡΡ . Π ΠΏΠ΅ΡΠ²ΠΎΠ΅ ΠΎΡΠ²Π΅ΡΡΡΠΈΠ΅ Π²Π²ΠΎΡΠ°ΡΠΈΠ²Π°Π΅ΠΌ ΡΠ°ΠΌΠΎΡΠ΅Π·, Π° Π½Π° ΠΊΠ°ΡΠ°Π½Π΄Π°ΡΠ½ΠΎΠΉ Π»ΠΈΠ½ΠΈΠΈ (ΠΏΠΎ ΡΠ΅Π½ΡΡΡ ΠΎΡΠ²Π΅ΡΡΡΠΈΡ Π² Π½Π°ΠΏΡΠ°Π²Π»ΡΡΡΠ΅ΠΉ) Π½Π°ΠΊΠ°Π»ΡΠ²Π°Π΅ΠΌ Π΅ΡΠ΅ ΠΎΠ΄Π½Ρ ΡΠΎΡΠΊΡ. Π Π½Π΅Π΅ ΡΠ°ΠΊ ΠΆΠ΅ Π·Π°Π²ΠΎΡΠ°ΡΠΈΠ²Π°Π΅ΠΌ ΡΠ°ΠΌΠΎΡΠ΅Π· (ΠΌΠΎΠΆΠ½ΠΎ ΡΡΠΈΠ»ΠΈΡΡ Π΅ΡΠ΅ ΠΎΠ΄Π½ΠΈΠΌ, Π½ΠΎ Π² Π΄Π°Π½Π½ΠΎΠΌ ΠΏΡΠΈΠΌΠ΅ΡΠ΅ ΠΌΡ ΠΎΠ³ΡΠ°Π½ΠΈΡΠΈΠΌΡΡ ΠΏΠ°ΡΠΎΡΠΊΠΎΠΉ).
ΠΠ±ΡΠ°ΡΠΈΡΠ΅ Π²Π½ΠΈΠΌΠ°Π½ΠΈΠ΅, ΡΡΠΎ ΠΏΠ΅ΡΠ΅Π΄Π½ΠΈΠΉ ΠΊΡΠ°ΠΉ Π½Π°ΠΏΡΠ°Π²Π»ΡΠΉΠΊΠΈ ΠΎΡΡΡΠΎΠΈΡ ΠΎΡ ΠΊΡΠ°Ρ ΡΡΠΎΠΉΠΊΠΈ Π½Π° 2 ΠΌΠΌ.
ΠΠ°Π½Π½ΡΡ ΠΌΠ°Π½ΠΈΠΏΡΠ»ΡΡΠΈΡ ΠΏΠΎΠ²ΡΠΎΡΡΠ΅ΠΌ Π΄Π»Ρ Π²ΡΠ΅Ρ ΡΡΠ΅Ρ ΠΏΠ°Ρ Π½Π°ΠΏΡΠ°Π²Π»ΡΡΡΠΈΡ (ΡΠΎ Π΅ΡΡΡ, Π΄Π»Ρ ΠΎΠ±ΠΎΠΈΡ ΡΡΠΎΠ΅ΠΊ).
Π ΠΏΡΠΈΠ½ΡΠΈΠΏΠ΅, ΠΏΡΠΈΡΠ°Π΄ΠΊΠ° Π²ΡΠ΄Π²ΠΈΠΆΠ½ΠΎΠΉ ΡΠΈΡΡΠ΅ΠΌΡ Π½Π° ΡΡΠΎΠΌ Π·Π°ΠΊΠ°Π½ΡΠΈΠ²Π°Π΅ΡΡΡ, Π½ΠΎ Π΄ΠΎΠ±ΡΠ΅ΠΌ ΡΡΠΌΠ±ΠΎΡΠΊΡ Π΄ΠΎ ΠΊΠΎΠ½ΡΠ°.
Π‘ΠΎΠ±ΠΈΡΠ°Π΅ΠΌ ΠΊΠΎΡΠΎΠ± (ΠΏΡΠΈΠΊΡΡΡΠΈΠ²Π°Π΅ΠΌ Π½Π° ΠΊΠΎΠ½ΡΠΈΡΠΌΠ°ΡΡ Π½ΠΈΠΆΠ½ΠΈΠΉ Π³ΠΎΡΠΈΠ·ΠΎΠ½Ρ ΡΒ Π½ΠΎΠΆΠΊΠ°ΠΌΠΈ).
Π‘ΡΠ°Π²ΠΈΠΌ Π² ΠΏΠ°Π·Ρ Π·Π°Π΄Π½ΡΡ ΡΡΠ΅Π½ΠΊΡ, (ΠΊΡΠ΅ΠΏΠΈΠΌ Π΅Π΅ ΡΠ³ΠΎΠ»ΠΊΠ°ΠΌΠΈ) Π²Π΅ΡΡ Π½ΠΈΠΉ Π³ΠΎΡΠΈΠ·ΠΎΠ½Ρ ΠΊΡΠ΅ΠΏΠΈΠΌ Π½Π° ΠΌΠΎΠ½ΡΠ°ΠΆΠ½ΡΠ΅ ΡΠ³ΠΎΠ»ΠΊΠΈ (ΠΌΠΎΠΆΠ½ΠΎ Π½Π° ΠΌΠΈΠ½ΠΈΡΠΈΠΊΡΡ, ΡΡΠΎ ΡΠ»ΠΎΠΆΠ½Π΅Π΅, Π½ΠΎ Π°ΠΊΠΊΡΡΠ°ΡΠ½Π΅Π΅).
Π‘ΡΠ°Π²ΠΈΠΌ ΡΡΠ΅Π΄Π½ΠΈΠΉ Π³ΠΎΡΠΈΠ·ΠΎΠ½Ρ. Π ΠΏΡΠΈΠ½ΡΠΈΠΏΠ΅, ΠΊΠΎΡΠΎΠ± ΡΡΠΌΠ±Ρ Π³ΠΎΡΠΎΠ².
Π£ΡΡΠ°Π½Π°Π²Π»ΠΈΠ²Π°Π΅ΠΌ ΡΠ°ΠΌΠΈ ΡΡΠΈΠΊΠΈ Π²Π½ΡΡΡΡ ΠΊΠΎΡΠΎΠ±Π°. Π ΠΈΠ· ΠΏΠ΅ΡΠ΅Π΄Π½ΠΈΡ ΡΡΠ΅Π½ΠΊΠ°Ρ ΡΠ²Π΅ΡΠ»ΡΡΡΡ ΠΎΡΠ²Π΅ΡΡΡΠΈΡ ΠΏΠΎΠ΄ ΡΠ°ΠΌΠΎΡΠ΅Π·Ρ (Π΄Π»Ρ ΠΊΡΠ΅ΠΏΠ»Π΅Π½ΠΈΡ ΡΠ°ΡΠ°Π΄ΠΎΠ²). ΠΠ»Ρ ΡΡΠΎΠ³ΠΎ ΠΆΠ΅ Π½Π°ΠΊΠ»Π΅ΠΈΠ²Π°Π΅ΡΡΡ Π΄Π²ΡΡΡΠΎΡΠΎΠ½Π½ΠΈΠΉ ΡΠΊΠΎΡΡ.Π Π°Π·ΠΌΠ΅ΡΠ°Π΅ΠΌ ΠΈ ΠΊΡΠ΅ΠΏΠΈΠΌ Π½Π° ΠΊΠ°ΠΆΠ΄ΡΠΉ ΡΠ°ΡΠ°Π΄ ΠΏΠΎ ΡΡΡΠΊΠ΅-ΡΠΊΠΎΠ±Π΅. ΠΠΈΠ½ΡΠΈΠΊΠΈ Π½Π°Π΄ΠΎ ΠΈΡΠΏΠΎΠ»ΡΠ·ΠΎΠ²Π°ΡΡ Ρ ΠΏΠΎΡΠ°ΠΉΠ½ΠΎΠΉ Π³ΠΎΠ»ΠΎΠ²ΠΊΠΎΠΉ, ΠΈΠ»ΠΈ Π·Π°Π³Π»ΡΠ±Π»ΡΡΡ ΠΈΡ ΡΠ»ΡΠΏΠΊΠΈ)
ΠΡΡΠ°Π»ΠΎΡΡ Π·Π°ΠΊΡΠ΅ΠΏΠΈΡΡ ΡΠ°ΠΌΠΈ ΡΠ°ΡΠ°Π΄Ρ Π½Π° ΡΡΠΈΠΊΠ°Ρ . ΠΠΎΠ΄ΡΠΎΠ±Π½ΠΎ Ρ ΡΠ΅Ρ Π½ΠΎΠ»ΠΎΠ³ΠΈΡ ΠΊΡΠ΅ΠΏΠ»Π΅Π½ΠΈΡ ΡΠ°ΡΠ°Π΄ΠΎΠ² Β«Π½Π° ΡΠΊΠΎΡΡΒ» ΡΠΆΠ΅ ΠΎΠΏΠΈΡΡΠ²Π°Π» β ΠΎΡΡΠ°Π½Π°Π²Π»ΠΈΠ²Π°ΡΡΡΡ Π½Π΅ Π±ΡΠ΄Ρ.
Π ΠΎΠ±ΡΠ΅ΠΌ, Π² ΡΠ΅Π·ΡΠ»ΡΡΠ°ΡΠ΅ Π²ΡΠ΅Ρ
ΠΌΠ°Π½ΠΈΠΏΡΠ»ΡΡΠΈΠΉ, ΠΏΠΎΠ»ΡΡΠΈΠ»Π°ΡΡ Π²ΠΎΡ ΡΠ°ΠΊΠ°Ρ ΠΏΡΠΎΡΡΠ΅Π½ΡΠΊΠ°Ρ ΠΈ Π°ΠΊΠΊΡΡΠ°ΡΠ½Π°Ρ ΡΡΠΌΠ±ΠΎΡΠΊΠ° Π² ΠΏΠΎΠ»ΠΈΠΊΠ»ΠΈΠ½ΠΈΠΊΡ.
ΠΠ°ΠΊ ΡΡΡΠ°Π½ΠΎΠ²ΠΈΡΡ ΡΠΎΠ»ΠΈΠΊΠΎΠ²ΡΠ΅ Π½Π°ΠΏΡΠ°Π²Π»ΡΡΡΠΈΠ΅ Π΄Π»Ρ Π²ΡΠ΄Π²ΠΈΠΆΠ½ΡΡ ΡΡΠΈΠΊΠΎΠ²
ΠΡΠΏΠΎΠ»ΡΠ·ΠΎΠ²Π°Π½ΠΈΠ΅ ΡΠΎΠ»ΠΈΠΊΠΎΠ²ΡΡ Π½Π°ΠΏΡΠ°Π²Π»ΡΡΡΠΈΡ Π½Π΅ ΡΠΎΠΏΡΠΎΠ²ΠΎΠΆΠ΄Π°Π΅ΡΡΡ ΡΠ°Π·Π΄ΡΠ°ΠΆΠ°ΡΡΠΈΠΌ ΠΌΠ΅ΡΠ°Π»Π»ΠΈΡΠ΅ΡΠΊΠΈΠΌ ΡΠΊΡΠΈΠΏΠΎΠΌ ΠΈΠ»ΠΈ Π»ΡΠ±ΡΠΌ Π΄ΡΡΠ³ΠΈΠΌ Π·Π²ΡΠΊΠΎΠΌ. Π‘Π»Π΅Π΄ΠΎΠ²Π°ΡΠ΅Π»ΡΠ½ΠΎ, ΡΡΠΎ Ρ ΠΎΡΠΎΡΠΈΠΉ Π²ΡΠ±ΠΎΡ, Π΅ΡΠ»ΠΈ Π²Ρ Ρ ΠΎΡΠΈΡΠ΅ ΠΏΠ»Π°Π²Π½ΠΎ ΠΎΡΠΊΡΡΠ²Π°ΡΡ ΠΈ Π·Π°ΠΊΡΡΠ²Π°ΡΡ ΡΡΠΈΠΊΠΈ.
Π£ΡΡΠ°Π½ΠΎΠ²ΠΊΠ° ΡΠΎΠ»ΠΈΠΊΠΎΠ²ΡΡ Π½Π°ΠΏΡΠ°Π²Π»ΡΡΡΠΈΡ Π΄Π»Ρ Π²ΡΠ΄Π²ΠΈΠΆΠ½ΡΡ ΡΡΠΈΠΊΠΎΠ² Π½Π΅ ΡΠ°ΠΊ ΡΠ»ΠΎΠΆΠ½Π°, ΠΊΠ°ΠΊ Π²Ρ Π΄ΡΠΌΠ°Π΅ΡΠ΅. ΠΠ°ΠΌ Π½Π΅ Π½ΡΠΆΠ½ΠΎ Π²ΡΠΏΠΎΠ»Π½ΡΡΡ ΠΎΡΠ΅Π½Ρ ΡΠ»ΠΎΠΆΠ½ΡΠ΅ Π·Π°Π΄Π°ΡΠΈ ΠΈΠ»ΠΈ ΡΡΠΎΠΌΠΈΡΠ΅Π»ΡΠ½ΠΎΠ΅ ΡΡΡΠΎΠΈΡΠ΅Π»ΡΡΡΠ²ΠΎ. ΠΠ° ΡΠ°ΠΌΠΎΠΌ Π΄Π΅Π»Π΅, ΡΠΎΠ»ΠΈΠΊΠΎΠ²ΡΠ΅ Π½Π°ΠΏΡΠ°Π²Π»ΡΡΡΠΈΠ΅, Π²Π΅ΡΠΎΡΡΠ½ΠΎ, ΠΎΠ΄Π½ΠΈ ΠΈΠ· ΡΠ°ΠΌΡΡ ΠΏΡΠΎΡΡΡΡ Π² ΡΠ°Π±ΠΎΡΠ΅.
ΠΠΎΠ½Π΅ΡΠ½ΠΎ, Π±Π΅Π· Π·Π½Π°Π½ΠΈΡ Π°Π·ΠΎΠ² Π²Ρ Π½Π΅ ΠΏΠΎΠΉΠΌΠ΅ΡΠ΅, Π½Π°ΡΠΊΠΎΠ»ΡΠΊΠΎ ΡΡΠΎ ΠΏΡΠΎΡΡΠΎ. ΠΡΠΎ ΡΠΎ, Ρ ΡΠ΅ΠΌ ΠΌΡ ΡΠΎΠ±ΠΈΡΠ°Π΅ΠΌΡΡ ΠΏΠΎΠΌΠΎΡΡ Π²Π°ΠΌ Π² ΡΠ»Π΅Π΄ΡΡΡΠΈΡ ΡΠ°Π·Π΄Π΅Π»Π°Ρ .
ΠΠΎΠΌΠΈΠΌΠΎ ΠΎΠ±ΡΡΠ΅Π½ΠΈΡ ΡΡΡΠ°Π½ΠΎΠ²ΠΊΠ΅ ΡΠΎΠ»ΠΈΠΊΠΎΠ²ΡΡ Π½Π°ΠΏΡΠ°Π²Π»ΡΡΡΠΈΡ Π΄Π»Ρ Π²ΡΠ΄Π²ΠΈΠΆΠ½ΡΡ ΡΡΠΈΠΊΠΎΠ², ΠΌΡ ΡΠ°ΠΊΠΆΠ΅ ΠΏΠΎΠ·Π½Π°ΠΊΠΎΠΌΠΈΠΌ Π²Π°Ρ ΡΠΎ ΡΠΏΠΈΡΠΊΠΎΠΌ Π°ΠΏΠΏΠ°ΡΠ°ΡΠ½ΡΡ ΡΡΠ΅Π΄ΡΡΠ², ΡΡΠΎΠ±Ρ Π²Π°ΡΠΈ Π½Π°ΠΏΡΠ°Π²Π»ΡΡΡΠΈΠ΅ ΠΈ Π²ΡΠ΄Π²ΠΈΠΆΠ½ΠΎΠΉ ΡΡΠΈΠΊ Π½Π°Ρ ΠΎΠ΄ΠΈΠ»ΠΈΡΡ Π² Π½Π°ΠΈΠ»ΡΡΡΠ΅ΠΌ ΡΠΎΡΡΠΎΡΠ½ΠΈΠΈ.
Π¨Π°Π³ 1: ΠΠΎΠ΄Π³ΠΎΡΠΎΠ²ΡΡΠ΅ ΠΌΠ°ΡΠ΅ΡΠΈΠ°Π»Ρ ΠΈ ΡΠΊΠ°ΡΡ.
ΠΠ΅ΡΠ²ΡΠΉ ΡΠ°Π³ ΠΊ ΡΡΡΠ°Π½ΠΎΠ²ΠΊΠ΅ ΡΠΎΠ»ΠΈΠΊΠΎΠ²ΡΡ
Π½Π°ΠΏΡΠ°Π²Π»ΡΡΡΠΈΡ
β ΠΏΠΎΠ΄Π³ΠΎΡΠΎΠ²ΠΊΠ° Π²ΡΠ΅Ρ
Π½Π΅ΠΎΠ±Ρ
ΠΎΠ΄ΠΈΠΌΡΡ
ΠΌΠ°ΡΠ΅ΡΠΈΠ°Π»ΠΎΠ².
Π§ΡΠΎΠ±Ρ Π±ΡΡΡ ΡΠΎΡΠ½ΡΠΌ, Π²ΠΎΡ ΡΡΠΎ Π²Π°ΠΌ Π½ΡΠΆΠ½ΠΎ ΠΏΠΎΠ΄Π³ΠΎΡΠΎΠ²ΠΈΡΡ Π΄Π»Ρ ΡΡΠΎΠ³ΠΎ ΠΏΡΠΎΡΠ΅ΡΡΠ°:
- ΠΡΠ΅ΠΏΠ΅ΠΆ (Π±ΠΎΠ»ΡΡ, Π²ΠΈΠ½ΡΡ ΠΈΠ»ΠΈ Π³Π°ΠΉΠΊΠΈ)
- ΠΡΠ²Π΅ΡΡΠΊΠΈ (Π΄Π»Ρ Π±Π»ΠΎΠΊΠΈΡΠΎΠ²ΠΊΠΈ ΠΊΡΠ΅ΠΏΠ΅ΠΆΠ°)
- Π§Π»Π΅Π½ ΠΊΠ°Π±ΠΈΠ½Π΅ΡΠ°
- ΠΠ»Π΅ΠΌΠ΅Π½Ρ Π²ΡΠ΄Π²ΠΈΠΆΠ½ΠΎΠ³ΠΎ ΡΡΠΈΠΊΠ°
ΠΠ±ΡΡΠ½ΠΎ ΡΠΎΠ»ΠΈΠΊΠΎΠ²ΡΠ΅ Π½Π°ΠΏΡΠ°Π²Π»ΡΡΡΠΈΠ΅ ΠΏΠΎΡΡΠ°Π²Π»ΡΡΡΡΡ Ρ ΡΠΈΠΊΡΠΈΡΠΎΠ²Π°Π½Π½ΡΠΌ ΡΠ»Π΅ΠΌΠ΅Π½ΡΠΎΠΌ ΡΠΊΠ°ΡΠ° ΠΈ ΠΏΠΎΠ΄Π²ΠΈΠΆΠ½ΡΠΌ ΡΠ»Π΅ΠΌΠ΅Π½ΡΠΎΠΌ ΡΡΠΈΠΊΠ°. ΠΠ½ΠΈ ΡΠ°Π·Π΄Π΅Π»Π΅Π½Ρ ΠΏΡΠΈ ΠΏΠΎΠΊΡΠΏΠΊΠ΅. Π‘Π»Π΅Π΄ΠΎΠ²Π°ΡΠ΅Π»ΡΠ½ΠΎ, Π²Ρ Π±ΡΠ΄Π΅ΡΠ΅ Π² ΠΎΡΠ½ΠΎΠ²Π½ΠΎΠΌ ΡΠ°Π±ΠΎΡΠ°ΡΡ Ρ ΡΡΠΈΠΌΠΈ Π΄Π²ΡΠΌΡ Π½Π° ΡΠ»Π΅Π΄ΡΡΡΠΈΡ ΡΠ°Π³Π°Ρ .
ΠΡΠ΅ ΡΡΠΈ ΠΌΠ°ΡΠ΅ΡΠΈΠ°Π»Ρ Π΄ΠΎΡΡΡΠΏΠ½Ρ Π² ΠΌΠ΅ΡΡΠ½ΡΡ ΠΈ ΠΈΠ½ΡΠ΅ΡΠ½Π΅Ρ-ΠΌΠ°Π³Π°Π·ΠΈΠ½Π°Ρ . ΠΡΠΎ Π½Π΅ ΡΠ΅Π΄ΠΊΠΈΠ΅ ΠΏΡΠ΅Π΄ΠΌΠ΅ΡΡ, ΠΏΠΎΡΡΠΎΠΌΡ Π½Π΅ Π±Π΅ΡΠΏΠΎΠΊΠΎΠΉΡΠ΅ΡΡ ΠΎ ΡΠΎΠΌ, ΡΡΠΎ Π²Π°ΠΌ ΠΏΡΠΈΠ΄Π΅ΡΡΡ ΠΏΡΠΎΠΉΡΠΈ ΡΡΠΎΠΌΠΈΡΠ΅Π»ΡΠ½ΡΡ ΠΎΡ ΠΎΡΡ.
ΠΠΎΠ΄Π³ΠΎΡΠΎΠ²ΠΈΠ² Π²ΡΠ΅ ΠΌΠ°ΡΠ΅ΡΠΈΠ°Π»Ρ, ΡΠ±Π΅Π΄ΠΈΡΠ΅ΡΡ, ΡΡΠΎ ΡΠΊΠ°Ρ Π³ΠΎΡΠΎΠ² ΠΊ ΡΡΡΠ°Π½ΠΎΠ²ΠΊΠ΅. ΠΠΎΠ΄ ΡΡΠΈΠΌ ΠΌΡ ΠΏΠΎΠ΄ΡΠ°Π·ΡΠΌΠ΅Π²Π°Π΅ΠΌ, ΡΡΠΎ Π΅ΡΠ»ΠΈ ΠΎΠ½ ΡΡΠ°ΡΡΠΉ, Ρ Π½Π΅Π³ΠΎ Π΄ΠΎΠ»ΠΆΠ½Π° Π±ΡΡΡ Π΄Π΅ΠΌΠΎΠ½ΡΠΈΡΠΎΠ²Π°Π½Π° ΠΏΠΎΡΠ»Π΅Π΄Π½ΡΡ Π½Π°ΠΏΡΠ°Π²Π»ΡΡΡΠ°Ρ ΡΡΠΈΠΊΠ°. ΠΡΠ΅ Π²Π΅ΡΠΈ, ΡΠ°Π·ΠΌΠ΅ΡΠ΅Π½Π½ΡΠ΅ Π½Π° Π½Π΅ΠΌ ΠΈ Π²Π½ΡΡΡΠΈ Π½Π΅Π³ΠΎ, ΡΠ°ΠΊΠΆΠ΅ Π΄ΠΎΠ»ΠΆΠ½Ρ Ρ ΡΠ°Π½ΠΈΡΡΡΡ Π² Π΄ΡΡΠ³ΠΎΠΌ ΠΌΠ΅ΡΡΠ΅.
Π¨Π°Π³ 2: Π£ΡΡΠ°Π½ΠΎΠ²ΠΈΡΠ΅ ΡΠ»Π΅ΠΌΠ΅Π½Ρ ΡΠΊΠ°ΡΠ° Π² ΡΡΠΈΠΊ.
Π‘Π»Π΅Π΄ΡΡΡΠΈΠΉ ΡΠ°Π³ Π²ΠΊΠ»ΡΡΠ°Π΅Ρ Π² ΡΠ΅Π±Ρ ΡΡΡΠ°Π½ΠΎΠ²ΠΊΡ ΡΠ»Π΅ΠΌΠ΅Π½ΡΠ° ΡΠΊΠ°ΡΠ° Π² ΡΡΠΈΠΊ.
ΠΠ°ΠΆΠ½ΠΎ ΠΏΠΎΠΌΠ½ΠΈΡΡ, ΡΡΠΎ ΠΏΠ΅ΡΠ²Π°Ρ ΡΠ°ΡΡΡ, ΠΊΠΎΡΠΎΡΡΡ Π²Ρ Π΄ΠΎΠ»ΠΆΠ½Ρ ΠΏΡΠΈΠΊΡΠ΅ΠΏΠΈΡΡ, β ΡΡΠΎ ΡΠ»Π΅Π½ ΠΊΠ°Π±ΠΈΠ½Π΅ΡΠ°. ΠΠ±ΡΡΠ½ΠΎ ΡΡΠΎ ΠΏΡΠΎΠΈΡΡ
ΠΎΠ΄ΠΈΡ ΠΏΠ°ΡΠ°ΠΌΠΈ Π΄Π»Ρ ΠΎΠ±Π΅ΠΈΡ
ΡΡΠΎΡΠΎΠ½ ΠΌΠ΅Π±Π΅Π»ΠΈ.
ΠΠ΄Π΅ΡΡ ΠΏΡΠΎΡΡΠΎ ΠΏΠΎΠΌΠ΅ΡΡΠΈΡΠ΅ ΡΠ»Π΅ΠΌΠ΅Π½Ρ ΠΊΠ°Π±ΠΈΠ½Π΅ΡΠ° Π²Π½ΡΡΡΡ Π²Π°ΡΠ΅Π³ΠΎ ΠΊΠ°Π±ΠΈΠ½Π΅ΡΠ°. ΠΡΡΠΎΠ²Π½ΡΠΉΡΠ΅ Π΅Π³ΠΎ ΠΏΠΎ ΠΊΡΠ°Ρ ΠΊΠΎΠΌΠΏΠΎΠ½Π΅Π½ΡΠ° ΡΠ°ΠΊΠΈΠΌ ΠΎΠ±ΡΠ°Π·ΠΎΠΌ, ΡΡΠΎΠ±Ρ ΠΎΠ½ ΡΠΎΠΎΡΠ²Π΅ΡΡΡΠ²ΠΎΠ²Π°Π» ΠΆΠ΅Π»Π°Π΅ΠΌΠΎΠΉ ΠΊΠΎΠ½ΡΠΈΠ³ΡΡΠ°ΡΠΈΠΈ ΠΌΠΎΠ½ΡΠ°ΠΆΠ°.
ΠΠ°ΠΊ ΡΠΎΠ»ΡΠΊΠΎ Π²Ρ Π΄ΠΎΡΡΠΈΠ³Π½Π΅ΡΠ΅ Π½Π°Π΄Π»Π΅ΠΆΠ°ΡΠ΅Π³ΠΎ Π²ΡΡΠ°Π²Π½ΠΈΠ²Π°Π½ΠΈΡ, ΠΏΡΠΎΡΠ½ΠΎ ΡΠ΄Π΅ΡΠΆΠΈΠ²Π°ΠΉΡΠ΅ ΡΠ»Π΅ΠΌΠ΅Π½ΡΡ ΠΈ Π·Π°ΠΊΡΠ΅ΠΏΠΈΡΠ΅ ΠΈΡ Ρ ΠΏΠΎΠΌΠΎΡΡΡ Π³Π°Π΅ΠΊ, Π±ΠΎΠ»ΡΠΎΠ² ΠΈΠ»ΠΈ Π²ΠΈΠ½ΡΠΎΠ². ΠΠ±ΡΠ°ΡΠΈΡΠ΅ Π²Π½ΠΈΠΌΠ°Π½ΠΈΠ΅, ΠΎΠ΄Π½Π°ΠΊΠΎ, ΡΡΠΎ Π΄Π»Ρ Π±ΠΎΠ»ΡΠΎΠ² ΠΏΠΎΡΡΠ΅Π±ΡΡΡΡΡ ΠΏΡΠ΅Π΄Π²Π°ΡΠΈΡΠ΅Π»ΡΠ½ΠΎ ΠΏΡΠΎΡΠ²Π΅ΡΠ»Π΅Π½Π½ΡΠ΅ ΠΎΡΠ²Π΅ΡΡΡΠΈΡ. Π‘Π»Π΅Π΄ΠΎΠ²Π°ΡΠ΅Π»ΡΠ½ΠΎ, Π΅ΡΠ»ΠΈ Π²Ρ Ρ ΠΎΡΠΈΡΠ΅ ΡΠΏΡΠΎΡΡΠΈΡΡ Π·Π°Π΄Π°ΡΡ, ΠΌΡ ΡΠ΅ΠΊΠΎΠΌΠ΅Π½Π΄ΡΠ΅ΠΌ Π³Π°ΠΉΠΊΠΈ ΠΈΠ»ΠΈ Π²ΠΈΠ½ΡΡ.
ΠΠΎΠ·Π²ΡΠ°ΡΠ°ΡΡΡ Π½Π°Π·Π°Π΄, Π²Ρ Π΄ΠΎΠ»ΠΆΠ½Ρ Π·Π°ΠΊΡΠ΅ΠΏΠΈΡΡ Π΄Π²Π°-ΡΡΠΈ ΠΎΡΠ²Π΅ΡΡΡΠΈΡ Π½Π° ΠΌΠΎΠ½ΡΠ°ΠΆΠ½ΠΎΠΉ ΠΏΠ»Π°ΡΡΠΈΠ½Π΅, ΡΡΠΎΠ±Ρ Π² ΠΊΠΎΠ½Π΅ΡΠ½ΠΎΠΌ ΠΈΡΠΎΠ³Π΅ Π±ΡΠ»ΠΎ ΠΌΠ΅ΡΡΠΎ Π΄Π»Ρ ΡΠ΅Π³ΡΠ»ΠΈΡΠΎΠ²ΠΊΠΈ.
Π¨Π°Π³ 3: Π£ΡΡΠ°Π½ΠΎΠ²ΠΈΡΠ΅ ΡΠ»Π΅ΠΌΠ΅Π½Ρ Π²ΡΠ΄Π²ΠΈΠΆΠ½ΠΎΠ³ΠΎ ΡΡΠΈΠΊΠ°.
ΠΠΎΡΠ»Π΅ ΡΡΠΏΠ΅ΡΠ½ΠΎΠΉ ΡΡΡΠ°Π½ΠΎΠ²ΠΊΠΈ ΡΠ»Π΅ΠΌΠ΅Π½ΡΠ° ΡΠΊΠ°ΡΠ° Π΄Π°Π²Π°ΠΉΡΠ΅ ΡΠ΅ΠΏΠ΅ΡΡ ΡΠΎΡΡΠ΅Π΄ΠΎΡΠΎΡΠΈΠΌΡΡ Π½Π° ΡΠ»Π΅ΠΌΠ΅Π½ΡΠ΅ Π²ΡΠ΄Π²ΠΈΠΆΠ½ΠΎΠ³ΠΎ ΡΡΠΈΠΊΠ°. ΠΡΠΎ ΡΠ°ΠΊΠΆΠ΅ ΠΏΠΎΡΡΠ°Π²Π»ΡΠ΅ΡΡΡ ΠΏΠ°ΡΠ°ΠΌΠΈ, ΡΡΠΎΠ±Ρ ΡΠΎΠΎΡΠ²Π΅ΡΡΡΠ²ΠΎΠ²Π°ΡΡ ΠΎΠ±Π΅ΠΈΠΌ ΡΡΠΎΡΠΎΠ½Π°ΠΌ Π²Π°ΡΠ΅Π³ΠΎ ΡΡΠΈΠΊΠ°.
ΠΠ»Ρ ΡΡΠΎΠ³ΠΎ ΡΠ½ΠΎΠ²Π° ΠΏΠΎΠΌΠ΅ΡΡΠΈΡΠ΅ ΡΠ»Π΅ΠΌΠ΅Π½Ρ ΡΡΠΈΠΊΠ° ΠΏΠΎ Π±ΠΎΠΊΠ°ΠΌ ΡΡΠΈΠΊΠ°. ΠΠΌΠ΅ΠΉΡΠ΅ Π² Π²ΠΈΠ΄Ρ, ΡΡΠΎ ΡΡΠΎ Π΄ΠΎΠ»ΠΆΠ½ΠΎ Π±ΡΡΡ ΡΠ΄Π΅Π»Π°Π½ΠΎ Π½Π° Π²Π½Π΅ΡΠ½Π΅ΠΉ ΡΠ°ΡΡΠΈ ΠΊΠΎΠΌΠΏΠΎΠ½Π΅Π½ΡΠ°. ΠΡΠΎ ΠΌΠΎΠΆΠ΅Ρ Π±ΡΡΡ Π½Π΅ΠΌΠ½ΠΎΠ³ΠΎ ΡΠ»ΠΎΠΆΠ½Π΅Π΅ Π²ΡΡΠΎΠ²Π½ΡΡΡ, ΡΠ°ΠΊ ΠΊΠ°ΠΊ Π²Ρ Π½Π΅ ΠΌΠΎΠΆΠ΅ΡΠ΅ ΡΠΎΡΠ½ΠΎ ΡΡΠ°Π²Π½ΠΈΡΡ ΠΎΠ±Π΅ ΡΡΠΎΡΠΎΠ½Ρ, ΠΏΠΎΡΡΠΎΠΌΡ Ρ ΡΠ΅ΠΊΠΎΠΌΠ΅Π½Π΄ΡΡ ΠΈΡΠΏΠΎΠ»ΡΠ·ΠΎΠ²Π°ΡΡ ΠΈΠ·ΠΌΠ΅ΡΠΈΡΠ΅Π»ΡΠ½ΡΠ΅ ΠΈΠ½ΡΡΡΡΠΌΠ΅Π½ΡΡ Π΄Π»Ρ ΠΌΠ°ΡΠΊΠΈΡΠΎΠ²ΠΊΠΈ.
ΠΠΎΠ³Π΄Π° Π²ΡΠ΅ Π±ΡΠ΄Π΅Ρ Π³ΠΎΡΠΎΠ²ΠΎ, ΠΏΡΠΈΠΊΡΠ΅ΠΏΠΈΡΠ΅ ΡΠ»Π΅ΠΌΠ΅Π½ΡΡ ΡΠ΅ΠΌΠΈ ΠΆΠ΅ Π±ΠΎΠ»ΡΠ°ΠΌΠΈ, Π³Π°ΠΉΠΊΠ°ΠΌΠΈ ΠΈΠ»ΠΈ Π²ΠΈΠ½ΡΠ°ΠΌΠΈ, ΠΊΠΎΡΠΎΡΡΠ΅ Π²Ρ ΠΈΡΠΏΠΎΠ»ΡΠ·ΠΎΠ²Π°Π»ΠΈ ΡΠ°Π½Π΅Π΅. ΠΠ΅Ρ ΠΎΠΏΡΠ΅Π΄Π΅Π»Π΅Π½Π½ΠΎΠ³ΠΎ ΠΊΠΎΠ»ΠΈΡΠ΅ΡΡΠ²Π° ΡΠ»ΠΎΡΠΎΠ², ΠΊΠΎΡΠΎΡΡΠ΅ Π²Ρ Π΄ΠΎΠ»ΠΆΠ½Ρ Π·Π°ΠΊΡΠ΅ΠΏΠΈΡΡ. ΠΡΠΎΡΡΠΎ ΠΎΠ±ΡΠ°ΡΠΈΡΠ΅ΡΡ ΠΊ ΡΠ΅ΠΊΠΎΠΌΠ΅Π½Π΄ΡΠ΅ΠΌΡΠΌ ΠΏΠ°Π·Π°ΠΌ Π½Π° ΠΌΠΎΠ½ΡΠ°ΠΆΠ½ΠΎΠΉ ΠΏΠ»Π°ΡΡΠΈΠ½Π΅.
Π¨Π°Π³ 4: ΠΠΎΠΌΠ΅ΡΡΠΈΡΠ΅ ΡΡΠΈΠΊ ΠΈ Π΄ΡΡΠ³ΠΈΠ΅ Π°ΠΊΡΠ΅ΡΡΡΠ°ΡΡ Π² ΡΡΠΈΠΊ.
ΠΡΠ΅ΠΆΠ΄Π΅ ΡΠ΅ΠΌ ΠΏΠ΅ΡΠ΅ΠΉΡΠΈ ΠΊ ΡΠ°Π³Ρ 4, ΠΏΡΠΎΠ²Π΅ΡΡΡΠ΅, Π½Π°Π΄Π΅ΠΆΠ½ΠΎ Π»ΠΈ Π·Π°ΠΊΡΠ΅ΠΏΠ»Π΅Π½Ρ ΡΠ»Π΅ΠΌΠ΅Π½ΡΡ ΡΠΊΠ°ΡΠ° ΠΈ ΡΡΠΈΠΊΠ°. ΠΡΠ»ΠΈ Π΄Π°, ΡΠΎ ΠΌΠΎΠΆΠ½ΠΎ ΠΏΡΠΈΡΡΡΠΏΠ°ΡΡ ΠΊ Π²ΡΡΠ°Π²ΠΊΠ΅ ΡΡΠΈΠΊΠ° Π² ΡΡΠΌΠ±Ρ.
ΠΠΎΡΠΊΠΎΠ»ΡΠΊΡ ΠΌΡ ΡΠ°Π±ΠΎΡΠ°Π΅ΠΌ Ρ ΡΠΎΠ»ΠΈΠΊΠΎΠ²ΡΠΌΠΈ Π½Π°ΠΏΡΠ°Π²Π»ΡΡΡΠΈΠΌΠΈ, Π²Π°ΠΌ Π½ΡΠΆΠ½ΠΎ Π²ΡΡΠΎΠ²Π½ΡΡΡ ΡΠΎΠ»ΠΈΠΊ ΡΠΊΠ°ΡΠ° ΠΈ ΡΡΠΈΠΊΠ°, ΡΡΠΎΠ±Ρ ΠΎΠ½ΠΈ Π΄Π²ΠΈΠ³Π°Π»ΠΈΡΡ Π²ΠΌΠ΅ΡΡΠ΅. ΠΡΠ»ΠΈ ΠΊΠ°ΠΆΠ΅ΡΡΡ, ΡΡΠΎ Π΄Π²Π° ΠΊΠΎΠΌΠΏΠΎΠ½Π΅Π½ΡΠ° Π½Π΅ ΠΏΠΎΠ΄Ρ
ΠΎΠ΄ΡΡ Π΄ΡΡΠ³ Π΄ΡΡΠ³Ρ, ΠΏΡΠΎΠ²Π΅ΡΡΡΠ΅ ΠΏΡΠ°Π²ΠΈΠ»ΡΠ½ΠΎΡΡΡ Π²ΡΡΠ°Π²Π½ΠΈΠ²Π°Π½ΠΈΡ Ρ ΠΊΠ°ΠΆΠ΄ΠΎΠΉ ΡΡΠΎΡΠΎΠ½Ρ.
ΠΠ΄Π½Π°ΠΊΠΎ Π² Π½Π΅ΠΊΠΎΡΠΎΡΡΡ
ΡΠ»ΡΡΠ°ΡΡ
ΡΡΠ΅Π±ΡΠ΅ΡΡΡ Π»ΠΈΡΡ Π½Π΅Π±ΠΎΠ»ΡΡΠΎΠΉ ΡΠΎΠ»ΡΠΎΠΊ.
Π§ΡΠΎΠ±Ρ ΠΎΠ±Π΅ΡΠ½ΡΡΡ Π΅Π³ΠΎ, ΡΠΎΠ΅Π΄ΠΈΠ½ΠΈΡΠ΅ ΠΊΡΠ΅ΠΏΠ΅ΠΆΠ½ΡΠ΅ ΠΎΡΠ²Π΅ΡΡΡΠΈΡ ΡΡΠΈΠΊΠ° ΠΈ ΡΠ»Π΅ΠΌΠ΅Π½ΡΠΎΠ² ΡΠΊΠ°ΡΠ° Ρ ΠΏΠΎΠΌΠΎΡΡΡ ΠΎΠ΄Π½ΠΎΠ³ΠΎ ΠΈ ΡΠΎΠ³ΠΎ ΠΆΠ΅ ΠΊΡΠ΅ΠΏΠ΅ΠΆΠ½ΠΎΠ³ΠΎ ΡΠ»Π΅ΠΌΠ΅Π½ΡΠ°.
ΠΠ»Ρ Π»ΡΡΡΠ΅Π³ΠΎ ΠΊΠ°ΡΠ΅ΡΡΠ²Π° ΠΌΡ ΡΠ΅ΠΊΠΎΠΌΠ΅Π½Π΄ΡΠ΅ΠΌ ΠΈΡΠΏΠΎΠ»ΡΠ·ΠΎΠ²Π°ΡΡ Π·Π°ΡΠΈΡΠ΅Π½Π½ΡΠ΅ Π²Π΅ΡΡΠΈΠΈ Π³Π°Π΅ΠΊ, Π±ΠΎΠ»ΡΠΎΠ² ΠΈΠ»ΠΈ Π²ΠΈΠ½ΡΠΎΠ², ΠΊΠΎΡΠΎΡΡΠ΅ Π²Ρ ΠΈΡΠΏΠΎΠ»ΡΠ·ΠΎΠ²Π°Π»ΠΈ. ΠΡΠΎ ΠΏΠΎΠΌΠΎΠΆΠ΅Ρ ΡΠΊΠ°ΡΡ Π²ΡΠ΄Π΅ΡΠΆΠ°ΡΡ Π±ΠΎΠ»ΡΡΡΡ Π½Π°Π³ΡΡΠ·ΠΊΡ. Π’Π΅ΠΌ Π½Π΅ ΠΌΠ΅Π½Π΅Π΅, Π² ΡΡΠΎΠΌ Π½Π΅Ρ Π½Π΅ΠΎΠ±Ρ ΠΎΠ΄ΠΈΠΌΠΎΡΡΠΈ, Π΅ΡΠ»ΠΈ Π²Ρ Π½Π΅ ΠΏΠ»Π°Π½ΠΈΡΡΠ΅ΡΠ΅ ΠΌΠ½ΠΎΠ³ΠΎ ΠΊΠ»Π°ΡΡΡ Π² ΡΠ²ΠΎΠΈ ΡΡΠΈΠΊΠΈ.
Π¨Π°Π³ 5: ΠΡΠΏΡΡΠ°ΠΉΡΠ΅ Π½ΠΎΠ²ΡΠ΅ Π½Π°ΠΏΡΠ°Π²Π»ΡΡΡΠΈΠ΅ Π΄Π»Ρ Π²ΡΠ΄Π²ΠΈΠΆΠ½ΡΡ ΡΡΠΈΠΊΠΎΠ².
ΠΠΎΠ³Π΄Π° Π²Ρ Π·Π°ΠΊΠΎΠ½ΡΠΈΡΠ΅ ΡΠΎ Π²ΡΠ΅ΠΌΠΈ ΡΠ°ΡΡΡΠΎΡΠΊΠ°ΠΌΠΈ, Π²Π»ΠΎΠΆΠ΅Π½ΠΈΡΠΌΠΈ ΠΈ ΠΏΡΠΎΡΠΈΠΌ, Π²Ρ ΠΌΠΎΠΆΠ΅ΡΠ΅ ΠΏΡΠΎΡΠ΅ΡΡΠΈΡΠΎΠ²Π°ΡΡ ΡΠ²ΠΎΠΈ Π½ΠΎΠ²ΡΠ΅ Π½Π°ΠΏΡΠ°Π²Π»ΡΡΡΠΈΠ΅ Π΄Π»Ρ Π²ΡΠ΄Π²ΠΈΠΆΠ½ΡΡ ΡΡΠΈΠΊΠΎΠ².
ΠΠΎΡ ΠΊΠΎΠ½ΡΡΠΎΠ»ΡΠ½ΡΠΉ ΡΠΏΠΈΡΠΎΠΊ, ΡΡΠΎΠ±Ρ ΡΠ·Π½Π°ΡΡ, ΠΏΡΠ°Π²ΠΈΠ»ΡΠ½ΠΎ Π»ΠΈ ΡΠ°Π±ΠΎΡΠ°ΡΡ Π²Π°ΡΠΈ ΡΡΠΈΠΊΠΈ:
- ΠΠ°Ρ ΡΡΠΈΠΊ ΠΏΠ»Π°Π²Π½ΠΎ ΠΎΡΠΊΡΡΠ²Π°Π΅ΡΡΡ ΠΈ Π·Π°ΠΊΡΡΠ²Π°Π΅ΡΡΡ
- ΠΠ΅Ρ Π½Π΅ΠΏΡΠΈΡΡΠ½ΠΎΠ³ΠΎ Π·Π²ΡΠΊΠ° ΠΏΡΠΈ ΠΈΡΠΏΠΎΠ»ΡΠ·ΠΎΠ²Π°Π½ΠΈΠΈ ΡΡΠΈΠΊΠ°
- Π―ΡΠΈΠΊΠΈ ΠΏΠ»ΠΎΡΠ½ΠΎ ΠΏΡΠΈΠ»Π΅Π³Π°ΡΡ ΠΊ ΡΡΠΌΠ±Π΅
- ΠΠ°ΡΠΈ ΡΡΠΈΠΊΠΈ Π½Π΅ ΡΠ΄Π²ΠΈΠ³Π°ΡΡΡΡ Ρ ΠΌΠ΅ΡΡΠ°, ΠΊΠΎΠ³Π΄Π° Π²Ρ ΠΊΠ»Π°Π΄Π΅ΡΠ΅ Π²Π½ΡΡΡΡ ΠΏΡΠ΅Π΄ΠΌΠ΅Ρ
Π ΡΠ΅Π»ΠΎΠΌ, Π΅ΡΠ»ΠΈ Π΅ΡΡΡ ΠΏΡΠΎΠ±Π»Π΅ΠΌΡ, Π²Π°ΠΌ ΠΌΠΎΠΆΠ΅Ρ ΠΏΠΎΡΡΠ΅Π±ΠΎΠ²Π°ΡΡΡΡ ΠΏΠ΅ΡΠ΅ΠΏΡΠΎΠ²Π΅ΡΠΈΡΡ ΠΊΠ°ΠΆΠ΄ΡΠΉ ΠΏΡΠ΅Π΄ΡΠ΄ΡΡΠΈΠΉ ΡΠ°Π³, ΠΊΠΎΡΠΎΡΡΠΉ ΠΌΡ ΡΠ΄Π΅Π»Π°Π»ΠΈ.
ΠΡΠ»ΠΈ ΠΈΡ
Π½Π΅Ρ, Π²Ρ ΠΌΠΎΠΆΠ΅ΡΠ΅ Π½Π°ΡΠ°ΡΡ Π½Π°ΡΠ»Π°ΠΆΠ΄Π°ΡΡΡΡ ΡΠΎΠ»ΠΈΠΊΠΎΠ²ΡΠΌΠΈ Π½Π°ΠΏΡΠ°Π²Π»ΡΡΡΠΈΠΌΠΈ Π΄Π»Ρ Π²ΡΠ΄Π²ΠΈΠΆΠ½ΡΡ
ΡΡΠΈΠΊΠΎΠ².
ΠΡΡΠΎΡΠ½ΠΈΠΊ: Furnica
ΠΠ°ΠΆΠ½ΡΠ΅ ΡΠ»Π΅ΠΌΠ΅Π½ΡΡ ΡΡΡΠ½ΠΈΡΡΡΡ Π΄Π»Ρ ΡΡΠ½ΠΊΡΠΈΠΎΠ½Π°Π»ΡΠ½ΠΎΠ³ΠΎ ΡΡΠΈΠΊΠ°
ΠΠ°ΡΠ΅ΡΠΈΠ°Π»Ρ ΡΡΡΠ½ΠΈΡΡΡΡ ΠΎΡΠ½ΠΎΡΡΡΡΡ ΠΊ Π°ΠΊΡΠ΅ΡΡΡΠ°ΡΠ°ΠΌ ΠΊΠΎΠΌΠΏΠΎΠ½Π΅Π½ΡΠ° (ΡΠΊΠ°ΡΠ°, ΡΡΠΈΠΊΠ°, ΠΌΠ΅Π±Π΅Π»ΠΈ). ΠΠ΅ΠΊΠΎΡΠΎΡΡΠ΅ ΠΈΠ· Π½ΠΈΡ Π½Π΅ΠΎΠ±Ρ ΠΎΠ΄ΠΈΠΌΡ, Π° Π½Π΅ΠΊΠΎΡΠΎΡΡΠ΅ ΡΠ²Π»ΡΡΡΡΡ Π½Π΅ΠΎΠ±ΡΠ·Π°ΡΠ΅Π»ΡΠ½ΡΠΌΠΈ.
Π§ΡΠΎ ΠΊΠ°ΡΠ°Π΅ΡΡΡ Π²ΡΠ΄Π²ΠΈΠΆΠ½ΡΡ ΡΡΠΈΠΊΠΎΠ², Π²ΠΎΡ ΡΡΠΎ Π²Π°ΠΌ Π½ΡΠΆΠ½ΠΎ:
- ΠΠ΅ΡΠ»ΠΈ Π΄Π»Ρ ΡΠΊΠ°ΡΠ°
- ΠΠΎΠ½ΡΠ°ΠΆΠ½ΡΠ΅ ΠΏΠ»Π°ΡΡΠΈΠ½Ρ
- Π ΡΡΠΊΠΈ ΠΈΠ»ΠΈ ΡΡΡΠΊΠΈ (Π΄Π»Ρ ΡΡΠΈΠΊΠΎΠ²)
- ΠΡΠ΅ΠΏΠ΅ΠΆ
- Π€ΠΈΡΠΈΠ½Π³ΠΈ
Π ΠΎΡΠ½ΠΎΠ²Π½ΠΎΠΌ ΠΎΠ½ΠΈ ΠΈΠ·Π³ΠΎΡΠ°Π²Π»ΠΈΠ²Π°ΡΡΡΡ ΠΈΠ· Π°Π»ΡΠΌΠΈΠ½ΠΈΡ ΠΈΠ»ΠΈ ΠΌΠ΅ΡΠ°Π»Π»Π°. Π Π»ΡΠ±ΠΎΠΌ ΡΠ»ΡΡΠ°Π΅, Π±Π΅Π· Π½ΠΈΡ Π½Π΅Π»ΡΠ·Ρ ΡΠ°ΡΡΡΠΈΡΡΠ²Π°ΡΡ Π½Π° Π΄ΠΎΠ»Π³ΠΎΠ²Π΅ΡΠ½ΡΠΉ ΠΈ ΠΊΡΠ΅ΠΏΠΊΠΈΠΉ ΡΠΊΠ°Ρ.
ΠΠΎΡΠ΅ΠΌΡ ΡΡΠΎΠΈΡ ΠΈΠ½Π²Π΅ΡΡΠΈΡΠΎΠ²Π°ΡΡ Π² Ρ ΠΎΡΠΎΡΡΡ ΡΡΡΠ½ΠΈΡΡΡΡ Π΄Π»Ρ ΡΡΠΈΠΊΠΎΠ²?
ΠΠ°ΠΊ Π½ΠΈ ΠΎΡΠ΅Π²ΠΈΠ΄Π½ΠΎ, Ρ
ΠΎΡΠΎΡΠ°Ρ ΡΡΡΠ½ΠΈΡΡΡΠ° (Π² ΡΠΎΡΠ΅ΡΠ°Π½ΠΈΠΈ Ρ ΠΏΡΠ°Π²ΠΈΠ»ΡΠ½ΠΎΠΉ ΡΡΡΠ°Π½ΠΎΠ²ΠΊΠΎΠΉ) ΡΠ΄Π΅Π»Π°Π΅Ρ Π²Π°ΡΠΈ ΡΡΠΈΠΊΠΈ ΡΠ΄ΠΎΠ±Π½ΡΠΌΠΈ, ΡΡΡΠ΅ΠΊΡΠΈΠ²Π½ΡΠΌΠΈ ΠΈ ΠΊΠ°ΡΠ΅ΡΡΠ²Π΅Π½Π½ΡΠΌΠΈ. ΠΠ°ΠΏΡΠΈΠΌΠ΅Ρ, ΠΊΠ°ΡΠ΅ΡΡΠ²Π΅Π½Π½ΡΠ΅ Π·Π°ΡΡΠ΅ΠΆΠΊΠΈ ΡΠ»ΡΠΆΠ°Ρ Π΄ΠΎΠ»ΡΡΠ΅, ΡΠ΅ΠΌ Π΄Π΅ΡΠ΅Π²ΡΠ΅, Π½ΠΎ Π½Π΅ΠΊΠ°ΡΠ΅ΡΡΠ²Π΅Π½Π½ΡΠ΅.
ΠΠ΅ΡΠ²ΡΠΉ Π½Π΅ ΡΡΠ΅Π±ΡΠ΅Ρ ΠΏΠΎΡΡΠΎΡΠ½Π½ΠΎΠΉ Π·Π°ΠΌΠ΅Π½Ρ ΠΈ Π³Π°ΡΠ°Π½ΡΠΈΡΡΠ΅Ρ Π±Π΅ΡΠΏΠ΅ΡΠ΅Π±ΠΎΠΉΠ½ΡΡ ΡΠ°Π±ΠΎΡΡ Π²Π°ΡΠΈΡ
ΡΡΠΈΠΊΠΎΠ².
ΠΡΠΎ ΡΠ°ΠΊΠΆΠ΅ ΠΎΡΠ½ΠΎΡΠΈΡΡΡ ΠΊ ΠΏΡΠΎΡΠ΅ΠΉ ΠΌΠ΅Π±Π΅Π»ΡΠ½ΠΎΠΉ ΡΡΡΠ½ΠΈΡΡΡΠ΅, ΡΠ°ΠΊΠΎΠΉ ΠΊΠ°ΠΊ ΠΏΠ΅ΡΠ»ΠΈ ΠΈ ΠΌΠΎΠ½ΡΠ°ΠΆΠ½ΡΠ΅ ΠΏΠ»Π°ΡΡΠΈΠ½Ρ.
Π Π΅Π·ΡΠΌΠ΅
ΠΠΎΠ΄Π²ΠΎΠ΄Ρ ΠΈΡΠΎΠ³, ΠΎΡΠ²Π΅Ρ Π½Π° Π²ΠΎΠΏΡΠΎΡ, ΠΊΠ°ΠΊ ΡΡΡΠ°Π½ΠΎΠ²ΠΈΡΡ ΡΠΎΠ»ΠΈΠΊΠΎΠ²ΡΠ΅ Π½Π°ΠΏΡΠ°Π²Π»ΡΡΡΠΈΠ΅, ΠΏΡΠΎΡΡ.
ΠΠ»Ρ Π½Π°ΡΠ°Π»Π° ΡΠ°Π±ΠΎΡΡ Π²Π°ΠΌ ΠΏΠΎΠ½Π°Π΄ΠΎΠ±ΡΡΡΡ ΡΠΎΠ»ΡΠΊΠΎ ΡΠ»Π΅ΠΌΠ΅Π½ΡΡ ΡΠΊΠ°ΡΠ° ΠΈ ΡΡΠΈΠΊΠ° Π²Π°ΡΠΈΡ ΡΠΎΠ»ΠΈΠΊΠΎΠ²ΡΡ Π½Π°ΠΏΡΠ°Π²Π»ΡΡΡΠΈΡ . ΠΡΠ»ΠΈ Ρ Π²Π°Ρ Π΅ΡΡΡ ΡΡΠΎ (ΠΈ, ΠΊΠΎΠ½Π΅ΡΠ½ΠΎ ΠΆΠ΅, Π½Π΅ΠΎΠ±Ρ ΠΎΠ΄ΠΈΠΌΡΠ΅ ΠΈΠ½ΡΡΡΡΠΌΠ΅Π½ΡΡ, ΡΠ°ΠΊΠΈΠ΅ ΠΊΠ°ΠΊ Π²ΠΈΠ½ΡΡ ΠΈ ΠΎΡΠ²Π΅ΡΡΠΊΠΈ), Π²Π°ΠΌ Π½Π΅ ΠΏΡΠΈΠ΄Π΅ΡΡΡ Π±Π΅ΡΠΏΠΎΠΊΠΎΠΈΡΡΡΡ ΠΎ ΡΠΎΠΌ, ΡΡΠΎΠ±Ρ Π½Π°Π½ΡΡΡ ΠΏΡΠΎΡΠ΅ΡΡΠΈΠΎΠ½Π°Π»Π°.
ΠΡΠ»ΠΈ Π²Ρ Ρ ΠΎΡΠΈΡΠ΅, ΡΡΠΎΠ±Ρ Π²Π°ΡΠΈ ΡΠΎΠ»ΠΈΠΊΠΎΠ²ΡΠ΅ Π½Π°ΠΏΡΠ°Π²Π»ΡΡΡΠΈΠ΅, Π²ΡΠ΄Π²ΠΈΠΆΠ½ΡΠ΅ ΡΡΠΈΠΊΠΈ ΠΈ ΡΠΊΠ°Ρ Π² ΡΠ΅Π»ΠΎΠΌ ΠΏΡΠΎΡΠ»ΡΠΆΠΈΠ»ΠΈ Π΄ΠΎΠ»Π³ΠΎ, Π²Π°ΠΌ ΡΠ»Π΅Π΄ΡΠ΅Ρ ΠΏΠΎΠ»ΡΡΠΈΡΡ ΡΠΎΠΎΡΠ²Π΅ΡΡΡΠ²ΡΡΡΠΈΠΉ ΡΠΏΠΈΡΠΎΠΊ ΡΡΡΠ½ΠΈΡΡΡΡ Π΄Π»Ρ Π²Π°ΡΠΈΡ Π½ΡΠΆΠ΄. ΠΠ±ΠΎΡΡΠ΄ΠΎΠ²Π°Π½ΠΈΠ΅, ΡΠ²ΡΠ·Π°Π½Π½ΠΎΠ΅ Ρ ΡΡΠΈΠΊΠΎΠΌ, ΠΌΠΎΠΆΠ΅Ρ Π²ΠΊΠ»ΡΡΠ°ΡΡ ΡΡΡΠΊΠΈ, Π°Π»ΡΠΌΠΈΠ½ΠΈΠΉ, ΠΏΠ΅ΡΠ»ΠΈ ΠΈ ΡΠΎΠΌΡ ΠΏΠΎΠ΄ΠΎΠ±Π½ΠΎΠ΅.
ΠΠ»Ρ ΠΊΠ°ΡΠ΅ΡΡΠ²Π΅Π½Π½ΠΎΠ³ΠΎ ΠΎΠ±ΠΎΡΡΠ΄ΠΎΠ²Π°Π½ΠΈΡ ΠΌΡ ΡΠ΅ΠΊΠΎΠΌΠ΅Π½Π΄ΡΠ΅ΠΌ ΠΎΠ±ΡΠ°ΡΠΈΡΡΡΡ ΠΊ Venace ΠΈΠ»ΠΈ ΠΈΡ
Π΄ΠΈΡΡΡΠΈΠ±ΡΡΡΠΎΡΠ°ΠΌ. ΠΠ½ΠΈ Π³Π°ΡΠ°Π½ΡΠΈΡΡΡΡ ΠΏΠ΅ΡΠ²ΠΎΠΊΠ»Π°ΡΡΠ½ΡΠΉ ΡΠΏΠΈΡΠΎΠΊ ΠΌΠ°ΡΠ΅ΡΠΈΠ°Π»ΠΎΠ² ΠΌΠ΅Π±Π΅Π»ΡΠ½ΠΎΠΉ ΡΡΡΠ½ΠΈΡΡΡΡ.
Π Π°Π·Π»ΠΈΡΠ½ΡΠ΅ ΡΠΈΠΏΡ Π½Π°ΠΏΡΠ°Π²Π»ΡΡΡΠΈΡ Π΄Π»Ρ ΡΡΠΈΠΊΠΎΠ²
295
Π°ΠΊΡΠΈΠΈ
16
Π‘ΡΡΠ΅ΡΡΠ²ΡΠ΅Ρ ΡΠ°ΠΊ ΠΌΠ½ΠΎΠ³ΠΎ ΡΠΈΠΏΠΎΠ² Π½Π°ΠΏΡΠ°Π²Π»ΡΡΡΠΈΡ Π΄Π»Ρ Π²ΡΠ΄Π²ΠΈΠΆΠ½ΡΡ ΡΡΠΈΠΊΠΎΠ², ΡΡΠΎ Π²ΡΠ±ΠΎΡ ΠΏΠΎΠ΄Ρ ΠΎΠ΄ΡΡΠ΅Π³ΠΎ ΠΌΠΎΠΆΠ΅Ρ ΠΎΠΊΠ°Π·Π°ΡΡΡΡ Π½Π΅ΠΏΡΠΎΡΡΠΎΠΉ Π·Π°Π΄Π°ΡΠ΅ΠΉ. Π£Π·Π½Π°ΠΉΡΠ΅ ΠΏΠ»ΡΡΡ ΠΈ ΠΌΠΈΠ½ΡΡΡ ΠΊΠ°ΠΆΠ΄ΠΎΠ³ΠΎ ΡΡΠΈΠ»Ρ Π·Π΄Π΅ΡΡ!
ΠΡΠΎΠΉΠ΄ΠΈΡΠ΅ΡΡ ΠΏΠΎ ΠΎΡΠ΄Π΅Π»Ρ Ρ ΠΎΠ±ΠΎΡΡΠ΄ΠΎΠ²Π°Π½ΠΈΠ΅ΠΌ, ΠΈ Π²Ρ ΡΠ²ΠΈΠ΄ΠΈΡΠ΅ Π΄Π΅ΡΡΡΠΊΠΈ ΡΠ°Π·Π»ΠΈΡΠ½ΡΡ Π²Π°ΡΠΈΠ°Π½ΡΠΎΠ² Π½Π°ΠΏΡΠ°Π²Π»ΡΡΡΠΈΡ Π΄Π»Ρ Π²ΡΠ΄Π²ΠΈΠΆΠ½ΡΡ ΡΡΠΈΠΊΠΎΠ². ΠΡΠΎ ΠΌΠΎΠΆΠ΅Ρ ΡΡΠ°ΡΡ ΠΏΠΎΠ΄Π°Π²Π»ΡΡΡΠΈΠΌ! ΠΠΎΠ»ΠΆΠ½Ρ Π»ΠΈ Π²Ρ ΠΏΠΎΠ»ΡΡΠΈΡΡ Π½Π°ΠΏΡΠ°Π²Π»ΡΡΡΡΡ ΡΡΠΈΠΊΠ° Ρ ΠΏΠ»Π°Π²Π½ΡΠΌ Π·Π°ΠΊΡΡΠ²Π°Π½ΠΈΠ΅ΠΌ ΠΏΠΎΠ΄ ΠΌΠΎΠ½ΡΠ°ΠΆΠΎΠΌ ΠΈΠ»ΠΈ Π½Π°ΠΏΡΠ°Π²Π»ΡΡΡΡΡ ΠΏΠΎΠ»Π½ΠΎΠ³ΠΎ Π²ΡΠ΄Π²ΠΈΠΆΠ΅Π½ΠΈΡ Π½Π° ΡΠ°ΡΠΈΠΊΠΎΠΏΠΎΠ΄ΡΠΈΠΏΠ½ΠΈΠΊΠ°Ρ ? ΠΠ°ΠΊΠ°Ρ ΡΠ°Π·Π½ΠΈΡΠ°?
ΠΡΠΎ ΡΠ΄ΠΎΠ±Π½ΠΎΠ΅ ΡΡΠΊΠΎΠ²ΠΎΠ΄ΡΡΠ²ΠΎ ΠΏΠΎΠΌΠΎΠΆΠ΅Ρ! Π― ΡΠΎΠ±ΡΠ°Π» Π²ΡΡ ΠΈΠ½ΡΠΎΡΠΌΠ°ΡΠΈΡ ΠΎ ΠΊΠ°ΠΆΠ΄ΠΎΠΌ ΡΠΈΠΏΠ΅ Π½Π°ΠΏΡΠ°Π²Π»ΡΡΡΠΈΡ Π΄Π»Ρ Π²ΡΠ΄Π²ΠΈΠΆΠ½ΡΡ ΡΡΠΈΠΊΠΎΠ², Π΄ΠΎΡΡΡΠΏΠ½ΡΡ Π½Π° ΡΠ΅Π³ΠΎΠ΄Π½ΡΡΠ½ΠΈΠΉ Π΄Π΅Π½Ρ, ΡΡΠΎΠ±Ρ Π²Ρ ΠΌΠΎΠ³Π»ΠΈ Π»Π΅Π³ΠΊΠΎ ΡΡΠ°Π²Π½ΠΈΡΡ ΡΠ°Π·Π»ΠΈΡΠ½ΡΠ΅ ΡΠΈΠΏΡ ΠΈ Π½Π°ΠΉΡΠΈ ΠΏΡΠ°Π²ΠΈΠ»ΡΠ½ΡΠΉ Π²Π°ΡΠΈΠ°Π½Ρ Π΄Π»Ρ ΡΠ²ΠΎΠ΅Π³ΠΎ ΠΏΡΠΎΠ΅ΠΊΡΠ°!
ΠΡΠΎΡ ΠΏΠΎΡΡ ΡΠΎΠ΄Π΅ΡΠΆΠΈΡ ΠΏΠ°ΡΡΠ½Π΅ΡΡΠΊΠΈΠ΅ ΡΡΡΠ»ΠΊΠΈ Π΄Π»Ρ Π²Π°ΡΠ΅Π³ΠΎ ΡΠ΄ΠΎΠ±ΡΡΠ²Π°. ΠΠΎΠΊΡΠΏΠΊΠΈ, ΡΠ΄Π΅Π»Π°Π½Π½ΡΠ΅ ΠΏΠΎ ΡΡΠΈΠΌ ΡΡΡΠ»ΠΊΠ°ΠΌ, ΠΌΠΎΠ³ΡΡ ΠΏΡΠΈΠ½Π΅ΡΡΠΈ ΠΌΠ½Π΅ Π½Π΅Π±ΠΎΠ»ΡΡΡΡ ΠΊΠΎΠΌΠΈΡΡΠΈΡ Π±Π΅Π· ΠΊΠ°ΠΊΠΈΡ
-Π»ΠΈΠ±ΠΎ Π΄ΠΎΠΏΠΎΠ»Π½ΠΈΡΠ΅Π»ΡΠ½ΡΡ
Π·Π°ΡΡΠ°Ρ Π΄Π»Ρ Π²Π°Ρ.
ΠΠΎΠΆΠ°Π»ΡΠΉΡΡΠ°, ΠΏΠΎΡΠ΅ΡΠΈΡΠ΅ ΠΌΠΎΡ ΡΡΡΠ°Π½ΠΈΡΡ ΡΠ°ΡΠΊΡΡΡΠΈΡ ΠΈΠ½ΡΠΎΡΠΌΠ°ΡΠΈΠΈ Π΄Π»Ρ ΠΏΠΎΠ»ΡΡΠ΅Π½ΠΈΡ Π΄ΠΎΠΏΠΎΠ»Π½ΠΈΡΠ΅Π»ΡΠ½ΠΎΠΉ ΠΈΠ½ΡΠΎΡΠΌΠ°ΡΠΈΠΈ.
Π Π°Π·Π»ΠΈΡΠ½ΡΠ΅ ΡΠΈΠΏΡ Π½Π°ΠΏΡΠ°Π²Π»ΡΡΡΠΈΡ Π΄Π»Ρ ΡΡΠΈΠΊΠΎΠ²
ΠΡΠ΅ΠΆΠ΄Π΅ ΡΠ΅ΠΌ ΠΏΡΠΈΡΡΡΠΏΠΈΡΡ ΠΊ ΡΠ±ΠΎΡΠΊΠ΅ ΡΡΠΈΠΊΠ°, Π²Π°ΠΌ ΡΠ»Π΅Π΄ΡΠ΅Ρ Π²ΡΠ±ΡΠ°ΡΡ ΡΠΈΠΏ Π½Π°ΠΏΡΠ°Π²Π»ΡΡΡΠΈΡ Π΄Π»Ρ ΡΡΠΈΠΊΠΎΠ², ΠΊΠΎΡΠΎΡΡΠ΅ Π²Ρ Π±ΡΠ΄Π΅ΡΠ΅ ΠΈΡΠΏΠΎΠ»ΡΠ·ΠΎΠ²Π°ΡΡ Π² ΡΠ²ΠΎΠ΅ΠΌ ΠΏΡΠΎΠ΅ΠΊΡΠ΅. Π Π°Π·ΠΌΠ΅Ρ ΠΏΡΠΎΠ΅ΠΌΠ° ΡΠΊΠ°ΡΠ° ΠΈ ΡΠΏΠΎΡΠΎΠ± ΡΡΡΠ°Π½ΠΎΠ²ΠΊΠΈ Π½Π°ΠΏΡΠ°Π²Π»ΡΡΡΠΈΡ ΡΡΠΈΠΊΠΎΠ² Π±ΡΠ΄ΡΡ ΠΎΠΏΡΠ΅Π΄Π΅Π»ΡΡΡ ΡΠ°Π·ΠΌΠ΅Ρ ΡΡΠΈΠΊΠ° Π΄Π»Ρ ΡΡΠΈΠΊΠΎΠ².
ΠΠ°ΠΏΡΠ°Π²Π»ΡΡΡΠΈΠ΅ Π΄Π»Ρ Π²ΡΠ΄Π²ΠΈΠΆΠ½ΡΡ ΡΡΠΈΠΊΠΎΠ² Π½Π° ΡΠ°ΡΠΈΠΊΠΎΠΏΠΎΠ΄ΡΠΈΠΏΠ½ΠΈΠΊΠ°Ρ
ΠΠ°ΠΏΡΠ°Π²Π»ΡΡΡΠΈΠ΅ Π΄Π»Ρ Π²ΡΠ΄Π²ΠΈΠΆΠ½ΡΡ ΡΡΠΈΠΊΠΎΠ² Π½Π° ΡΠ°ΡΠΈΠΊΠΎΠΏΠΎΠ΄ΡΠΈΠΏΠ½ΠΈΠΊΠ°Ρ ΡΠ²Π»ΡΡΡΡΡ Π½Π°ΠΈΠ±ΠΎΠ»Π΅Π΅ ΡΠ°ΡΠΏΡΠΎΡΡΡΠ°Π½Π΅Π½Π½ΡΠΌ ΡΠΈΠΏΠΎΠΌ Π½Π°ΠΏΡΠ°Π²Π»ΡΡΡΠΈΡ Π΄Π»Ρ Π²ΡΠ΄Π²ΠΈΠΆΠ½ΡΡ ΡΡΠΈΠΊΠΎΠ². ΠΠ½ΠΈ ΡΠ΄Π΅Π»Π°Π½Ρ ΠΈΠ· ΡΡΠ°Π»ΡΠ½ΡΡ ΡΠ°ΡΠΈΠΊΠΎΠΏΠΎΠ΄ΡΠΈΠΏΠ½ΠΈΠΊΠΎΠ², ΠΊΠΎΡΠΎΡΡΠ΅ ΠΊΠ°ΡΡΡΡΡ ΠΏΠΎ ΡΠΎΠ½ΠΊΠΎΠΉ Π΄ΠΎΡΠΎΠΆΠΊΠ΅. ΠΡΠΎ ΠΏΠΎΠ·Π²ΠΎΠ»ΡΠ΅Ρ ΡΡΠΈΠΊΡ ΠΏΠ»Π°Π²Π½ΠΎ Π²Ρ ΠΎΠ΄ΠΈΡΡ ΠΈ Π²ΡΠ΄Π²ΠΈΠ³Π°ΡΡΡΡ Ρ ΠΌΠ΅Π½ΡΡΠΈΠΌ ΡΡΠ΅Π½ΠΈΠ΅ΠΌ.
ΠΡΠΎΡ ΡΠΈΠΏ Π½Π°ΠΏΡΠ°Π²Π»ΡΡΡΠΈΡ
Π΄Π»Ρ Π²ΡΠ΄Π²ΠΈΠΆΠ½ΡΡ
ΡΡΠΈΠΊΠΎΠ² ΠΏΡΠΎΡΡ Π² ΡΡΡΠ°Π½ΠΎΠ²ΠΊΠ΅, Π½ΠΎ ΡΡΠ΅Π±ΡΠ΅Ρ Π°ΠΊΠΊΡΡΠ°ΡΠ½ΠΎΡΡΠΈ ΠΏΡΠΈ ΡΠ±ΠΎΡΠΊΠ΅ ΡΡΠΈΠΊΠ°. ΠΡΠ»ΠΈ Π²Ρ ΡΠ΄Π΅Π»Π°Π΅ΡΠ΅ ΡΠ²ΠΎΠΉ ΡΡΠΈΠΊ Ρ
ΠΎΡΡ ΡΡΡΡ-ΡΡΡΡ ΡΠ»ΠΈΡΠΊΠΎΠΌ Π±ΠΎΠ»ΡΡΠΈΠΌ ΠΈΠ»ΠΈ ΡΠ»ΠΈΡΠΊΠΎΠΌ ΠΌΠ°Π»Π΅Π½ΡΠΊΠΈΠΌ, Π½Π°ΠΏΡΠ°Π²Π»ΡΡΡΠΈΠ΅ ΡΡΠΈΠΊΠ° Π½Π΅ Π±ΡΠ΄ΡΡ ΠΊΠ°ΡΠΈΡΡΡΡ Π΄ΠΎΠ»ΠΆΠ½ΡΠΌ ΠΎΠ±ΡΠ°Π·ΠΎΠΌ. Π― ΡΠ°ΡΡΠΌΠ°ΡΡΠΈΠ²Π°Ρ ΡΠΎΡΠΌΡΠ»Ρ Π΄Π»Ρ ΠΎΠΏΡΠ΅Π΄Π΅Π»Π΅Π½ΠΈΡ ΡΠΈΡΠΈΠ½Ρ ΡΡΠΈΠΊΠ° Ρ ΠΏΠΎΠΌΠΎΡΡΡ ΡΡΠΈΡ
ΡΠ»Π°ΠΉΠ΄ΠΎΠ² Π² ΡΡΠΎΠΌ ΡΡΠΎΠΊΠ΅.
ΠΠ°ΠΏΡΠ°Π²Π»ΡΡΡΠΈΠ΅ Π΄Π»Ρ ΡΡΠΈΠΊΠΎΠ² Π½Π° ΡΠ°ΡΠΈΠΊΠΎΠΏΠΎΠ΄ΡΠΈΠΏΠ½ΠΈΠΊΠ°Ρ ΡΠ°Π·Π΄Π΅Π»Π΅Π½Ρ Π½Π° Π΄Π²Π΅ ΡΠ°ΡΡΠΈ: ΠΎΠ΄Π½Π° ΠΏΠΎΠ»ΠΎΠ²ΠΈΠ½Π° Π΄Π»Ρ Π²Π½ΡΡΡΠ΅Π½Π½Π΅ΠΉ ΡΠ°ΡΡΠΈ ΡΠΊΠ°ΡΠ°, Π° Π΄ΡΡΠ³Π°Ρ ΠΏΠΎΠ»ΠΎΠ²ΠΈΠ½Π° Π΄Π»Ρ Π±ΠΎΠΊΠΎΠ²ΠΎΠΉ ΡΠ°ΡΡΠΈ ΡΡΠΈΠΊΠ°. ΠΠ½ΡΡΡΠΈ Π³ΡΡΠ΅Π½ΠΈΡΡ Π΅ΡΡΡ Π½Π΅Π±ΠΎΠ»ΡΡΠ°Ρ ΠΏΠ»Π°ΡΡΠΈΠΊΠΎΠ²Π°Ρ Π·Π°ΡΠ΅Π»ΠΊΠ°, ΠΊΠΎΡΠΎΡΠ°Ρ ΠΎΡΠ²ΠΎΠ±ΠΎΠΆΠ΄Π°Π΅Ρ Π΄Π²Π΅ ΠΏΠΎΠ»ΠΎΠ²ΠΈΠ½ΠΊΠΈ Π΄Π»Ρ ΠΎΠ±Π»Π΅Π³ΡΠ΅Π½ΠΈΡ ΡΡΡΠ°Π½ΠΎΠ²ΠΊΠΈ.
ΠΠ»ΡΡΡ : ΠΠ΅Π΄ΠΎΡΠΎΠ³ΠΎΠΉ ΠΈ ΠΏΡΠΎΡΡΠΎΠΉ Π² ΡΡΡΠ°Π½ΠΎΠ²ΠΊΠ΅. ΠΠΎΠΆΠ½ΠΎ Π½Π°ΠΉΡΠΈ Π² Π»ΡΠ±ΠΎΠΌ Ρ ΠΎΠ·ΡΠΉΡΡΠ²Π΅Π½Π½ΠΎΠΌ ΠΌΠ°Π³Π°Π·ΠΈΠ½Π΅. ΠΠΎΠΆΠ΅Ρ ΡΠ΄Π΅ΡΠΆΠΈΠ²Π°ΡΡ Π±ΠΎΠ»ΡΡΠΎΠΉ Π²Π΅Ρ.
ΠΠΈΠ½ΡΡΡ : Π‘ΡΠ°Π»ΡΠ½ΡΠ΅ ΡΠ°ΡΠΈΠΊΠΈ Π½Π΅ ΠΏΠΎΠ΄Ρ ΠΎΠ΄ΡΡ Π΄Π»Ρ ΡΡΠ΅Π΄, ΠΊΠΎΡΠΎΡΡΠ΅ ΠΌΠΎΠ³ΡΡ Π±ΡΡΡ Π³ΡΡΠ·Π½ΡΠΌΠΈ ΠΈΠ»ΠΈ ΠΏΡΠ»ΡΠ½ΡΠΌΠΈ. Π Π°Π·ΠΌΠ΅ΡΡ Π²ΡΠ΄Π²ΠΈΠΆΠ½ΠΎΠ³ΠΎ ΡΡΠΈΠΊΠ° Π΄ΠΎΠ»ΠΆΠ½Ρ Π±ΡΡΡ ΡΠΎΡΠ½ΡΠΌΠΈ. Π‘Π»Π°ΠΉΠ΄Ρ Π²ΠΈΠ΄Π½Ρ, ΠΊΠΎΠ³Π΄Π° ΡΡΠΈΠΊ ΠΎΡΠΊΡΡΡ.
ΠΠ°ΠΏΡΠ°Π²Π»ΡΡΡΠΈΠ΅ Π΄Π»Ρ ΡΡΠΈΠΊΠΎΠ² Ρ Π½ΠΈΠΆΠ½ΠΈΠΌ ΠΊΡΠ΅ΠΏΠ»Π΅Π½ΠΈΠ΅ΠΌ
ΠΠ°ΠΏΡΠ°Π²Π»ΡΡΡΠΈΠ΅ Π΄Π»Ρ ΡΡΠΈΠΊΠΎΠ² Ρ Π½ΠΈΠΆΠ½ΠΈΠΌ ΠΊΡΠ΅ΠΏΠ»Π΅Π½ΠΈΠ΅ΠΌ ΠΊΡΠ΅ΠΏΡΡΡΡ ΠΊ Π±ΠΎΠΊΠ°ΠΌ ΠΈΠ»ΠΈ Π΄Π½Ρ ΡΠΊΠ°ΡΠ° Ρ ΠΏΠΎΠΌΠΎΡΡΡ L-ΠΎΠ±ΡΠ°Π·Π½ΠΎΠ³ΠΎ ΠΊΡΠΎΠ½ΡΡΠ΅ΠΉΠ½Π° ΠΈ Π½Π°ΠΏΡΠ°Π²Π»ΡΡΡΠ΅ΠΉ. ΠΠ΄ΠΈΠ½ΡΡΠ²Π΅Π½Π½ΠΎΠ΅ ΠΎΠ±ΠΎΡΡΠ΄ΠΎΠ²Π°Π½ΠΈΠ΅, ΠΏΡΠΈΠΊΡΠ΅ΠΏΠ»Π΅Π½Π½ΠΎΠ΅ ΠΊ ΡΡΠΈΠΊΡ, β ΡΡΠΎ ΡΠΏΠ΅ΡΠΈΠ°Π»ΡΠ½ΡΠΉ Π·Π°ΠΆΠΈΠΌ Π½Π° Π½ΠΈΠΆΠ½Π΅ΠΉ ΡΡΠΎΡΠΎΠ½Π΅, ΡΡΠΎΠ±Ρ Π·Π°ΡΠΈΠΊΡΠΈΡΠΎΠ²Π°ΡΡ Π΅Π³ΠΎ Π½Π° Π½Π°ΠΏΡΠ°Π²Π»ΡΡΡΠ΅ΠΉ. Π― ΠΈΡΠΏΠΎΠ»ΡΠ·ΡΡ Π½Π°ΠΏΡΠ°Π²Π»ΡΡΡΠΈΠ΅ Π΄Π»Ρ ΡΡΠΈΠΊΠΎΠ² Blum Ρ Π½ΠΈΠΆΠ½ΠΈΠΌ ΠΊΡΠ΅ΠΏΠ»Π΅Π½ΠΈΠ΅ΠΌ Π²ΠΎ Π²ΡΠ΅Ρ Π±Π°Π·ΠΎΠ²ΡΡ ΡΠΊΠ°ΡΠ°Ρ ΠΌΠΎΠ΅ΠΉ Π½ΠΎΠ²ΠΎΠΉ ΠΏΠ΅ΡΠ΅Π΄Π΅Π»ΠΊΠΈ ΠΊΡΡ Π½ΠΈ, ΠΈ ΠΎΠ½ΠΈ ΡΠΎΠ³ΠΎ ΡΡΠΎΡΡ!
ΠΡΠΎΡ ΡΠΈΠΏ Π½Π°ΠΏΡΠ°Π²Π»ΡΡΡΠΈΡ
ΡΡΠΈΠΊΠ° Π½Π΅ Π²ΠΈΠ΄Π΅Π½, ΠΊΠΎΠ³Π΄Π° Π²Ρ ΠΎΡΠΊΡΡΠ²Π°Π΅ΡΠ΅ ΡΡΠΈΠΊ, ΡΡΠΎ ΠΏΡΠΈΠ΄Π°Π΅Ρ Π²Π°ΡΠ΅ΠΌΡ ΡΠΊΠ°ΡΡ Π³Π»Π°Π΄ΠΊΠΈΠΉ Π²ΠΈΠ΄.
ΠΡΠΎΠΌΠ΅ ΡΠΎΠ³ΠΎ, Π³ΠΎΡΠ°Π·Π΄ΠΎ ΠΏΡΠΎΡΠ΅ ΡΠ½ΡΡΡ ΡΡΠΈΠΊ, ΠΊΠΎΠ³Π΄Π° ΡΡΠΎ Π½Π΅ΠΎΠ±Ρ
ΠΎΠ΄ΠΈΠΌΠΎ, ΠΏΡΠΎΡΡΠΎ ΠΎΡΡΠΎΠ΅Π΄ΠΈΠ½ΠΈΠ² Π·Π°ΠΆΠΈΠΌΡ ΠΏΠΎΠ΄ Π½ΠΈΠΌ ΠΈ ΡΠ½ΡΠ² ΠΊΠΎΡΠΎΠ±ΠΊΡ.
ΠΠ°ΠΏΡΠ°Π²Π»ΡΡΡΠΈΠ΅ Π΄Π»Ρ ΡΡΠΈΠΊΠΎΠ², ΡΡΡΠ°Π½Π°Π²Π»ΠΈΠ²Π°Π΅ΠΌΡΠ΅ ΡΠ½ΠΈΠ·Ρ, ΡΠ°ΠΊΠΆΠ΅ ΠΈΠΌΠ΅ΡΡ Π±ΠΎΠ»ΡΡΠ΅ Π²ΠΎΠ·ΠΌΠΎΠΆΠ½ΠΎΡΡΠ΅ΠΉ Π΄Π»Ρ ΡΠ΅Π³ΡΠ»ΠΈΡΠΎΠ²ΠΊΠΈ, ΡΡΠΎ ΠΎΠ±Π»Π΅Π³ΡΠ°Π΅Ρ ΡΠΎΡΠ½ΡΡ Π½Π°ΡΡΡΠΎΠΉΠΊΡ ΠΏΠΎΠ»ΠΎΠΆΠ΅Π½ΠΈΡ ΠΏΠ΅ΡΠ΅Π΄Π½Π΅ΠΉ ΡΠ°ΡΡΠΈ ΡΡΠΈΠΊΠ°. Π¦ΠΈΡΠ΅ΡΠ±Π»Π°ΡΡ Π½Π° ΠΊΠ»ΠΈΠΏΡΠ°Ρ ΠΏΠΎΠ·Π²ΠΎΠ»ΡΡΡ ΠΏΠ΅ΡΠ΅ΠΌΠ΅ΡΠ°ΡΡ ΡΡΠΈΠΊ Π²ΠΎ Π²ΡΠ΅Ρ Π½Π°ΠΏΡΠ°Π²Π»Π΅Π½ΠΈΡΡ Π΄Π»Ρ Π΄ΠΎΡΡΠΈΠΆΠ΅Π½ΠΈΡ ΠΈΠ΄Π΅Π°Π»ΡΠ½ΠΎΠ³ΠΎ ΡΠ°ΡΠΊΡΡΡΠΈΡ!
ΠΠ΄Π½ΠΈΠΌ ΠΈΠ· Π½Π΅Π΄ΠΎΡΡΠ°ΡΠΊΠΎΠ² Π½Π°ΠΏΡΠ°Π²Π»ΡΡΡΠΈΡ Π΄Π»Ρ ΡΡΠΈΠΊΠΎΠ², ΡΡΡΠ°Π½Π°Π²Π»ΠΈΠ²Π°Π΅ΠΌΡΡ ΡΠ½ΠΈΠ·Ρ, ΡΠ²Π»ΡΠ΅ΡΡΡ ΡΠΎ, ΡΡΠΎ Π²Ρ Π΄ΠΎΠ»ΠΆΠ½Ρ ΡΠΎΠ±ΡΠ°ΡΡ ΡΡΠΈΠΊ Π΄Π»Ρ ΡΡΠΈΠΊΠΎΠ² Π² ΡΠΎΡΠ½ΠΎΠΌ ΡΠΎΠΎΡΠ²Π΅ΡΡΡΠ²ΠΈΠΈ ΡΠΎ ΡΠΏΠ΅ΡΠΈΡΠΈΠΊΠ°ΡΠΈΡΠΌΠΈ, ΡΠΊΠ°Π·Π°Π½Π½ΡΠΌΠΈ Π² ΠΈΠ½ΡΡΡΡΠΊΡΠΈΡΡ . ΠΡ ΠΌΠΎΠΆΠ΅ΡΠ΅ ΠΈΡΠΏΠΎΠ»ΡΠ·ΠΎΠ²Π°ΡΡ ΡΠΎΠ»ΡΠΊΠΎ ΡΡΠΈΠΊΠΈ Ρ Π·Π°Ρ Π²Π°ΡΡΠ²Π°ΡΡΠΈΠΌ ΠΈΠ»ΠΈ ΡΡΠΎΠΏΠ»Π΅Π½Π½ΡΠΌ Π΄Π½ΠΎΠΌ, ΡΡΠΎΠ±Ρ Π²Π½ΠΈΠ·Ρ Π±ΡΠ»ΠΎ ΠΌΠ΅ΡΡΠΎ Π΄Π»Ρ Π·Π°ΠΆΠΈΠΌΠΎΠ². ΠΠ½ΠΈ ΡΠ°ΠΊΠΆΠ΅ Π½Π°ΠΌΠ½ΠΎΠ³ΠΎ Π΄ΠΎΡΠΎΠΆΠ΅, ΡΠ΅ΠΌ Π΄ΡΡΠ³ΠΈΠ΅ ΡΡΠΈΠ»ΠΈ.
ΠΠ»ΡΡΡ : Π»Π΅Π³ΠΊΠΎ ΡΡΡΠ°Π½ΠΎΠ²ΠΈΡΡ, Π²ΡΠ΄Π΅ΡΠΆΠΈΠ²Π°Π΅Ρ Π±ΠΎΠ»ΡΡΠΎΠΉ Π²Π΅Ρ, ΡΠΊΡΡΡΡΠΉ
ΠΠΈΠ½ΡΡΡ : Π΄ΠΎΡΠΎΠ³ΠΎ, ΠΌΠΎΠΆΠ½ΠΎ ΠΈΡΠΏΠΎΠ»ΡΠ·ΠΎΠ²Π°ΡΡ ΡΠΎΠ»ΡΠΊΠΎ ΠΎΠ΄ΠΈΠ½ ΡΠΈΠΏ ΡΡΠΈΠΊΠ° ΠΏΠΎΡΠ΅ΡΠ΅Π΄ΠΈΠ½Π΅ ΡΡΠΈΠΊΠ° ΡΡΠΈΠΊΠ° ΠΈ ΡΠΎΠ»ΠΈΠΊΠΈ ΠΏΠΎ Π±ΠΎΠΊΠ°ΠΌ ΠΏΡΠΎΠ΅ΠΌΠ° ΡΠΊΠ°ΡΠ°, ΡΡΠΎΠ±Ρ ΡΡΠΈΠΊ ΠΎΡΡΠ°Π²Π°Π»ΡΡ Π²ΡΡΠΎΠ²Π½Π΅Π½Π½ΡΠΌ. ΠΡΠΎ ΡΠΈΠΏ Π²ΡΠ΄Π²ΠΈΠΆΠ½ΡΡ
ΡΡΠΈΠΊΠΎΠ², ΠΊΠΎΡΠΎΡΡΠΉ Ρ ΠΈΡΠΏΠΎΠ»ΡΠ·ΠΎΠ²Π°Π» Π² ΡΠ²ΠΎΠ΅ΠΌ ΠΏΡΠΎΠ΅ΠΊΡΠ΅ Π²ΡΠ΄Π²ΠΈΠΆΠ½ΠΎΠ³ΠΎ ΡΠΊΠ°ΡΠ° Π΄Π»Ρ ΠΌΡΡΠΎΡΠ°, ΠΏΠΎΡΠΎΠΌΡ ΡΡΠΎ ΠΎΠ½ Π²ΡΠ΄Π΅ΡΠΆΠΈΠ²Π°Π» Π²Π΅Ρ ΠΌΡΡΠΎΡΠ½ΠΎΠ³ΠΎ Π±Π°ΠΊΠ° ΠΏΠΎ ΡΠ΅Π½ΡΡΡ, Π° Π½Π΅ ΠΏΠΎΠ΄Π²Π΅ΡΠΈΠ²Π°Π»ΡΡ ΠΏΠΎ Π±ΠΎΠΊΠ°ΠΌ.
ΠΠ°ΠΏΡΠ°Π²Π»ΡΡΡΠΈΠ΅ Π΄Π»Ρ ΡΡΠΈΠΊΠΎΠ² Ρ ΡΠ΅Π½ΡΡΠ°Π»ΡΠ½ΡΠΌ ΠΊΡΠ΅ΠΏΠ»Π΅Π½ΠΈΠ΅ΠΌ Π²ΡΠ΄Π΅ΡΠΆΠΈΠ²Π°ΡΡ ΠΌΠ΅Π½ΡΡΠΈΠΉ Π²Π΅Ρ ΠΏΠΎ ΡΡΠ°Π²Π½Π΅Π½ΠΈΡ Ρ Π΄ΡΡΠ³ΠΈΠΌΠΈ ΡΠΈΠΏΠ°ΠΌΠΈ. Π― ΡΠ°ΠΊΠΆΠ΅ ΠΎΠ±Π½Π°ΡΡΠΆΠΈΠ», ΡΡΠΎ ΡΠΎ Π²ΡΠ΅ΠΌΠ΅Π½Π΅ΠΌ ΡΠ»ΠΈΡΠΊΠΎΠΌ Π»Π΅Π³ΠΊΠΎ Π²ΡΠ±ΠΈΡΡ ΡΡΠΈΠΊ ΠΈΠ· Π²ΡΡΠ°Π²Π½ΠΈΠ²Π°Π½ΠΈΡ.
ΠΠ»ΡΡΡ: ΠΏΡΠΎΡΡΠΎΡΠ° ΡΡΡΠ°Π½ΠΎΠ²ΠΊΠΈ, ΡΠΊΡΡΡΡΠΉ
ΠΠΈΠ½ΡΡΡ: Π½Π΅ Π²ΡΡΠ°Π²Π½ΠΈΠ²Π°Π΅ΡΡΡ, Π½Π΅ ΠΏΠΎΠ΄Ρ ΠΎΠ΄ΠΈΡ Π΄Π»Ρ Π±ΠΎΠ»ΡΡΠΈΡ Π½Π°Π³ΡΡΠ·ΠΎΠΊ ΡΡΠΎ Π΄Π»Ρ ΠΏΠ΅ΡΠ΅ΠΌΠ΅ΡΠ΅Π½ΠΈΡ Π²ΠΏΠ΅ΡΠ΅Π΄ ΠΈ Π½Π°Π·Π°Π΄ ΠΏΠΎ Π΄ΠΎΡΠΎΠΆΠΊΠ΅. ΠΡΠΎΡ ΡΠΈΠΏ Π²ΡΠ΄Π²ΠΈΠΆΠ½ΡΡ ΡΡΠΈΠΊΠΎΠ² ΠΎΠ±ΡΡΠ½ΠΎ Π²ΡΡΡΠ΅ΡΠ°Π΅ΡΡΡ Π² Π±ΠΎΠ»Π΅Π΅ Π΄Π΅ΡΠ΅Π²ΠΎΠΉ ΠΌΠ΅Π±Π΅Π»ΠΈ ΠΈ ΡΠΊΠ°ΡΠ°Ρ .
ΠΠ°ΠΏΡΠ°Π²Π»ΡΡΡΠΈΠ΅ ΡΡΠΎΠ³ΠΎ ΡΠΈΠΏΠ° Π±ΠΎΠ»Π΅Π΅ Ρ ΡΡΠΏΠΊΠΈΠ΅, ΡΠ΅ΠΌ Π΄ΡΡΠ³ΠΈΠ΅ ΡΠΈΠΏΡ, ΠΈ Π±ΠΎΠ»Π΅Π΅ ΡΠΊΠ»ΠΎΠ½Π½Ρ ΠΊ ΠΈΠ·Π³ΠΈΠ±Ρ ΠΏΠΎΠ΄ Π±ΠΎΠ»ΡΡΠΎΠΉ Π½Π°Π³ΡΡΠ·ΠΊΠΎΠΉ. ΠΠ°ΠΌ ΡΠ°ΠΊΠΆΠ΅ Π½Π΅ΠΎΠ±Ρ ΠΎΠ΄ΠΈΠΌΠΎ ΡΡΡΠ°Π½ΠΎΠ²ΠΈΡΡ ΡΠΎΠ»ΠΈΠΊΠΎΠ²ΡΠ΅ Π½Π°ΠΏΡΠ°Π²Π»ΡΡΡΠΈΠ΅ ΠΈΠ΄Π΅Π°Π»ΡΠ½ΠΎ ΡΠΎΠ²Π½ΠΎ, ΠΈΠ½Π°ΡΠ΅ ΠΎΠ½ΠΈ Π±ΡΠ΄ΡΡ ΠΎΡΠΊΡΡΠ²Π°ΡΡΡΡ ΡΠ°ΠΌΠΈ ΠΏΠΎ ΡΠ΅Π±Π΅.
ΠΠ»ΡΡΡ: ΠΠ΅Π΄ΠΎΡΠΎΠ³ΠΎΠΉ, ΠΏΡΠΎΡΡΠΎΠΉ Π² ΡΡΡΠ°Π½ΠΎΠ²ΠΊΠ΅
ΠΠΈΠ½ΡΡΡ: Π₯ΡΡΠΏΠΊΠΈΠΉ, Π²ΡΠ΄Π΅ΡΠΆΠΈΠ²Π°Π΅Ρ ΠΌΠ΅Π½ΡΡΠΈΠΉ Π²Π΅Ρ, Π±Π΅Π· ΡΠΏΠ΅ΡΠΈΠ°Π»ΡΠ½ΡΡ ΡΡΠ½ΠΊΡΠΈΠΉ, ΡΠ°ΠΊΠΈΡ ΠΊΠ°ΠΊ ΠΏΠ»Π°Π²Π½ΠΎΠ΅ Π·Π°ΠΊΡΡΠ²Π°Π½ΠΈΠ΅.
ΠΠ΅ΡΠ΅Π²ΡΠ½Π½ΡΠ΅ Π½Π°ΠΏΡΠ°Π²Π»ΡΡΡΠΈΠ΅ Π΄Π»Ρ ΡΡΠΈΠΊΠΎΠ²
ΠΠ΅ΡΠ΅Π²ΡΠ½Π½ΡΠ΅ Π½Π°ΠΏΡΠ°Π²Π»ΡΡΡΠΈΠ΅ Π΄Π»Ρ ΡΡΠΈΠΊΠΎΠ² ΠΎΠ±ΡΡΠ½ΠΎ ΠΈΡΠΏΠΎΠ»ΡΠ·ΡΡΡΡΡ Π² ΡΡΠ°ΡΠΎΠΉ ΠΌΠ΅Π±Π΅Π»ΠΈ ΠΈ Π½Π΅Π±ΠΎΠ»ΡΡΠΈΡ
ΠΏΡΠ΅Π΄ΠΌΠ΅ΡΠ°Ρ
, ΡΠ°ΠΊΠΈΡ
ΠΊΠ°ΠΊ ΡΠΊΠ°ΡΡΠ»ΠΊΠ° Π΄Π»Ρ Π΄ΡΠ°Π³ΠΎΡΠ΅Π½Π½ΠΎΡΡΠ΅ΠΉ. ΠΡ ΠΌΠΎΠΆΠ΅ΡΠ΅ ΡΠ΄Π΅Π»Π°ΡΡ ΡΡΠΎΡ ΡΠΈΠΏ Π²ΡΠ΄Π²ΠΈΠΆΠ½ΠΎΠ³ΠΎ ΡΡΠΈΠΊΠ° ΡΠ°ΠΌΠΎΡΡΠΎΡΡΠ΅Π»ΡΠ½ΠΎ, ΠΏΡΠΎΡΡΠΎ ΠΏΡΠΈΠΊΡΠ΅ΠΏΠΈΠ² ΠΏΠ°ΡΡ ΠΏΠΎΠ»ΠΎΡ ΡΠ²Π΅ΡΠ΄ΠΎΠΉ Π΄ΡΠ΅Π²Π΅ΡΠΈΠ½Ρ ΠΊ Π±ΠΎΠΊΠΎΠ²ΠΎΠΉ ΠΈΠ»ΠΈ Π½ΠΈΠΆΠ½Π΅ΠΉ ΡΠ°ΡΡΠΈ ΡΠΊΠ°ΡΠ°.
ΠΠ° Π±ΠΎΠΊΠΎΠ²ΠΎΠΉ ΡΡΠΎΡΠΎΠ½Π΅ ΡΡΠΈΠΊΠ° Π΅ΡΡΡ ΡΠΎΠΎΡΠ²Π΅ΡΡΡΠ²ΡΡΡΠΈΠΉ ΠΏΠ°Π·, ΠΊΠΎΡΠΎΡΡΠΉ ΡΠΊΠΎΠ»ΡΠ·ΠΈΡ ΠΏΠΎ Π½Π°ΠΏΡΠ°Π²Π»ΡΡΡΠ΅ΠΉ Π²Π½ΡΡΡΠΈ.
ΠΡΠΎ ΠΎΡΠ»ΠΈΡΠ½ΡΠΉ ΡΠΏΠΎΡΠΎΠ± ΡΡΠΊΠΎΠ½ΠΎΠΌΠΈΡΡ Π΄Π΅Π½ΡΠ³ΠΈ, Π΅ΡΠ»ΠΈ Π²Ρ Π΄Π΅Π»Π°Π΅ΡΠ΅ ΠΎΠ³ΡΠΎΠΌΠ½ΡΠΉ ΠΊΠΎΠΌΠΎΠ΄. ΠΠ°ΠΆΠ΅ ΡΠ°ΠΌΡΠ΅ Π΄Π΅ΡΠ΅Π²ΡΠ΅ ΠΌΠ΅ΡΠ°Π»Π»ΠΈΡΠ΅ΡΠΊΠΈΠ΅ Π½Π°ΠΏΡΠ°Π²Π»ΡΡΡΠΈΠ΅ Π΄Π»Ρ ΡΡΠΈΠΊΠΎΠ² ΡΡΠΎΡΡ ΠΏΠΎ 5-10 Π΄ΠΎΠ»Π»Π°ΡΠΎΠ² Π·Π° ΡΡΡΠΊΡ, Π° Π²ΠΎΡ Π΄Π΅ΡΠ΅Π²ΡΠ½Π½ΡΠ΅ ΠΌΠΎΠΆΠ½ΠΎ ΡΠ΄Π΅Π»Π°ΡΡ ΠΈΠ· ΠΎΠ±ΡΠ΅Π·ΠΊΠΎΠ² ΠΏΠΎΡΡΠΈ Π±Π΅ΡΠΏΠ»Π°ΡΠ½ΠΎ! ΠΠΈΠ΄Π΅ΠΎ Π½ΠΈΠΆΠ΅ ΠΏΠΎΠΊΠ°Π·ΡΠ²Π°Π΅Ρ Ρ ΠΎΡΠΎΡΠΈΠΉ ΠΏΡΠΈΠΌΠ΅Ρ ΡΠΎΠ³ΠΎ, ΠΏΠΎΡΠ΅ΠΌΡ Π²Ρ ΠΌΠΎΠΆΠ΅ΡΠ΅ ΠΏΠΎΠΉΡΠΈ ΠΏΠΎ ΡΡΠΎΠΌΡ ΠΏΡΡΠΈ.
https://youtu.be/lUbkl10ppYk?t=287ΠΠΈΠ΄Π΅ΠΎ Π½Π΅ ΠΌΠΎΠΆΠ΅Ρ Π±ΡΡΡ Π·Π°Π³ΡΡΠΆΠ΅Π½ΠΎ, ΡΠ°ΠΊ ΠΊΠ°ΠΊ ΠΎΡΠΊΠ»ΡΡΠ΅Π½ JavaScript: 40 ΡΡΠΈΠΊΠΎΠ² Π²ΠΎ Π²ΡΡΡΠΎΠ΅Π½Π½ΠΎΠΉ ΠΏΡΠΈΠ»Π°Π²ΠΊΠ΅ Ρ ΠΏΠ»Π°Π½Π°ΠΌΠΈ (Π΄Π΅ΡΠ΅Π²ΡΠ½Π½ΡΠ΅ Π½Π°ΠΏΡΠ°Π²Π»ΡΡΡΠΈΠ΅ Π΄Π»Ρ ΡΡΠΈΠΊΠΎΠ²) (https://youtu.be/lUbkl10ppYk ?t=287)
ΠΠΎ Ρ Π΄Π΅ΡΠ΅Π²ΡΠ½Π½ΡΡ Π³ΠΎΡΠΎΠΊ Π΅ΡΡΡ ΡΠ²ΠΎΠΈ Π½Π΅Π΄ΠΎΡΡΠ°ΡΠΊΠΈ.
- Π§ΡΠΎΠ±Ρ Π΄Π΅ΡΠ΅Π²ΠΎ ΡΠ°Π±ΠΎΡΠ°Π»ΠΎ Π³Π»Π°Π΄ΠΊΠΎ, Π΅Π³ΠΎ Π½Π΅ΠΎΠ±Ρ ΠΎΠ΄ΠΈΠΌΠΎ ΠΏΠ΅ΡΠΈΠΎΠ΄ΠΈΡΠ΅ΡΠΊΠΈ Π½Π°ΡΠΈΡΠ°ΡΡ Π²ΠΎΡΠΊΠΎΠΌ.
- Π‘Π΅Π·ΠΎΠ½Π½ΠΎΠ΅ ΡΠ°ΡΡΠΈΡΠ΅Π½ΠΈΠ΅ Π΄ΡΠ΅Π²Π΅ΡΠΈΠ½Ρ ΠΌΠΎΠΆΠ΅Ρ ΠΏΡΠΈΠ²Π΅ΡΡΠΈ ΠΊ Π·Π°Π΅Π΄Π°Π½ΠΈΡ ΡΡΠΈΠΊΠΎΠ².
- ΠΡΠ»ΠΈ Π²ΡΠ΄Π²ΠΈΠ½ΡΡΡ ΡΡΠΈΠΊ ΡΠ»ΠΈΡΠΊΠΎΠΌ Π΄Π°Π»Π΅ΠΊΠΎ, ΠΎΠ½ ΠΌΠΎΠΆΠ΅Ρ ΡΠΏΠ°ΡΡΡ Ρ Π½Π°ΠΏΡΠ°Π²Π»ΡΡΡΠ΅ΠΉ.
- ΠΡ
ΡΡΡΠ΄Π½ΠΎ ΠΎΡΡΠ΅Π³ΡΠ»ΠΈΡΠΎΠ²Π°ΡΡ, ΡΡΠΎΠ±Ρ ΠΏΠΎΠ»ΡΡΠΈΡΡ ΠΏΡΠ°Π²ΠΈΠ»ΡΠ½ΡΠΉ Π²ΡΡΡΡΠΏ Π²ΠΎΠΊΡΡΠ³ ΠΏΠ΅ΡΠ΅Π΄Π½Π΅ΠΉ ΡΠ°ΡΡΠΈ ΡΡΠΈΠΊΠ°.

Π’ΠΈΠΏΡ ΡΠ΄Π»ΠΈΠ½ΠΈΡΠ΅Π»Π΅ΠΉ Π΄Π»Ρ Π²ΡΠ΄Π²ΠΈΠΆΠ½ΡΡ ΡΡΠΈΠΊΠΎΠ²
ΠΠ°ΠΆΠ΄ΡΠΉ ΡΠΈΠΏ Π²ΡΠ΄Π²ΠΈΠΆΠ½ΡΡ Π½Π°ΠΏΡΠ°Π²Π»ΡΡΡΠΈΡ ΠΈΠΌΠ΅Π΅Ρ Π½Π΅ΡΠΊΠΎΠ»ΡΠΊΠΎ ΡΠ°Π·Π»ΠΈΡΠ½ΡΡ ΡΠ΄Π»ΠΈΠ½ΠΈΡΠ΅Π»Π΅ΠΉ. Π Π°ΡΡΠΈΡΠ΅Π½ΠΈΠ΅ ΠΎΠ·Π½Π°ΡΠ°Π΅Ρ, Π½Π°ΡΠΊΠΎΠ»ΡΠΊΠΎ Π΄Π°Π»Π΅ΠΊΠΎ Π²Ρ ΠΌΠΎΠΆΠ΅ΡΠ΅ Π²ΡΠ΄Π²ΠΈΠ½ΡΡΡ ΡΡΠΈΠΊ. ΠΠ΅ΠΊΠΎΡΠΎΡΡΠ΅ ΠΎΡΡΠ°Π½Π°Π²Π»ΠΈΠ²Π°ΡΡΡΡ Π΄ΠΎ ΡΠΎΠ³ΠΎ, ΠΊΠ°ΠΊ ΡΡΠ°Π½ΠΎΠ²ΠΈΡΡΡ Π²ΠΈΠ΄Π½Π° Π·Π°Π΄Π½ΡΡ ΡΠ°ΡΡΡ ΡΡΠΈΠΊΠ°, Π° Π΄ΡΡΠ³ΠΈΠ΅ Π²ΡΠ΄Π²ΠΈΠ³Π°ΡΡΡΡ Π·Π° ΠΏΡΠ΅Π΄Π΅Π»Ρ ΠΏΠ΅ΡΠ΅Π΄Π½Π΅ΠΉ ΡΠ°ΡΡΠΈ ΡΠΊΠ°ΡΠ°.
ΒΎ ΠΠ°ΠΏΡΠ°Π²Π»ΡΡΡΠΈΠ΅ Π΄Π»Ρ Π²ΡΠ΄Π²ΠΈΠΆΠ½ΡΡ ΡΡΠΈΠΊΠΎΠ²
ΒΎ ΠΠ°ΠΏΡΠ°Π²Π»ΡΡΡΠΈΠ΅ Π΄Π»Ρ Π²ΡΠ΄Π²ΠΈΠΆΠ½ΡΡ ΡΡΠΈΠΊΠΎΠ² ΠΏΠΎΠ·Π²ΠΎΠ»ΡΡΡ ΡΠ°ΡΡΠΈΡΠ½ΠΎ ΠΎΡΠΊΡΡΡΡ ΡΡΠΈΠΊ ΠΈΠ· ΡΠΊΠ°ΡΠ°. ΠΡΠΎ ΡΠ°ΠΌΡΠΉ Π΄Π΅ΡΠ΅Π²ΡΠΉ Π²Π°ΡΠΈΠ°Π½Ρ, Π½ΠΎ ΠΈ ΡΠ°ΠΌΡΠΉ ΡΠ°Π·Π΄ΡΠ°ΠΆΠ°ΡΡΠΈΠΉ Π΄Π»Ρ ΠΏΠΎΠ»ΡΠ·ΠΎΠ²Π°ΡΠ΅Π»Π΅ΠΉ. Π’ΡΡΠ΄Π½ΠΎ ΠΏΠΎΠ»ΡΡΠΈΡΡ Π΄ΠΎΡΡΡΠΏ ΠΊ ΠΏΡΠ΅Π΄ΠΌΠ΅ΡΠ°ΠΌ Π² ΡΠ°ΠΌΠΎΠΉ Π·Π°Π΄Π½Π΅ΠΉ ΡΠ°ΡΡΠΈ ΡΡΠΈΠΊΠ°, ΠΈ ΠΎΡΠ³Π°Π½Π°ΠΉΠ·Π΅ΡΡ ΡΡΠΈΠΊΠΎΠ² ΠΏΠΎΠ»Π½ΠΎΡΡΡΡ Π·Π°Π±Π»ΠΎΠΊΠΈΡΡΡΡ ΡΡΡ ΠΎΠ±Π»Π°ΡΡΡ!
ΠΠ°ΠΏΡΠ°Π²Π»ΡΡΡΠΈΠ΅ ΠΏΠΎΠ»Π½ΠΎΠ³ΠΎ Π²ΡΠ΄Π²ΠΈΠΆΠ΅Π½ΠΈΡ
ΠΠ°ΠΏΡΠ°Π²Π»ΡΡΡΠΈΠ΅ ΠΏΠΎΠ»Π½ΠΎΠ³ΠΎ Π²ΡΠ΄Π²ΠΈΠΆΠ΅Π½ΠΈΡ ΠΎΠ±Π΅ΡΠΏΠ΅ΡΠΈΠ²Π°ΡΡ Π΄ΠΎΡΡΡΠΏ ΠΊΠΎ Π²ΡΠ΅ΠΌΡ ΡΡΠΈΠΊΡ. ΠΡΠΎΡ ΡΠΈΠΏ Π½Π°ΠΏΡΠ°Π²Π»ΡΡΡΠΈΡ
Π»Π΅Π³ΠΊΠΎ Π½Π°ΠΉΡΠΈ Π² ΠΌΠ°Π³Π°Π·ΠΈΠ½Π°Ρ
, ΠΈ ΠΎΠ½ΠΈ ΡΠ²Π»ΡΡΡΡΡ Π»ΡΡΡΠΈΠΌ Π²Π°ΡΠΈΠ°Π½ΡΠΎΠΌ Π΄Π»Ρ Π±ΠΎΠ»ΡΡΠΈΠ½ΡΡΠ²Π° ΡΠΊΠ°ΡΠΎΠ². Π§Π΅ΠΌ Π±ΠΎΠ»ΡΡΠ΅ Π²Π΅ΡΠ° ΠΎΠ½ΠΈ Π΄Π΅ΡΠΆΠ°Ρ, ΡΠ΅ΠΌ ΠΌΠ΅Π½Π΅Π΅ ΠΏΡΠΎΡΠ½ΡΠΌΠΈ ΠΎΠ½ΠΈ ΡΡΠ°Π½ΠΎΠ²ΡΡΡΡ, ΠΏΠΎΡΡΠΎΠΌΡ ΠΎΠ±ΡΠ·Π°ΡΠ΅Π»ΡΠ½ΠΎ ΠΏΡΠΎΠ²Π΅ΡΡΠΉΡΠ΅ Π½ΠΎΠΌΠΈΠ½Π°Π»ΡΠ½ΡΡ Π½Π°Π³ΡΡΠ·ΠΊΡ, ΡΡΠΎΠ±Ρ Π½Π΅ ΠΏΠ΅ΡΠ΅Π³ΡΡΠΆΠ°ΡΡ ΠΈΡ
.
ΠΠ°ΠΏΡΠ°Π²Π»ΡΡΡΠΈΠ΅ Π΄Π»Ρ Π²ΡΠ΄Π²ΠΈΠΆΠ½ΡΡ ΡΡΠΈΠΊΠΎΠ²
ΠΠ°ΠΏΡΠ°Π²Π»ΡΡΡΠΈΠ΅ Π΄Π»Ρ Π²ΡΠ΄Π²ΠΈΠΆΠ½ΡΡ ΡΡΠΈΠΊΠΎΠ² ΠΈΠΌΠ΅ΡΡ Π±ΠΎΠ»ΡΡΡΡ Π΄Π»ΠΈΠ½Ρ, ΡΠ΅ΠΌ Π΄ΡΡΠ³ΠΈΠ΅ Π½Π°ΠΏΡΠ°Π²Π»ΡΡΡΠΈΠ΅, ΠΏΠΎΡΡΠΎΠΌΡ ΡΡΠΈΠΊ Π²ΡΠ΄Π²ΠΈΠ³Π°Π΅ΡΡΡ Π·Π° ΠΏΡΠ΅Π΄Π΅Π»Ρ ΠΏΠ΅ΡΠ΅Π΄Π½Π΅ΠΉ ΡΠ°ΡΡΠΈ ΡΠΊΠ°ΡΠ°. ΠΡΠΎ ΠΏΠΎΠ·Π²ΠΎΠ»ΠΈΡ Π²Π°ΠΌ Ρ ΡΠ°Π½ΠΈΡΡ ΠΊΠΎΠ½ΡΠ΅ΠΉΠ½Π΅ΡΡ Ρ ΠΊΡΡΡΠΊΠΎΠΉ, ΠΊΠΎΡΠΎΡΡΡ ΠΌΠΎΠΆΠ½ΠΎ ΠΏΠΎΠ΄Π½ΡΡΡ Π±ΠΎΠ»Π΅Π΅ ΡΠ΅ΠΌ Π½Π° 90 Π³ΡΠ°Π΄ΡΡΠΎΠ², ΡΡΠΎΠ±Ρ ΠΏΠΎΠ»ΡΡΠΈΡΡ Π΄ΠΎΡΡΡΠΏ ΠΊ ΠΏΡΠ΅Π΄ΠΌΠ΅ΡΠ°ΠΌ Π²Π½ΡΡΡΠΈ. ΠΠΈΠ΄Π΅ΠΎ Π½ΠΈΠΆΠ΅ ΠΏΠΎΠΊΠ°Π·ΡΠ²Π°Π΅Ρ ΠΎΡΠ»ΠΈΡΠ½ΡΠΉ ΠΏΡΠΈΠΌΠ΅Ρ ΡΠΎΠ³ΠΎ, ΠΏΠΎΡΠ΅ΠΌΡ Π²Π°ΠΌ Π½ΡΠΆΠ½ΠΎ ΠΈΡΠΏΠΎΠ»ΡΠ·ΠΎΠ²Π°ΡΡ Π½Π°ΠΏΡΠ°Π²Π»ΡΡΡΠΈΠ΅ ΡΡΠΈΠΊΠ° Ρ ΠΈΠ·Π±ΡΡΠΎΡΠ½ΡΠΌ Ρ ΠΎΠ΄ΠΎΠΌ.
https://youtu.be/iDJ-9dyQ4WYΠΠΈΠ΄Π΅ΠΎ Π½Π΅ ΠΌΠΎΠΆΠ΅Ρ Π±ΡΡΡ Π·Π°Π³ΡΡΠΆΠ΅Π½ΠΎ, ΡΠ°ΠΊ ΠΊΠ°ΠΊ ΠΎΡΠΊΠ»ΡΡΠ΅Π½ JavaScript: ΠΠ·Π³ΠΎΡΠΎΠ²Π»Π΅Π½ΠΈΠ΅ ΡΡΠ΅Π»Π»Π°ΠΆΠ° Π΄Π»Ρ Ρ ΡΠ°Π½Π΅Π½ΠΈΡ ΠΌΠ΅Π»ΠΊΠΈΡ Π΄Π΅ΡΠ°Π»Π΅ΠΉ (https://youtu.be/iDJ-9dyQ4WY)
Π’ΠΈΠΏΡ Π΄Π²ΠΈΠΆΠ΅Π½ΠΈΡ ΡΡΠΈΠΊΠΎΠ²
ΠΡΠ΅ Π½Π°ΠΏΡΠ°Π²Π»ΡΡΡΠΈΠ΅ ΡΡΠΈΠΊΠΎΠ² Π»Π΅Π³ΠΊΠΎ ΠΏΠ΅ΡΠ΅ΠΌΠ΅ΡΠ°ΡΡΡΡ Π²ΠΏΠ΅ΡΠ΅Π΄ ΠΈ Π½Π°Π·Π°Π΄. ΠΠΎ ΠΈΠ½ΠΎΠ³Π΄Π° Ρ ΠΎΡΠ΅ΡΡΡ ΠΏΠΎΡΠ°Π½ΡΠ°Π·ΠΈΡΠΎΠ²Π°ΡΡ, ΠΎΡΠΎΠ±Π΅Π½Π½ΠΎ ΠΊΠΎΠ³Π΄Π° ΡΠ΅ΡΡ ΠΈΠ΄Π΅Ρ ΠΎ ΠΊΡΡ ΠΎΠ½Π½ΡΡ ΡΠΊΠ°ΡΠ°Ρ , ΠΊΠΎΡΠΎΡΡΠ΅ ΡΠ°ΡΡΠΎ ΠΈΡΠΏΠΎΠ»ΡΠ·ΡΡΡΡΡ. ΠΡΠΈ Π΄ΠΎΠΏΠΎΠ»Π½ΠΈΡΠ΅Π»ΡΠ½ΡΠ΅ ΡΡΠ½ΠΊΡΠΈΠΈ ΠΌΠΎΠ³ΡΡ ΠΏΠΎΠΌΠΎΡΡ Π²Π°ΡΠΈΠΌ ΡΡΠΈΠΊΠ°ΠΌ Π·Π°ΠΊΡΡΠ²Π°ΡΡΡΡ Π±Π΅ΡΡΡΠΌΠ½ΠΎ ΠΈΠ»ΠΈ ΠΎΡΠΊΡΡΠ²Π°ΡΡΡΡ ΠΏΡΠΈ ΠΌΠ°Π»Π΅ΠΉΡΠ΅ΠΌ Π½Π°ΠΆΠ°ΡΠΈΠΈ!
Π‘Π°ΠΌΠΎΠ·Π°ΠΊΡΡΠ²Π°ΡΡΠΈΠ΅ΡΡ Π½Π°ΠΏΡΠ°Π²Π»ΡΡΡΠΈΠ΅ Π΄Π»Ρ ΡΡΠΈΠΊΠΎΠ²
Π‘Π°ΠΌΠΎΠ·Π°ΠΊΡΡΠ²Π°ΡΡΠΈΠ΅ΡΡ Π½Π°ΠΏΡΠ°Π²Π»ΡΡΡΠΈΠ΅ Π΄Π»Ρ ΡΡΠΈΠΊΠΎΠ² ΠΏΠΎΠΌΠΎΠ³Π°ΡΡ ΡΠ΄Π΅ΡΠΆΠΈΠ²Π°ΡΡ ΡΡΠΈΠΊΠΈ Π·Π°ΠΊΡΡΡΡΠΌΠΈ, Π΄Π°ΠΆΠ΅ Π΅ΡΠ»ΠΈ ΠΎΠ½ΠΈ Π½Π΅ Π·Π°ΠΊΡΡΠ²Π°ΡΡΡΡ ΠΏΠΎΠ»Π½ΠΎΡΡΡΡ Π²ΡΡΡΠ½ΡΡ.
ΠΡΠΈ Π½Π°ΠΏΡΠ°Π²Π»ΡΡΡΠΈΠ΅ Π°Π²ΡΠΎΠΌΠ°ΡΠΈΡΠ΅ΡΠΊΠΈ Π·Π°ΠΊΡΠΎΡΡ ΡΡΠΈΠΊ, ΠΊΠ°ΠΊ ΡΠΎΠ»ΡΠΊΠΎ ΠΎΠ½ ΠΏΡΠΎΠΉΠ΄Π΅Ρ ΠΎΠΏΡΠ΅Π΄Π΅Π»Π΅Π½Π½ΡΡ ΡΠΎΡΠΊΡ, Π»ΠΈΠ±ΠΎ Ρ ΠΏΠΎΠΌΠΎΡΡΡ ΠΏΡΡΠΆΠΈΠ½Ρ, Π»ΠΈΠ±ΠΎ Ρ Π½Π΅Π±ΠΎΠ»ΡΡΠΈΠΌ Π½Π°ΠΊΠ»ΠΎΠ½ΠΎΠΌ Π²Π½ΠΈΠ· Π² Π·Π°Π΄Π½Π΅ΠΉ ΡΠ°ΡΡΠΈ Π½Π°ΠΏΡΠ°Π²Π»ΡΡΡΠ΅ΠΉ.
ΠΠ°ΠΏΡΠ°Π²Π»ΡΡΡΠΈΠ΅ Π΄Π»Ρ ΡΡΠΈΠΊΠΎΠ² Ρ ΠΏΠ»Π°Π²Π½ΡΠΌ Π·Π°ΠΊΡΡΠ²Π°Π½ΠΈΠ΅ΠΌ
ΠΠ°ΠΏΡΠ°Π²Π»ΡΡΡΠΈΠ΅ Π΄Π»Ρ ΡΡΠΈΠΊΠΎΠ² Ρ ΠΏΠ»Π°Π²Π½ΡΠΌ Π·Π°ΠΊΡΡΠ²Π°Π½ΠΈΠ΅ΠΌ ΠΏΡΠ΅Π΄ΠΎΡΠ²ΡΠ°ΡΠ°ΡΡ Π·Π°Ρ Π»ΠΎΠΏΡΠ²Π°Π½ΠΈΠ΅ ΡΡΠΈΠΊΠ°. Π£ Π½Π΅Π³ΠΎ Π΅ΡΡΡ ΠΌΠ΅Ρ Π°Π½ΠΈΠ·ΠΌ Π·Π°ΡΠ΅Π»ΠΊΠΈ, ΠΊΠΎΡΠΎΡΡΠΉ Π·Π°ΠΌΠ΅Π΄Π»ΡΠ΅Ρ Π²ΡΠ΄Π²ΠΈΠΆΠ΅Π½ΠΈΠ΅ ΡΡΠΈΠΊΠ° Π² ΠΊΠΎΠ½ΡΠ΅ Π΅Π³ΠΎ Ρ ΠΎΠ΄Π°, ΡΡΠΎΠ±Ρ ΠΎΠ½ Π·Π°ΠΊΡΡΠ²Π°Π»ΡΡ Π±Π΅ΡΡΡΠΌΠ½ΠΎ. ΠΠ½ΠΈ Π΄ΠΎΡΠΎΠΆΠ΅, Π½ΠΎ ΡΡΠΎ ΡΠΎΠ³ΠΎ ΡΡΠΎΠΈΡ!
ΠΠ°ΠΏΡΠ°Π²Π»ΡΡΡΠΈΠ΅ Π΄Π»Ρ Π²ΡΠ΄Π²ΠΈΠΆΠ½ΡΡ ΡΡΠΈΠΊΠΎΠ², ΠΎΡΠΊΡΡΠ²Π°Π΅ΠΌΡΠ΅ Π½Π°ΠΆΠ°ΡΠΈΠ΅ΠΌ
ΠΠ°ΠΏΡΠ°Π²Π»ΡΡΡΠΈΠ΅ Π΄Π»Ρ Π²ΡΠ΄Π²ΠΈΠΆΠ½ΡΡ ΡΡΠΈΠΊΠΎΠ², ΠΎΡΠΊΡΡΠ²Π°Π΅ΠΌΡΠ΅ Π½Π°ΠΆΠ°ΡΠΈΠ΅ΠΌ, ΡΠΈΡΠΎΠΊΠΎ ΠΈΡΠΏΠΎΠ»ΡΠ·ΡΡΡΡΡ Π² Π²ΡΡΠΎΠΊΠΎΠΊΠ»Π°ΡΡΠ½ΡΡ ΠΊΡΡ ΠΎΠ½Π½ΡΡ ΡΠΊΠ°ΡΠ°Ρ . ΠΠ½ΠΈ ΡΠΏΡΠ°Π²Π»ΡΡΡΡΡ Π½Π°ΠΆΠ°ΡΠΈΠ΅ΠΌ Π½Π° ΠΏΠ΅ΡΠ΅Π΄Π½ΡΡ ΡΠ°ΡΡΡ ΡΡΠΈΠΊΠ°, ΡΡΠΎΠ±Ρ ΠΎΡΠΊΡΡΡΡ Π΅Π³ΠΎ, ΠΈ Π² Π·Π°ΠΊΡΡΡΠΎΠΌ ΡΠΎΡΡΠΎΡΠ½ΠΈΠΈ ΠΎΠ½ ΠΎΡΡΠ°Π½Π΅ΡΡΡ Π·Π°ΠΊΡΡΡΡΠΌ. ΠΡΠΎ ΡΡΡΡΠ°Π½ΡΠ΅Ρ Π½Π΅ΠΎΠ±Ρ ΠΎΠ΄ΠΈΠΌΠΎΡΡΡ Π² Π²ΡΠ΄Π²ΠΈΠΆΠ½ΡΡ ΡΡΠΈΠΊΠ°Ρ ΠΈ Π΄Π²Π΅ΡΡΠ°Ρ , ΠΏΠΎΡΡΠΎΠΌΡ Π²ΡΠ΅, ΡΡΠΎ Π²Ρ Π²ΠΈΠ΄ΠΈΡΠ΅, β ΡΡΠΎ ΠΏΠ»ΠΎΡΠΊΠΈΠ΅ ΡΠ°ΡΠ°Π΄Ρ ΡΠΊΠ°ΡΠΎΠ².
Π§ΡΠΎ ΡΠ°ΠΊΠΎΠ΅ Π½ΠΎΠΌΠΈΠ½Π°Π»ΡΠ½Π°Ρ Π½Π°Π³ΡΡΠ·ΠΊΠ°?
ΠΡΡΠ·ΠΎΠΏΠΎΠ΄ΡΠ΅ΠΌΠ½ΠΎΡΡΡ Π½Π°ΠΏΡΠ°Π²Π»ΡΡΡΠΈΡ
ΡΡΠΈΠΊΠΎΠ² Π²Π°ΠΆΠ½Π°, ΠΏΠΎΡΠΊΠΎΠ»ΡΠΊΡ ΠΎΠ½Π° ΠΏΠΎΠΊΠ°Π·ΡΠ²Π°Π΅Ρ, ΠΊΠ°ΠΊΠΎΠΉ Π²Π΅Ρ Π²ΡΠ΄Π΅ΡΠΆΠ°Ρ Π½Π°ΠΏΡΠ°Π²Π»ΡΡΡΠΈΠ΅.

ΠΠΎΡΡΠΎΠΌΡ Π²ΠΎ ΠΈΠ·Π±Π΅ΠΆΠ°Π½ΠΈΠ΅ ΡΠ°Π·ΡΡΡΠ΅Π½ΠΈΡ ΠΈΡ
ΠΏΠΎΠ²Π΅ΡΡ
Π½ΠΎΡΡΠ΅ΠΉ ΡΡΠΎΠΈΡ ΠΏΡΠΎΡΠ²Π΅ΡΠ»ΠΈΡΡ ΠΎΡΠ²Π΅ΡΡΡΠΈΡ Π΄ΡΠ΅Π»ΡΡ.